Healy & Newsom says ..
This stunning Edwardian restoration is situated on the highly desirable Raphael Road, and has attractive red brick and bay fronted elevations. Seamlessly blending classic charm with contemporary elegance, the property enjoys a tasteful Farrow & Ball colour drenched interior with complime...
Property Oracle says ..
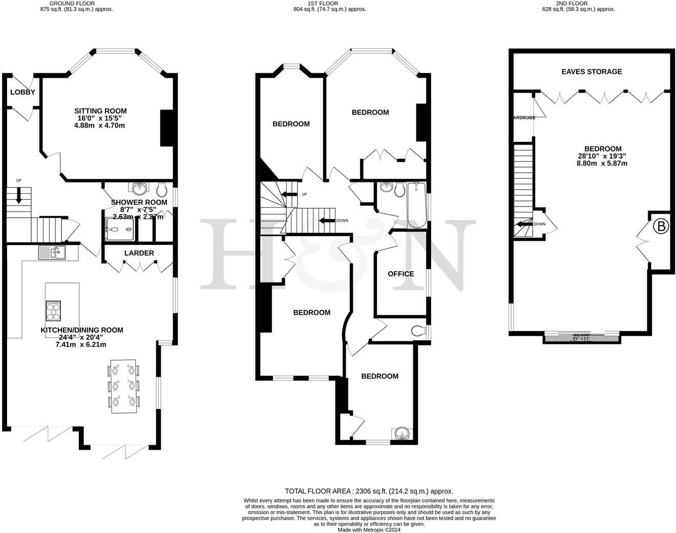
This five-bedroom, two-bathroom property situated on Raphael Road, Hove, presents as a substantially renovated or newly refurbished home. The interior is presented in a stylish and contemporary manner, with high quality finishes and fixtures apparent in the provided photographs. The open-plan kitchen/dining/living area is a particular highlight and provides plenty of living space that flows nicely to the garden. The property also benefits from a good sized rear garden. The location within Westbourne, Hove is highly desirable, noted for its proximity to excellent schools, convenient amenities, and relatively good transport links. While the exact plot size is not provided, the presence of a substantial garden is a notable positive. The list price reflects the desirability of both the property itself and its location; however, a precise comparison with the average price per square foot is impossible without more detailed local market data. Overall, this property offers a blend of modern style, attractive features, and convenient access to local amenities, making it a potentially strong investment opportunity for a buyer in this market segment.
Therefore, we give this property 8 / 10. *Disclaimer: This is our option and does constitute a recommendation or financial advice. Do your own research. *
- Price
- 7
- Condition
- 9
- Location
- 9
- Land
- 7
- Bedrooms
- 5
- Bathrooms
- 2
- Sqft (est)
- 2,306.00
The heatmap indicates the level of crime in the area. The color of the heatmap indicates the crime severity and recency.
Metrics Year-on-Year
- Average area value
- 689,089.00 £Decreased by 2.95 %
- Est sale value
- 2,416,688.00 £Increased by 51.23 %
- Average area rental value
- 2,316.00 £/moIncreased by 5.08 %
- Est letting value
- 6,918.00 £/moIncreased by 50.00 %
- Est rental Yield
- 4.03 %Increased by 8.33 %
- Crime Rate
- 7.00 %Unchanged by 0.00 %
Agent Activity
Healy & Newsom marked this listing as sold.
Healy & Newsom created the listing.
Nearby Schools
| Name | Type | Ofsted | Distance |
|---|---|---|---|
| St Christopher'S School | Other Independent School | 0.39 KM | |
| The Lioncare School | Other Independent Special School | Good | 0.51 KM |
| West Hove Children'S Centre | Children's Centre Linked Site | 0.63 KM | |
| West Hove Infant School | Community School | Outstanding | 0.65 KM |
| Hove Junior School | Community School | Good | 0.65 KM |
Images
Nearby Streets
| Name | Average Price | Average Sqft | Distance |
|---|---|---|---|
| Titian Road | £ 250,000 | 0 | 0.00 KM |
| Lion Mews | £ 0 | 0 | 0.00 KM |
| Molesworth Street | £ 0 | 0 | 0.00 KM |
| Park Avenue | £ 1,325,000 | 0 | 0.00 KM |
| Hove Promenade | £ 0 | 0 | 0.00 KM |
Nearby Transport
| Name | NLC | TLC | Distance |
|---|---|---|---|
| Aldrington | 5280 | AGT | 0.54 KM |
| Hove | 5273 | HOV | 1.74 KM |
| Portslade | 5276 | PLD | 2.16 KM |
| Fishersgate | 5284 | FSG | 3.69 KM |
| Preston Park | 5285 | PRP | 3.75 KM |
Nearby Listings
| Address | Price | Type | Score | Distance |
|---|---|---|---|---|
| Raphael Road, Hove | £ 1,400,000 | BUY | 8 / 10 | 0.00 KM |
| Raphael Road, Hove | £ 575,000 | BUY | 8 / 10 | 0.01 KM |
| Raphael Road, Hove | £ 400,000 | BUY | 6 / 10 | 0.02 KM |
| Raphael Road, Hove, BN3 | £ 450,000 | BUY | 8 / 10 | 0.02 KM |
| Raphael Road, Hove | £ 1,200,000 | BUY | Unknown | 0.06 KM |
Nearby Properties
| Address | Price | Distance |
|---|---|---|
| 11 Raphael Road | £ 430,000 | 0.01 KM |
| 35 Raphael Road | £ 525,000 | 0.01 KM |
| 9 Raphael Road | £ 180,000 | 0.02 KM |
| 31 Raphael Road | £ 668,000 | 0.02 KM |
| 7 Raphael Road | £ 825,000 | 0.02 KM |