RO
Juniper Close, Walderslade, ME5
By Robinson Michael & Jackson
£ 350,000
Reviews
3 out of 5 stars
Robinson Michael & Jackson says ..
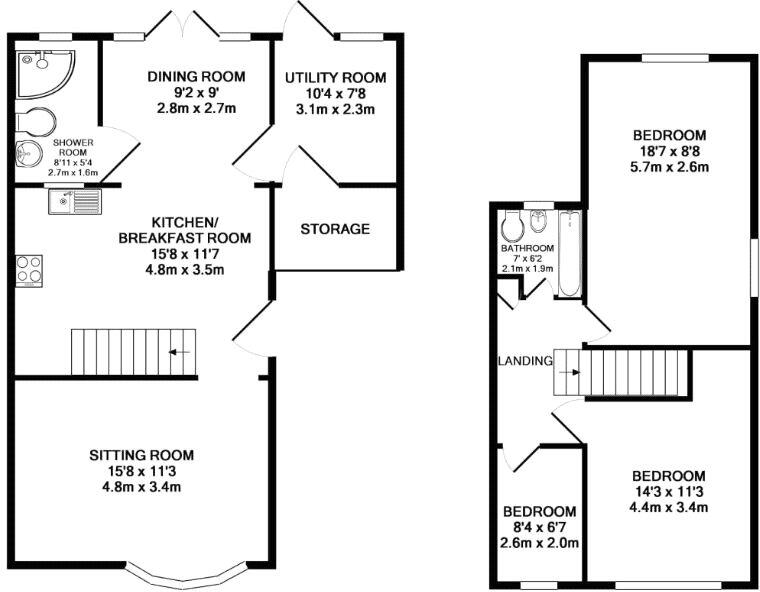
Spacious Extended Family Home with Double Storey Rear Extension & Driveway – Move-In Ready! Welcome to this beautifully presented and thoughtfully extended three-bedroom semi-detached family home, ideally located in a sought-after residential area. Benefiting from a full-widt...
Property Oracle says ..
Therefore, we give this property 7 / 10. *Disclaimer: This is our option and does constitute a recommendation or financial advice. Do your own research. *
- Price
- 8
- Condition
- 7
- Location
- 7
- Land
- 6
- Bedrooms
- 3
- Bathrooms
- 2
- Sqft (est)
- 980.59
The heatmap indicates the level of crime in the area. The color of the heatmap indicates the crime severity and recency.
Metrics Year-on-Year
- Average area value
- 337,500.00 £Decreased by 0.46 %
- Est sale value
- 398,119.54 £Increased by 24.92 %
- Average area rental value
- 2,300.00 £/moIncreased by 101.22 %
- Est letting value
- 1,961.18 £/moIncreased by 100.00 %
- Est rental Yield
- 8.18 %Increased by 101.98 %
- Crime Rate
- 4.00 %Unchanged by 0.00 %
from 339,056.00 £
from 318,691.75 £
from 1,143.00 £/mo
from 980.59 £/mo
from 4.05 %
from 4.00 %
Agent Activity
Robinson Michael & Jackson created the listing.
Nearby Schools
| Name | Type | Ofsted | Distance |
|---|---|---|---|
| St Thomas More Roman Catholic Primary School | Voluntary Aided School | Outstanding | 0.20 KM |
| Walderslade Primary School | Academy Converter | Good | 0.41 KM |
| Greenacre Academy | Academy Converter | Good | 0.48 KM |
| Oaklands School | Academy Converter | 0.55 KM | |
| Oaklands Children'S Centre | Children's Centre | 0.56 KM |
Images
Nearby Streets
| Name | Average Price | Average Sqft | Distance |
|---|---|---|---|
| Spencer Close | £ 413,000 | 0 | 0.00 KM |
| Silver Birches | £ 0 | 0 | 0.00 KM |
| Walderslade Village By-pass | £ 130,000 | 0 | 0.00 KM |
| Smith Road | £ 350,000 | 0 | 0.00 KM |
| Larkspur Road | £ 260,000 | 0 | 0.00 KM |
Nearby Transport
| Name | NLC | TLC | Distance |
|---|---|---|---|
| Chatham | 5199 | CTM | 3.85 KM |
| Rochester | 5203 | RTR | 4.75 KM |
| Gillingham (Kent) | 5169 | GLM | 5.12 KM |
| Strood (Kent) | 5191 | SOO | 6.34 KM |
| Maidstone East | 5115 | MDE | 7.66 KM |
Nearby Listings
| Address | Price | Type | Score | Distance |
|---|---|---|---|---|
| Juniper Close, Walderslade, ME5 | £ 350,000 | BUY | 7 / 10 | 0.00 KM |
| Sussex Drive, Chatham | £ 375,000 | BUY | 7 / 10 | 0.09 KM |
| Sussex Drive, Chatham, Kent, ME5 | £ 300,000 | BUY | 6 / 10 | 0.10 KM |
| Walderslade Road, Chatham, Kent, ME5 | £ 400,000 | BUY | 6 / 10 | 0.14 KM |
| Sussex Drive, Walderslade, Chatham, Kent | £ 425,000 | BUY | Unknown | 0.14 KM |
Nearby Properties
| Address | Price | Distance |
|---|---|---|
| 24 Juniper Close | £ 270,000 | 0.01 KM |
| 20 Juniper Close | £ 320,000 | 0.01 KM |
| 17 Juniper Close | £ 201,000 | 0.01 KM |
| 27 Juniper Close | £ 246,000 | 0.01 KM |
| 15 Juniper Close | £ 170,000 | 0.01 KM |