John Payne says ..
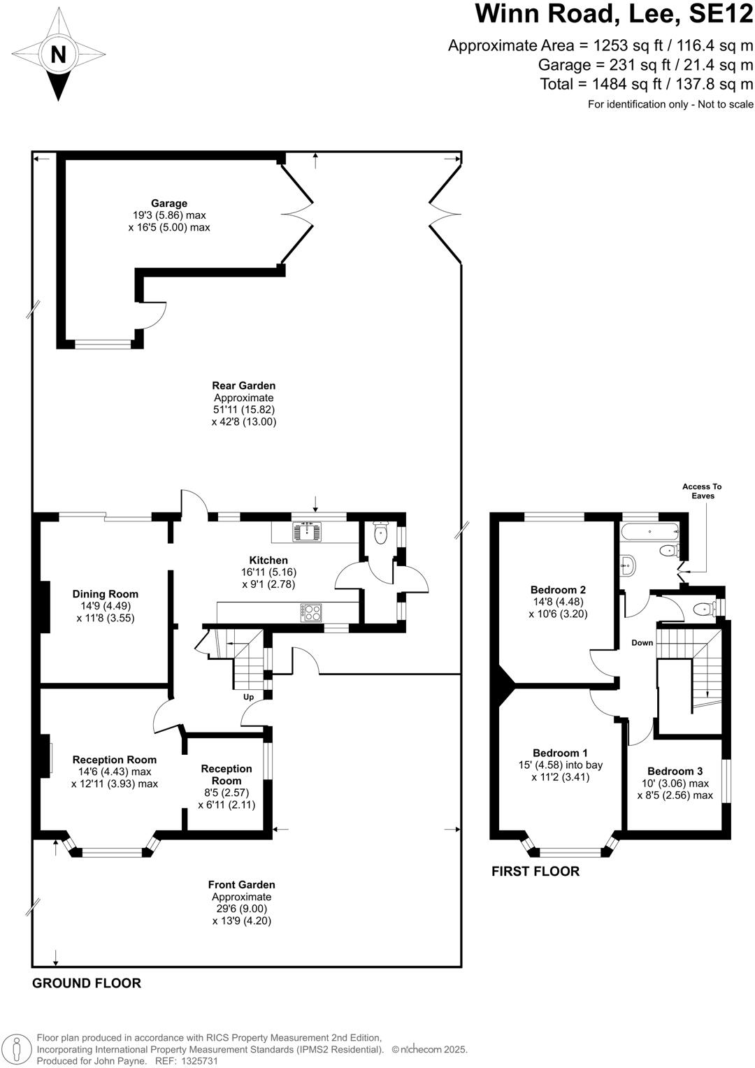
An extended three bedroom detached house situated on a spacious corner plot in a sought after residential road, equidistant to both Lee and Grove Park train stations. The house is bright and welcoming with plenty of potential to make a lovely family home. The accommodation briefly comp...
Property Oracle says ..
Therefore, we give this property 6 / 10. *Disclaimer: This is our option and does constitute a recommendation or financial advice. Do your own research. *
- Price
- 8
- Condition
- 5
- Location
- 7
- Land
- 6
- Bedrooms
- 3
- Bathrooms
- 1
- Sqft (est)
- 1,484.00
- Lot (est)
- 1,847.33
The heatmap indicates the level of crime in the area. The color of the heatmap indicates the crime severity and recency.
Metrics Year-on-Year
- Average area value
- 549,583.00 £Decreased by 22.65 %
- Est sale value
- 1,065,512.00 £Increased by 1.27 %
- Average area rental value
- 2,515.00 £/moIncreased by 55.63 %
- Est letting value
- 4,452.00 £/moIncreased by 200.00 %
- Est rental Yield
- 5.49 %Increased by 101.10 %
- Crime Rate
- 1.00 %Unchanged by 0.00 %
from 710,533.00 £
from 1,052,156.00 £
from 1,616.00 £/mo
from 1,484.00 £/mo
from 2.73 %
from 1.00 %
Agent Activity
John Payne created the listing.
Nearby Schools
| Name | Type | Ofsted | Distance |
|---|---|---|---|
| Horn Park Primary School | Academy Converter | Good | 0.46 KM |
| Cooper'S Lane Primary School | Community School | Good | 0.94 KM |
| Middle Park Primary School | Community School | Good | 1.14 KM |
| Colfe'S School | Other Independent School | 1.20 KM | |
| Eltham College | Other Independent School | 1.25 KM |
Images
Nearby Streets
| Name | Average Price | Average Sqft | Distance |
|---|---|---|---|
| Gavestone Crescent | £ 0 | 0 | 0.00 KM |
| Eversfielld Court | £ 0 | 0 | 0.00 KM |
| Ferndown Road | £ 0 | 0 | 0.00 KM |
| Stratfield House | £ 0 | 0 | 0.00 KM |
| Westhorne Avenue | £ 350,000 | 0 | 0.00 KM |
Nearby Transport
| Name | NLC | TLC | Distance |
|---|---|---|---|
| Grove Park | 5139 | GRP | 1.37 KM |
| Lee | 5110 | LEE | 1.84 KM |
| Kidbrooke | 5108 | KDB | 2.29 KM |
| Mottingham | 5118 | MTG | 2.45 KM |
| Eltham | 5103 | ELW | 3.13 KM |
Nearby Listings
| Address | Price | Type | Score | Distance |
|---|---|---|---|---|
| Winn Road, Lee | £ 700,000 | BUY | 6 / 10 | 0.00 KM |
| Winn Road, Lee | £ 795,000 | BUY | 5 / 10 | 0.03 KM |
| Winn Road, Lee | £ 750,000 | BUY | Unknown | 0.08 KM |
| Jevington Way, London, SE12 | £ 475,000 | BUY | 7 / 10 | 0.09 KM |
| Jevington Way, Lee | £ 465,000 | BUY | 6 / 10 | 0.09 KM |
Nearby Properties
| Address | Price | Distance |
|---|---|---|
| 106 Winn Road | £ 462,500 | 0.04 KM |
| 96 Winn Road | £ 440,000 | 0.04 KM |
| 94 Winn Road | £ 480,000 | 0.04 KM |
| 98 Winn Road | £ 100,000 | 0.04 KM |
| 105 Winn Road | £ 670,000 | 0.04 KM |