Northwood says ..
Investment Opportunity ? Block of Three Tenanted Apartments in the Heart of WilmslowA rare opportunity to acquire a block of three self-contained apartments in the very centre...
Property Oracle says ..
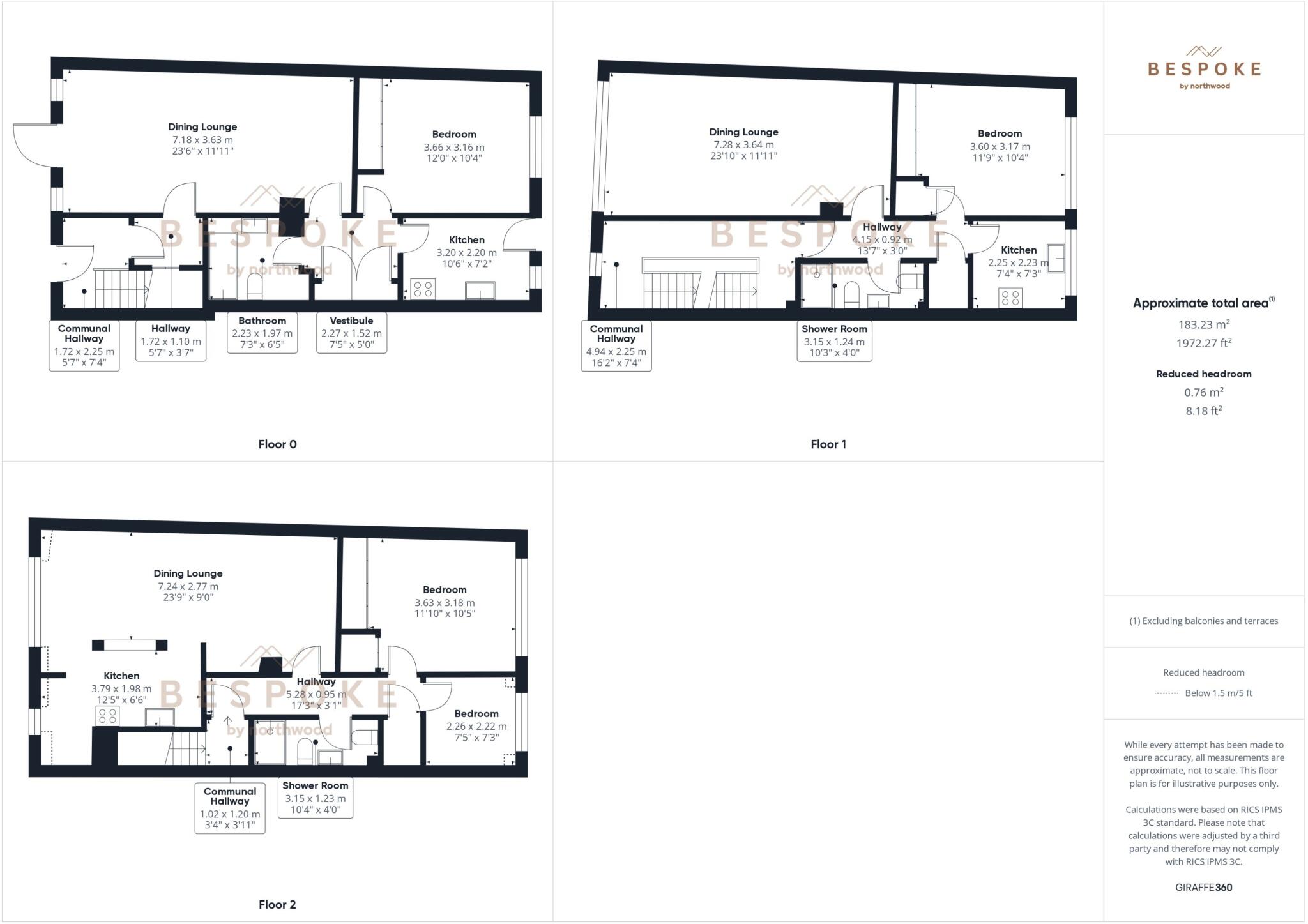
This property is a four bedroom apartment located in Wilmslow, Cheshire. Wilmslow is a desirable location with good schools and transport links. The property itself appears to be in reasonable condition, although some modernisation may be beneficial. The kitchen and bathrooms, in particular, show signs of age. The lack of plot size information makes it difficult to assess the land aspect. Comparing the list price to the average price per square foot in the area requires more information on the property size. However, given the average house price in the area is significantly higher than the list price, it may represent good value for money, depending on the actual square footage.
Therefore, we give this property 7 / 10. *Disclaimer: This is our option and does constitute a recommendation or financial advice. Do your own research. *
- Price
- 7
- Condition
- 6
- Location
- 8
- Land
- 0
- Bedrooms
- 4
- Bathrooms
- 3
- Sqft (est)
- 726.00
- Lot (est)
- 1,972.27
The heatmap indicates the level of crime in the area. The color of the heatmap indicates the crime severity and recency.
Metrics Year-on-Year
- Average area value
- 1,168,333.00 £Increased by 51.76 %
- Est sale value
- 428,340.00 £Increased by 37.53 %
- Average area rental value
- 8,690.00 £/moIncreased by 118.12 %
- Est letting value
- 2,904.00 £/moIncreased by 100.00 %
- Est rental Yield
- 8.93 %Increased by 43.80 %
- Crime Rate
- 53.00 %Unchanged by 0.00 %
Agent Activity
Northwood created the listing.
Nearby Schools
| Name | Type | Ofsted | Distance |
|---|---|---|---|
| Wilmslow Preparatory School | Other Independent School | 0.35 KM | |
| Wilmslow High School | Community School | Good | 0.42 KM |
| Lacey Green Primary Academy | Academy Converter | 1.36 KM | |
| St Anne'S Fulshaw C Of E Primary School | Voluntary Controlled School | Good | 1.40 KM |
| Gorsey Bank Primary School | Academy Converter | Good | 1.84 KM |
Images
Nearby Streets
| Name | Average Price | Average Sqft | Distance |
|---|---|---|---|
| Grove Street | £ 135,000 | 0 | 0.00 KM |
| Station Road | £ 350,000 | 0 | 0.00 KM |
| Forecourt | £ 0 | 0 | 0.00 KM |
| Bollin Link | £ 0 | 0 | 0.00 KM |
| Hawthorn Square | £ 0 | 0 | 0.00 KM |
Nearby Transport
| Name | NLC | TLC | Distance |
|---|---|---|---|
| Wilmslow | 2774 | WML | 0.56 KM |
| Alderley Edge | 2760 | ALD | 2.51 KM |
| Styal | 2868 | SYA | 2.71 KM |
| Handforth | 2767 | HTH | 3.03 KM |
| Heald Green | 2860 | HDG | 4.90 KM |
Nearby Listings
| Address | Price | Type | Score | Distance |
|---|---|---|---|---|
| Parkway, Wilmslow, SK9 | £ 550,000 | BUY | 7 / 10 | 0.00 KM |
| Draxford Court, Parkway, Wilmslow | £ 295,000 | BUY | 6 / 10 | 0.05 KM |
| Parkway, Wilmslow, Cheshire, SK9 | £ 250,000 | BUY | 5 / 10 | 0.10 KM |
| Green Hall Mews, Wilmslow | £ 249,950 | BUY | 5 / 10 | 0.11 KM |
| Green Hall Mews, Wilmslow | £ 260,000 | BUY | 7 / 10 | 0.11 KM |
Nearby Properties
| Address | Price | Distance |
|---|---|---|
| 10 Draxford Court | £ 319,950 | 0.07 KM |
| 14 Draxford Court | £ 230,000 | 0.07 KM |
| 12 Draxford Court | £ 172,000 | 0.07 KM |
| 11 Draxford Court | £ 308,000 | 0.07 KM |
| 13 Draxford Court | £ 254,000 | 0.07 KM |