Frimley Green Road, Frimley Green, Camberley, GU16
By Luff & Wilkin
£ 425,000
Reviews
3 out of 5 stars
Luff & Wilkin says ..
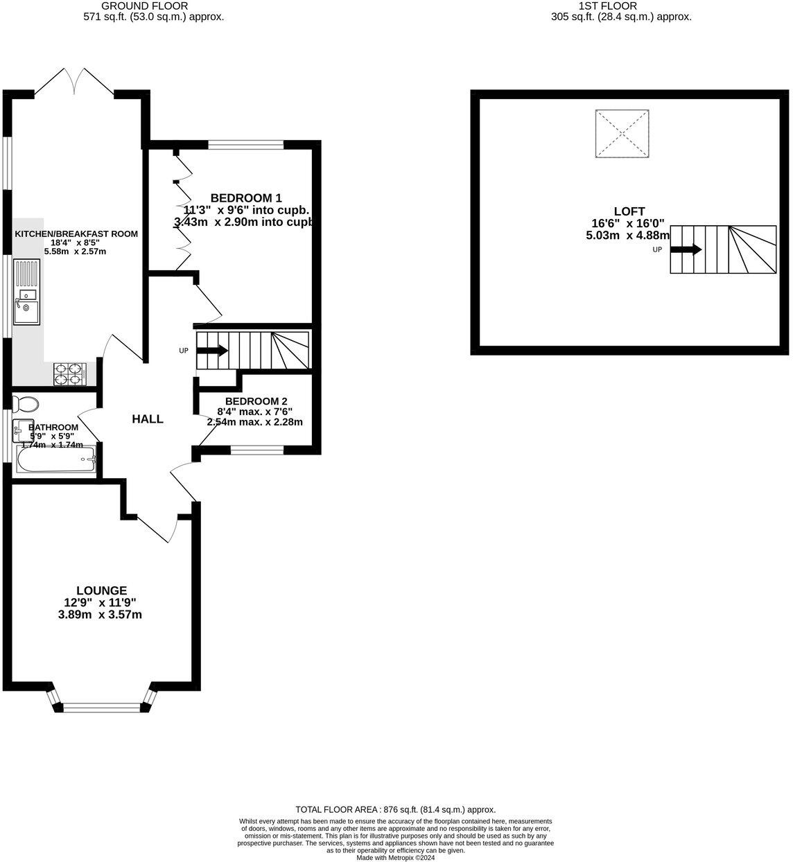
A 1930s built two bedroom semi-detached bungalow situated in this convenient location, within easy reach of local schools and village shops. Frimley is also convenient with a railway station, shops and access to the M3 motorway.The accommodation comprises of two bedrooms, lounge, kitche...
Property Oracle says ..
This 2-bedroom, 1-bathroom semi-detached bungalow located in Frimley Green, Camberley, offers a convenient location close to local schools, shops, and transport links including Frimley and Farnborough train stations. The property is presented in good condition, though some modernisation may improve the kitchen and bathroom. It also includes a garden, adding to its family-friendly appeal. Given the property’s location, condition, and amenities, and based on the limited local market data, the asking price is considered reasonable, although the scarcity of precise data related to square footage and precise comparable property pricing makes definitive valuation difficult. Buyers should conduct additional research to fully determine the property’s value.
Therefore, we give this property 6 / 10. *Disclaimer: This is our option and does constitute a recommendation or financial advice. Do your own research. *
- Price
- 7
- Condition
- 6
- Location
- 7
- Land
- 4
- Bedrooms
- 2
- Bathrooms
- 1
- Sqft (est)
- 876.00
The heatmap indicates the level of crime in the area. The color of the heatmap indicates the crime severity and recency.
Metrics Year-on-Year
- Average area value
- 475,000.00 £Decreased by 13.40 %
- Est sale value
- 488,808.00 £Increased by 44.56 %
- Average area rental value
- 1,548.00 £/moDecreased by 3.31 %
- Est letting value
- 876.00 £/moUnchanged by 0.00 %
- Est rental Yield
- 3.91 %Increased by 11.71 %
- Crime Rate
- 3.00 %Unchanged by 0.00 %
Agent Activity
Luff & Wilkin created the listing.
Nearby Schools
| Name | Type | Ofsted | Distance |
|---|---|---|---|
| Frimley Cofe Junior School | Academy Converter | 0.07 KM | |
| Cross Farm Infant Academy | Academy Converter | 0.56 KM | |
| Sandringham Infant & Nursery Academy | Academy Converter | Good | 0.63 KM |
| Lakeside Nursery & Primary Academy | Academy Converter | Good | 1.05 KM |
| The Grove Primary Academy | Academy Converter | Good | 1.36 KM |
Images
Nearby Streets
| Name | Average Price | Average Sqft | Distance |
|---|---|---|---|
| Addison Road | £ 0 | 0 | 0.00 KM |
| Balmoral Drive | £ 0 | 0 | 0.00 KM |
| Nursery Close | £ 0 | 0 | 0.00 KM |
| Kirkby Court | £ 0 | 0 | 0.00 KM |
| The Green | £ 0 | 0 | 0.00 KM |
Nearby Transport
| Name | NLC | TLC | Distance |
|---|---|---|---|
| Farnborough North | 5688 | FNN | 1.38 KM |
| Frimley | 5683 | FML | 1.64 KM |
| Farnborough (Main) | 5521 | FNB | 2.90 KM |
| Camberley | 5682 | CAM | 3.34 KM |
| North Camp | 5636 | NCM | 3.67 KM |
Nearby Listings
| Address | Price | Type | Score | Distance |
|---|---|---|---|---|
| Frimley Green Road, Frimley Green, Camberley, GU16 | £ 425,000 | BUY | 6 / 10 | 0.00 KM |
| Frimley Green Road, Frimley Green | £ 725,000 | BUY | Unknown | 0.01 KM |
| Frimley Green Road, Frimley Green, Camberley, Surrey, GU16 | £ 430,000 | BUY | 7 / 10 | 0.02 KM |
| Camberley, Surrey, GU15 | £ 850,000 | BUY | Unknown | 0.07 KM |
| Worsley Road, Frimley | £ 490,000 | BUY | 7 / 10 | 0.17 KM |
Nearby Properties
| Address | Price | Distance |
|---|---|---|
| 151 Frimley Green Road | £ 280,000 | 0.01 KM |
| 155 Frimley Green Road | £ 385,000 | 0.01 KM |
| 157 Frimley Green Road | £ 360,000 | 0.01 KM |
| 123 Frimley Green Road | £ 320,000 | 0.01 KM |
| 139 Frimley Green Road | £ 355,000 | 0.01 KM |