Foxtons says ..
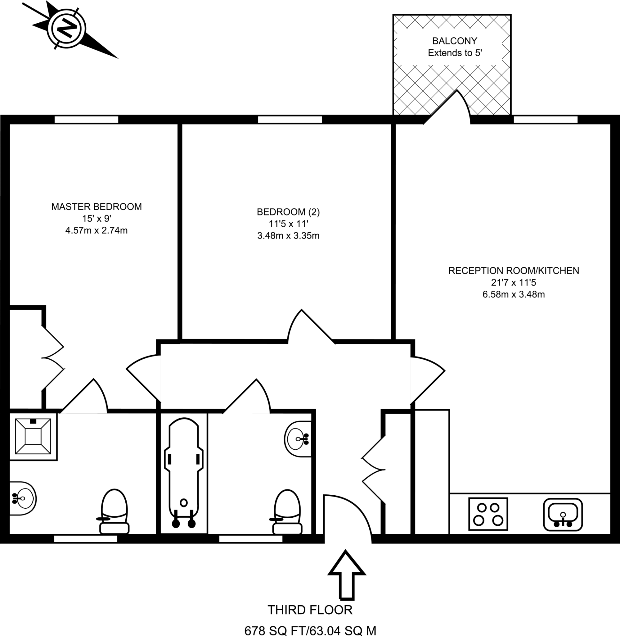
A stunning two bedroom third floor flat with a private balcony and Olympic Park views, set within a modern development with impressive roof gardens found moments from the local amenities and Westfield shopping centre.
Property Oracle says ..
This two-bedroom apartment in Stratford, London, is situated in a convenient location with excellent transport links via Stratford station, offering access to various rail and underground lines. The property is part of a modern development, as evidenced by the building’s contemporary design and the well-maintained communal roof gardens, which offer residents additional outdoor space. The interior of the apartment is presented in good condition, with a modern kitchen and bathrooms. The photos suggest a clean, well-maintained space. While the apartment itself lacks a private garden, the communal roof gardens provide a valuable amenity. The location’s proximity to Westfield Stratford City and the Queen Elizabeth Olympic Park are significant advantages, enhancing the property’s appeal. The list price appears competitive within the context of similar properties in the area, although a precise price-per-square-foot analysis is impossible due to missing data in nearby listings. Overall, this property presents a good option for buyers seeking a modern, well-located apartment in Stratford.
Therefore, we give this property 5 / 10. *Disclaimer: This is our option and does constitute a recommendation or financial advice. Do your own research. *
- Price
- 7
- Condition
- 8
- Location
- 7
- Land
- 1
- Bedrooms
- 2
- Bathrooms
- 2
- Sqft (est)
- 678.56
The heatmap indicates the level of crime in the area. The color of the heatmap indicates the crime severity and recency.
Metrics Year-on-Year
- Average area value
- 414,997.00 £Decreased by 30.96 %
- Est sale value
- 458,706.56 £Decreased by 10.46 %
- Average area rental value
- 2,643.00 £/moDecreased by 19.49 %
- Est letting value
- 2,714.24 £/moUnchanged by 0.00 %
- Est rental Yield
- 7.64 %Increased by 16.64 %
- Crime Rate
- 6.00 %Unchanged by 0.00 %
Agent Activity
Foxtons created the listing.
Nearby Schools
| Name | Type | Ofsted | Distance |
|---|---|---|---|
| London Academy Of Excellence | Free Schools 16 To 19 | Outstanding | 0.20 KM |
| Carpenters Primary School | Community School | Good | 0.39 KM |
| John F Kennedy Special School | Academy Special Converter | Outstanding | 0.53 KM |
| Abbey Lane Children'S Centre | Children's Centre | 0.65 KM | |
| Stratford Circus | Miscellaneous | 0.72 KM |
Images
Nearby Streets
| Name | Average Price | Average Sqft | Distance |
|---|---|---|---|
| Meridian Square | £ 675,000 | 0 | 0.00 KM |
| Service Route No 1 | £ 475,000 | 0 | 0.00 KM |
| Meridian Steps | £ 0 | 0 | 0.00 KM |
| International Business Park | £ 0 | 0 | 0.00 KM |
| Burtons Court | £ 0 | 0 | 0.00 KM |
Nearby Transport
| Name | NLC | TLC | Distance |
|---|---|---|---|
| Stratford | 6969 | SRA | 0.42 KM |
| Stratford International | 7222 | SFA | 1.00 KM |
| Maryland | 6970 | MYL | 1.29 KM |
| West Ham | 7474 | WEH | 1.41 KM |
| Hackney Wick | 6978 | HKW | 2.52 KM |
Nearby Listings
| Address | Price | Type | Score | Distance |
|---|---|---|---|---|
| Lett Road, Stratford, London, E15 | £ 400,000 | BUY | 5 / 10 | 0.00 KM |
| Edge Apartments, Lett Road, E15 | £ 375,000 | BUY | 6 / 10 | 0.02 KM |
| Stratford Eye, Stratford, London, E15 | £ 280,000 | BUY | Unknown | 0.08 KM |
| Ward Road, London, E15 | £ 395,000 | BUY | Unknown | 0.10 KM |
| Atelier Point, Jupp Road West, London, E15 | £ 525,000 | BUY | 6 / 10 | 0.10 KM |
Nearby Properties
| Address | Price | Distance |
|---|---|---|
| 47 Jupp Road | £ 530,000 | 0.08 KM |
| 51 Jupp Road | £ 490,000 | 0.08 KM |
| 43 Jupp Road | £ 305,000 | 0.08 KM |
| 57 Jupp Road | £ 250,000 | 0.08 KM |
| 31 Jupp Road | £ 142,000 | 0.08 KM |