Explorers Court, 5 Newport Avenue, E14
By JOHNS&CO
£ 475,000
Reviews
2 out of 5 stars
JOHNS&CO says ..
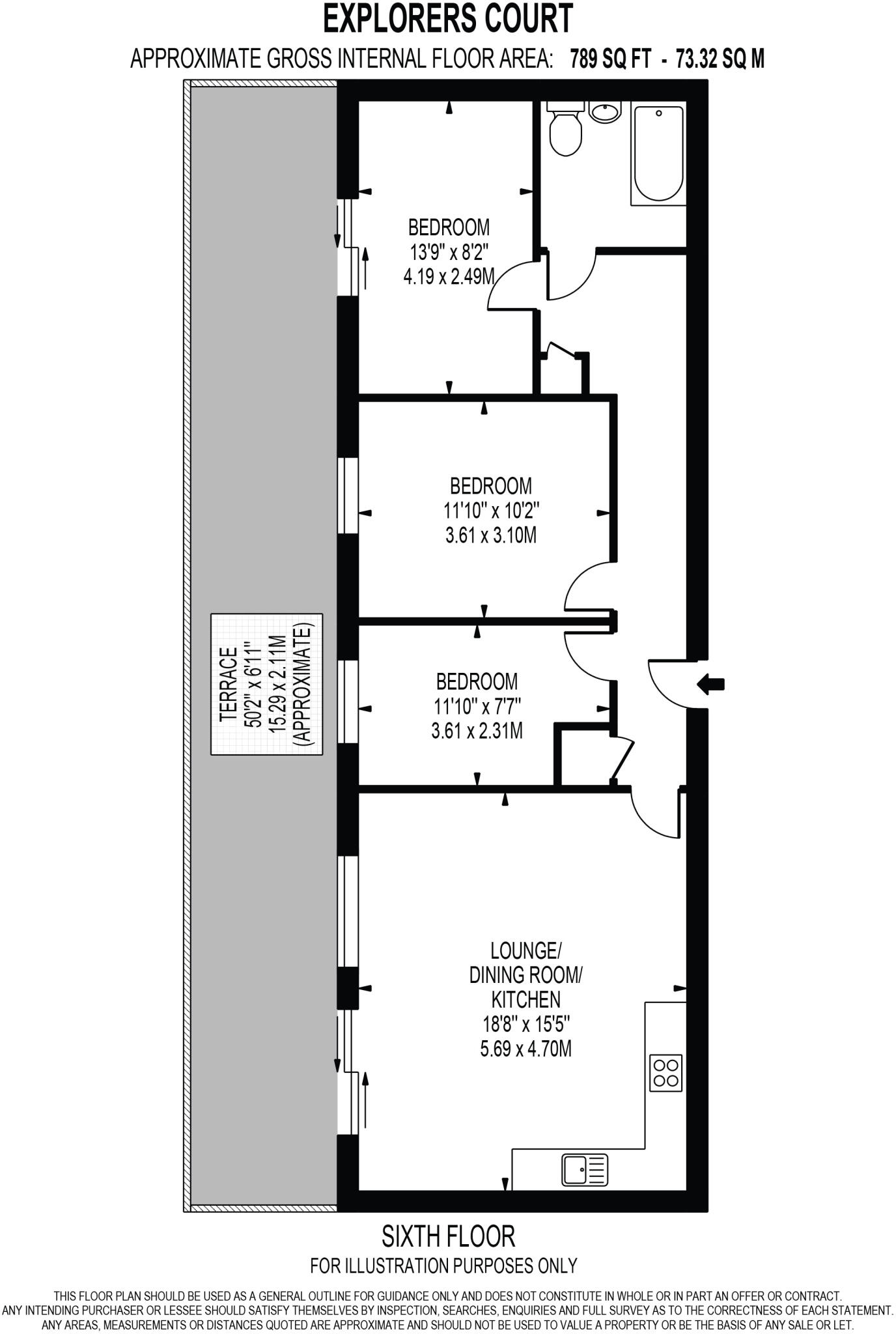
JOHNS&CO present this impeccable and spacious three double bedroom apartment on the 8th floor of the riverside Explorers Court, E14.
Property Oracle says ..
This three-bedroom apartment in Explorers Court, E14, offers a blend of urban convenience and relative tranquility. Situated in the Blackwall & Cubitt Town area of Tower Hamlets, the location provides access to several well-regarded schools and various transportation links, although the distance to central hubs is noteworthy. The property is presented as spacious, with three double bedrooms and a reasonably sized living area. The images suggest that the property is clean but would benefit from a cosmetic refresh in the kitchen and some minor updating to fully realise its potential. The lack of private outdoor space is a factor to consider. The price point of £475,000 appears competitive when compared to other listed properties and sales within the surrounding neighborhood, reflecting both the apartment’s size and location. However, prospective buyers should factor in potential renovation costs to fully assess the overall value proposition.
Therefore, we give this property 5 / 10. *Disclaimer: This is our option and does constitute a recommendation or financial advice. Do your own research. *
- Price
- 7
- Condition
- 6
- Location
- 7
- Land
- 1
- Bedrooms
- 3
- Bathrooms
- 1
- Sqft (est)
- 789.21
The heatmap indicates the level of crime in the area. The color of the heatmap indicates the crime severity and recency.
Metrics Year-on-Year
- Average area value
- 772,015.00 £Increased by 8.00 %
- Est sale value
- 271,488.24 £Decreased by 60.82 %
- Average area rental value
- 1,899.00 £/moDecreased by 56.45 %
- Est letting value
- 0.00 £/moDecreased by 100.00 %
- Est rental Yield
- 2.95 %Decreased by 59.70 %
- Crime Rate
- 6.00 %Unchanged by 0.00 %
Agent Activity
JOHNS&CO created the listing.
Nearby Schools
| Name | Type | Ofsted | Distance |
|---|---|---|---|
| Aberfeldy Children'S Centre | Children's Centre Linked Site | 0.64 KM | |
| Culloden Primary - A Paradigm Academy | Academy Converter | Outstanding | 0.73 KM |
| Woolmore Primary School | Community School | Good | 0.78 KM |
| Ravensbourne | Higher Education Institutions | Good | 1.16 KM |
| Faraday School | Other Independent School | 1.18 KM |
Images
Nearby Streets
| Name | Average Price | Average Sqft | Distance |
|---|---|---|---|
| East India Dock Road Tunnel | £ 599,990 | 0 | 0.00 KM |
| Nutmeg Lane | £ 0 | 0 | 0.00 KM |
| Clove Crescent | £ 0 | 0 | 0.00 KM |
| Silvocea Way | £ 597,531 | 0 | 0.00 KM |
| Silvosia Wharf | £ 0 | 0 | 0.00 KM |
Nearby Transport
| Name | NLC | TLC | Distance |
|---|---|---|---|
| West Ham | 7474 | WEH | 2.30 KM |
| Maze Hill | 5149 | MZH | 3.00 KM |
| Westcombe Park | 5151 | WCB | 3.57 KM |
| Stratford | 6969 | SRA | 3.65 KM |
| Greenwich | 5146 | GNW | 3.68 KM |
Nearby Listings
| Address | Price | Type | Score | Distance |
|---|---|---|---|---|
| Explorers Court, 5 Newport Avenue, E14 | £ 475,000 | BUY | 5 / 10 | 0.00 KM |
| Explorers Court, Newport Avenue, London, E14 | £ 435,000 | BUY | 6 / 10 | 0.01 KM |
| Explorers Court, Canary Wharf, London, E14 | £ 310,000 | BUY | 5 / 10 | 0.03 KM |
| Elektron Tower, London, E14 | £ 400,000 | BUY | 6 / 10 | 0.04 KM |
| Studley Court, 5 Prime Meridian Walk, London, E14 | £ 325,000 | BUY | 6 / 10 | 0.05 KM |
Nearby Properties
| Address | Price | Distance |
|---|---|---|
| 5 | £ 275,000 | 0.01 KM |
| 6b Jamestown Way | £ 465,000 | 0.12 KM |
| 6a Jamestown Way | £ 525,000 | 0.12 KM |
| 41 Jamestown Way | £ 345,000 | 0.26 KM |
| 37 Jamestown Way | £ 675,000 | 0.26 KM |