SE
Arethusa Way, Bisley, Woking, Surrey, GU24
By Seymours Estate Agents
£ 435,000
Reviews
3 out of 5 stars
Seymours Estate Agents says ..
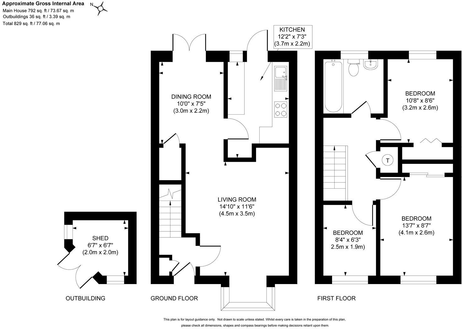
** NO ONWARD CHAIN ** A well presented end of terrace neo-Georgian style home located in an extremely pleasant cul de sac, in the sought after village of Bisley, a short walk from the local primary school. The accommodation is light and airy throughout with a generous ground floor reception ...
Property Oracle says ..
Therefore, we give this property 6 / 10. *Disclaimer: This is our option and does constitute a recommendation or financial advice. Do your own research. *
- Price
- 7
- Condition
- 6
- Location
- 7
- Land
- 7
- Bedrooms
- 3
- Bathrooms
- 1
- Sqft (est)
- 829.47
The heatmap indicates the level of crime in the area. The color of the heatmap indicates the crime severity and recency.
Metrics Year-on-Year
- Average area value
- 644,188.00 £Increased by 3.54 %
- Est sale value
- 351,695.28 £Decreased by 26.64 %
- Average area rental value
- 2,466.00 £/moDecreased by 21.84 %
- Est letting value
- 829.47 £/moDecreased by 50.00 %
- Est rental Yield
- 4.59 %Decreased by 24.63 %
- Crime Rate
- 12.00 %Unchanged by 0.00 %
from 622,146.00 £
from 479,433.66 £
from 3,155.00 £/mo
from 1,658.94 £/mo
from 6.09 %
from 12.00 %
Agent Activity
Seymours Estate Agents created the listing.
Nearby Schools
| Name | Type | Ofsted | Distance |
|---|---|---|---|
| Bisley Cofe Primary School | Voluntary Aided School | Good | 0.51 KM |
| Holy Trinity Cofe Primary School | Academy Converter | 1.92 KM | |
| The Knaphill Lower School | Academy Converter | 1.95 KM | |
| Knaphill School | Academy Converter | 2.02 KM | |
| Gordon'S School | Academy Converter | Outstanding | 2.24 KM |
Images
Nearby Streets
| Name | Average Price | Average Sqft | Distance |
|---|---|---|---|
| Strawberry Fields | £ 925,000 | 0 | 0.00 KM |
| Iris Drive | £ 0 | 0 | 0.00 KM |
| Stafford Lake | £ 0 | 0 | 0.00 KM |
| Guernsey Way | £ 0 | 0 | 0.00 KM |
| Gloucester Close | £ 735,000 | 0 | 0.00 KM |
Nearby Transport
| Name | NLC | TLC | Distance |
|---|---|---|---|
| Brookwood | 5687 | BKO | 2.36 KM |
| Bagshot | 5681 | BAG | 6.99 KM |
| Worplesdon | 5686 | WPL | 7.46 KM |
| Sunningdale | 5671 | SNG | 7.54 KM |
| Longcross | 5674 | LNG | 8.39 KM |
Nearby Listings
| Address | Price | Type | Score | Distance |
|---|---|---|---|---|
| Arethusa Way, Bisley, Woking, Surrey, GU24 | £ 435,000 | BUY | 6 / 10 | 0.00 KM |
| South Road, Bisley, Woking, Surrey, GU24 | £ 675,000 | BUY | 7 / 10 | 0.13 KM |
| Cottesloe Close, Bisley, Woking, Surrey, GU24 | £ 525,000 | BUY | 8 / 10 | 0.15 KM |
| Arethusa Way, Bisley | £ 685,000 | BUY | 7 / 10 | 0.18 KM |
| Cottesloe Close, Bisley, Woking, GU24 | £ 525,000 | BUY | 6 / 10 | 0.18 KM |
Nearby Properties
| Address | Price | Distance |
|---|---|---|
| 191 Arethusa Way | £ 400,000 | 0.01 KM |
| 217 Arethusa Way | £ 224,950 | 0.01 KM |
| 187 Arethusa Way | £ 352,500 | 0.01 KM |
| 215 Arethusa Way | £ 440,000 | 0.01 KM |
| 129 Arethusa Way | £ 354,000 | 0.01 KM |