Chancellors says ..
Two bedroom end of terrace house in prime location. This home offers charmful character features within a convenient location for amenities and travel, and benefits from significant upgrades completed by the current owners.
Property Oracle says ..
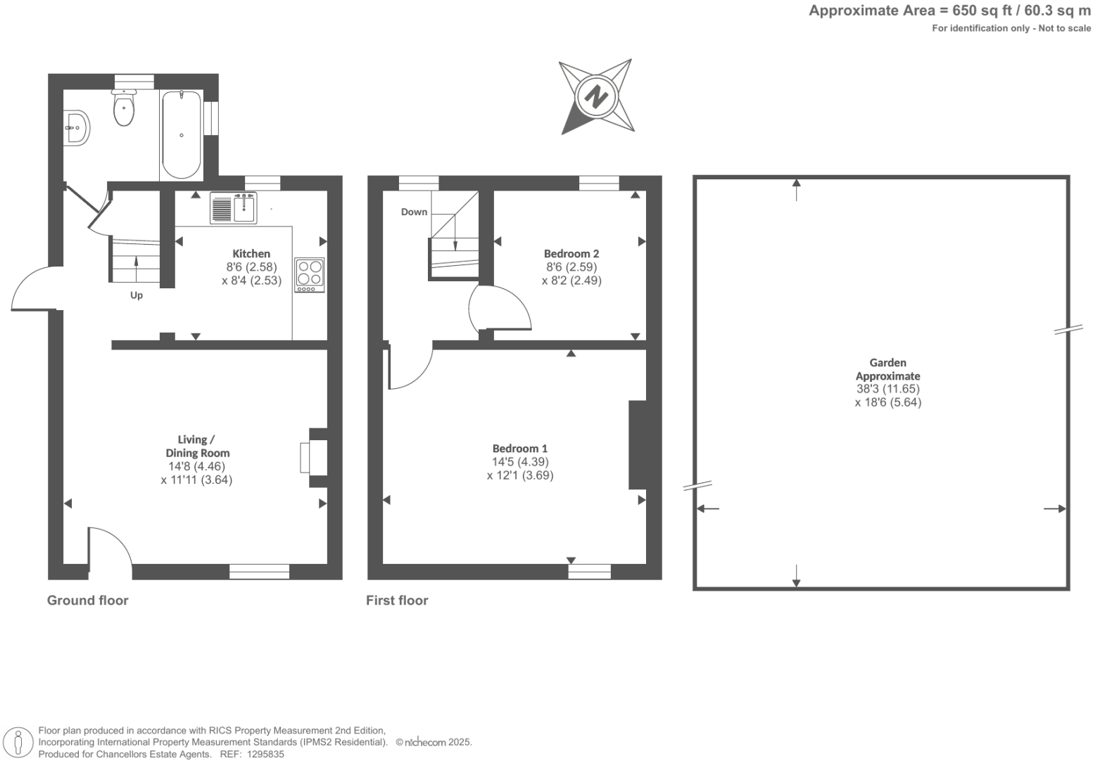
This property is a 2 bedroom end of terrace house located in Newbury, West Berkshire. It benefits from being close to local schools and transport links. The property itself is in good condition and has been recently updated. There is a small garden to the rear. The asking price of £325,000 is slightly below the average price for the area, making it potentially good value for money, although it is smaller than the average property size.
Therefore, we give this property 7 / 10. *Disclaimer: This is our option and does constitute a recommendation or financial advice. Do your own research. *
- Price
- 7
- Condition
- 8
- Location
- 7
- Land
- 6
- Bedrooms
- 2
- Bathrooms
- 1
- Sqft (est)
- 487.00
- Lot (est)
- 650.00
The heatmap indicates the level of crime in the area. The color of the heatmap indicates the crime severity and recency.
Metrics Year-on-Year
- Average area value
- 521,250.00 £Increased by 3.35 %
- Est sale value
- 207,462.00 £Increased by 27.93 %
- Average area rental value
- 2,075.00 £/moIncreased by 13.39 %
- Est letting value
- 487.00 £/moUnchanged by 0.00 %
- Est rental Yield
- 4.78 %Increased by 9.89 %
- Crime Rate
- 2.00 %Unchanged by 0.00 %
Agent Activity
Chancellors created the listing.
Nearby Schools
| Name | Type | Ofsted | Distance |
|---|---|---|---|
| St Bartholomew'S School | Academy Converter | Good | 0.17 KM |
| St John The Evangelist C.E. Nursery And Infant Sch | Voluntary Aided School | Good | 0.61 KM |
| Icollege Alternative Provision | Pupil Referral Unit | Good | 0.76 KM |
| St Nicolas C.E. Junior School | Voluntary Aided School | Good | 0.99 KM |
| John Rankin Junior School | Community School | Good | 1.16 KM |
Images
Nearby Streets
| Name | Average Price | Average Sqft | Distance |
|---|---|---|---|
| Carnarvon Place | £ 0 | 0 | 0.00 KM |
| Cedar Mount | £ 0 | 0 | 0.00 KM |
| Robins Close | £ 0 | 0 | 0.00 KM |
| Fairview | £ 285,000 | 0 | 0.00 KM |
| Newtown Road | £ 0 | 0 | 0.00 KM |
Nearby Transport
| Name | NLC | TLC | Distance |
|---|---|---|---|
| Newbury | 3074 | NBY | 1.22 KM |
| Newbury Racecourse | 3071 | NRC | 2.75 KM |
| Thatcham | 3152 | THA | 9.76 KM |
Nearby Listings
| Address | Price | Type | Score | Distance |
|---|---|---|---|---|
| Andover Road, Newbury, RG14 | £ 325,000 | BUY | 7 / 10 | 0.00 KM |
| Andover Road, Newbury, Berkshire, RG14 | £ 375,000 | BUY | 6 / 10 | 0.02 KM |
| Ireland Drive, Newbury, Berkshire, RG14 | £ 175,000 | BUY | 6 / 10 | 0.12 KM |
| Falkland Drive, Newbury, Berkshire, RG14 | £ 575,000 | BUY | 7 / 10 | 0.13 KM |
| Newbury, Berkshire, RG14 | £ 190,000 | BUY | 5 / 10 | 0.14 KM |
Nearby Properties
| Address | Price | Distance |
|---|---|---|
| 95 Andover Road | £ 282,000 | 0.03 KM |
| 91 Andover Road | £ 184,950 | 0.03 KM |
| 85 Andover Road | £ 375,000 | 0.03 KM |
| 89 Andover Road | £ 250,000 | 0.03 KM |
| 79 Andover Road | £ 377,500 | 0.03 KM |