Hunter & Hunter says ..
2 Bedroom Semi-Detached Bungalow For Sale
Property Oracle says ..
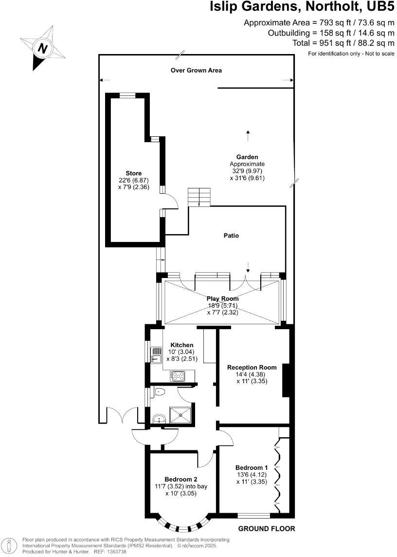
This two-bedroom bungalow is located in Northolt Mandeville, Ealing. The property offers 951 sqft of living space and includes a bathroom, garden, shed and conservatory. The property is located close to local schooling and is within reasonable distance of local transport links. While the property is in reasonable condition, it could benefit from some modernisation.
Therefore, we give this property 6 / 10. *Disclaimer: This is our option and does constitute a recommendation or financial advice. Do your own research. *
- Price
- 7
- Condition
- 6
- Location
- 7
- Land
- 7
- Bedrooms
- 2
- Bathrooms
- 1
- Sqft (est)
- 951.00
The heatmap indicates the level of crime in the area. The color of the heatmap indicates the crime severity and recency.
Metrics Year-on-Year
- Average area value
- 514,444.00 £Increased by 17.24 %
- Est sale value
- 570,600.00 £Increased by 25.26 %
- Average area rental value
- 1,788.00 £/moIncreased by 4.26 %
- Est letting value
- 1,902.00 £/moIncreased by 100.00 %
- Est rental Yield
- 4.17 %Decreased by 11.09 %
- Crime Rate
- 5.00 %Unchanged by 0.00 %
from 438,779.00 £
from 455,529.00 £
from 1,715.00 £/mo
from 951.00 £/mo
from 4.69 %
from 5.00 %
Agent Activity
Hunter & Hunter created the listing.
Nearby Schools
| Name | Type | Ofsted | Distance |
|---|---|---|---|
| Willow Tree Primary School | Community School | Good | 0.44 KM |
| Alec Reed Academy | Academy Sponsor Led | Good | 0.46 KM |
| John Chilton School | Community Special School | Good | 0.62 KM |
| Northolt High School | Foundation School | Good | 0.78 KM |
| Islip Manor Children'S Centre | Children's Centre | 0.98 KM |
Images
Nearby Streets
| Name | Average Price | Average Sqft | Distance |
|---|---|---|---|
| A312 | £ 0 | 0 | 0.00 KM |
| Target Roundabout | £ 250,000 | 0 | 0.00 KM |
| Eastcote Lane North | £ 542,500 | 0 | 0.00 KM |
| Hurst Close | £ 645,000 | 0 | 0.00 KM |
| Silverdale Close | £ 0 | 0 | 0.00 KM |
Nearby Transport
| Name | NLC | TLC | Distance |
|---|---|---|---|
| South Ruislip | 3057 | SRU | 2.51 KM |
| Northolt Park | 1478 | NLT | 2.53 KM |
| Greenford | 3136 | GFD | 3.72 KM |
| Southall | 3187 | STL | 4.48 KM |
| South Greenford | 3138 | SGN | 4.91 KM |
Nearby Listings
| Address | Price | Type | Score | Distance |
|---|---|---|---|---|
| Islip Gardens, Northolt | £ 520,000 | BUY | 6 / 10 | 0.00 KM |
| Dukes Avenue, Northolt, UB5 | £ 550,000 | BUY | 7 / 10 | 0.09 KM |
| Dukes Avenue, Northolt | £ 450,000 | BUY | 5 / 10 | 0.10 KM |
| Dukes Avenue, Northolt | £ 560,000 | BUY | Unknown | 0.10 KM |
| Islip Gardens, Northolt, UB5 | £ 585,000 | BUY | Unknown | 0.14 KM |
Nearby Properties
| Address | Price | Distance |
|---|---|---|
| 32 Islip Gardens | £ 430,000 | 0.01 KM |
| 24 Islip Gardens | £ 271,000 | 0.01 KM |
| 5 Islip Gardens | £ 270,000 | 0.01 KM |
| 28 Islip Gardens | £ 380,000 | 0.01 KM |
| 14 Islip Gardens | £ 260,000 | 0.01 KM |