Martin & Pole says ..
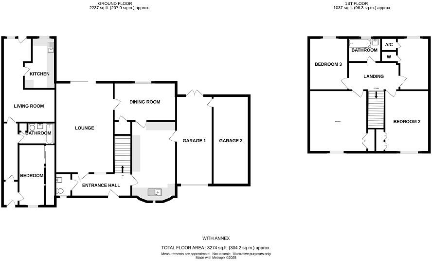
4 bedroom detached family home with a self contained annexe. Short cul de sac In need of updating and with potential to extend. No onward chain
Property Oracle says ..
This is a detached property in Wokingham, Berkshire. It features 5 bedrooms and 2 bathrooms. The property is located in a residential area with access to nearby schools and transportation. While the property appears to be in reasonable condition, it may benefit from some modernisation. The price seems high compared to the average for the area, but this could be due to the number of bedrooms and the detached nature of the property. Further investigation into the square footage would be required to accurately assess the asking price.
Therefore, we give this property 6 / 10. *Disclaimer: This is our option and does constitute a recommendation or financial advice. Do your own research. *
- Price
- 6
- Condition
- 7
- Location
- 7
- Land
- 6
- Bedrooms
- 5
- Bathrooms
- 2
The heatmap indicates the level of crime in the area. The color of the heatmap indicates the crime severity and recency.
Metrics Year-on-Year
- Average area value
- 411,429.00 £Decreased by 3.49 %
- Average area rental value
- 1,670.00 £/moIncreased by 1.27 %
- Est rental Yield
- 4.87 %Increased by 4.96 %
- Crime Rate
- 12.00 %Unchanged by 0.00 %
Agent Activity
Martin & Pole created the listing.
Nearby Schools
| Name | Type | Ofsted | Distance |
|---|---|---|---|
| St Crispin'S School | Academy Converter | 0.33 KM | |
| Westende Junior School | Academy Converter | 0.53 KM | |
| All Saints Cofe (Aided) Primary School | Voluntary Aided School | Good | 0.85 KM |
| Keep Hatch Primary School | Academy Converter | 0.87 KM | |
| Wescott Infant School | Academy Converter | 0.89 KM |
Images
Nearby Streets
| Name | Average Price | Average Sqft | Distance |
|---|---|---|---|
| Binfield Road | £ 0 | 0 | 0.00 KM |
| Southlands Road | £ 0 | 0 | 0.00 KM |
| Erica Drive | £ 0 | 0 | 0.00 KM |
| Tudor Close | £ 0 | 0 | 0.00 KM |
| Sundew Close | £ 0 | 0 | 0.00 KM |
Nearby Transport
| Name | NLC | TLC | Distance |
|---|---|---|---|
| Wokingham | 5696 | WKM | 2.54 KM |
| Crowthorne | 5628 | CRN | 4.83 KM |
| Winnersh | 5697 | WNS | 6.72 KM |
| Sandhurst (Berks) | 5646 | SND | 7.22 KM |
| Bracknell | 5693 | BCE | 7.51 KM |
Nearby Listings
| Address | Price | Type | Score | Distance |
|---|---|---|---|---|
| Wokingham, Berkshire | £ 850,000 | BUY | 6 / 10 | 0.00 KM |
| Burford Court, Rances Lane, Wokingham, Berkshire, RG40 2LJ | £ 240,000 | BUY | 7 / 10 | 0.04 KM |
| Ellerton Close, Wokingham, Berkshire, RG40 | £ 700,000 | BUY | 7 / 10 | 0.11 KM |
| London Road, Wokingham, Berkshire, RG40 | £ 450,000 | BUY | 6 / 10 | 0.13 KM |
| London Road, Wokingham, RG40 | £ 450,000 | BUY | 8 / 10 | 0.13 KM |
Nearby Properties
| Address | Price | Distance |
|---|---|---|
| 198 London Road | £ 345,000 | 0.13 KM |
| 202 London Road | £ 1,250,000 | 0.13 KM |
| 200 London Road | £ 420,000 | 0.13 KM |
| 217 London Road | £ 500,000 | 0.18 KM |
| 205 London Road | £ 660,000 | 0.18 KM |