AN
Denham Garden Village, Uxbridge retirement property
By Anchor Trust
£ 450,000
Anchor Trust says ..
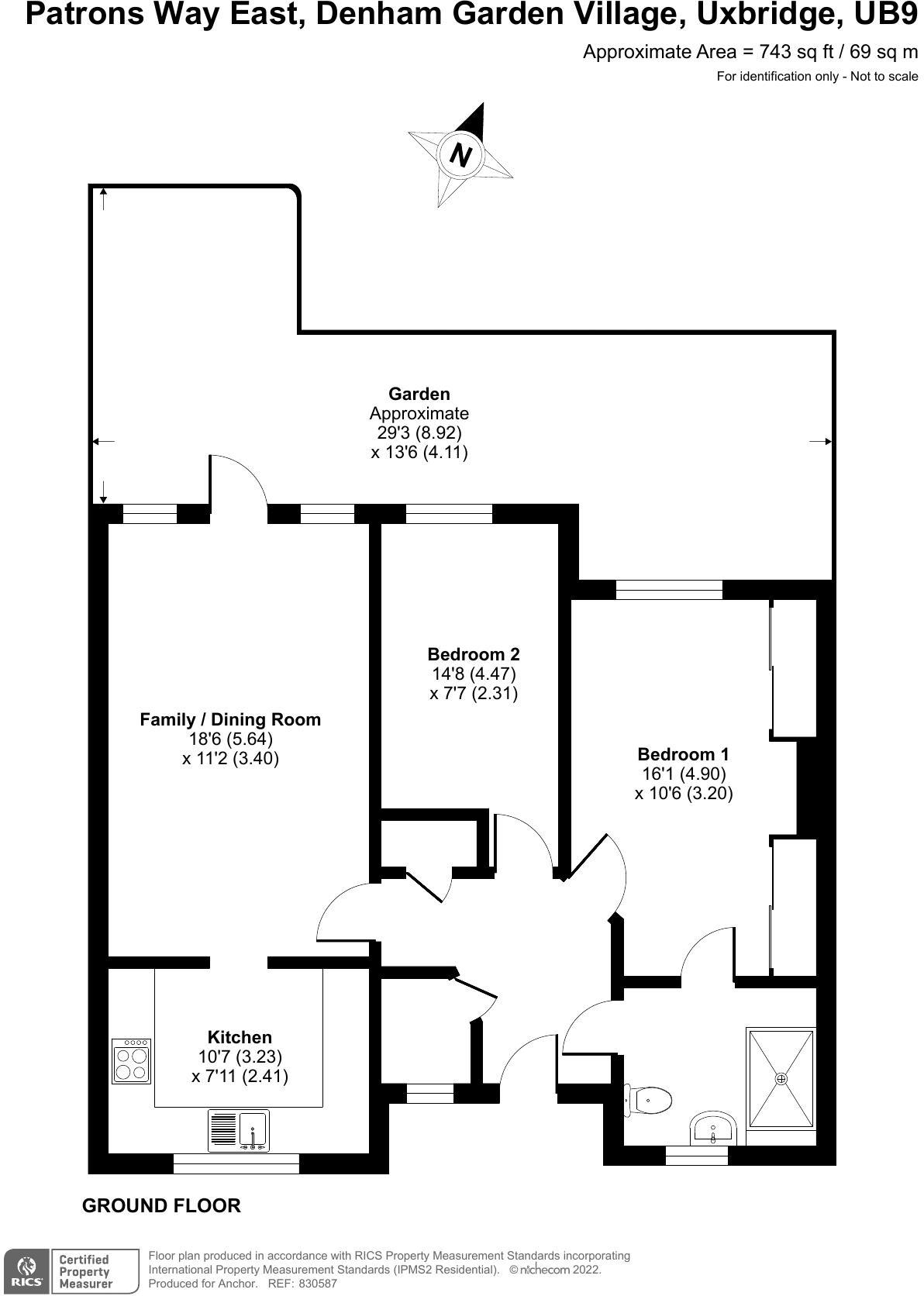
Set in a desirable location near to Denham Garden Village centre, this spacious apartment has a fabulous south-facing terrace/patio. Having room for patio furniture in two separate areas, this property offers the buyer opportunities for outdoor entertaining. A central entrance hall with st...
- Bedrooms
- 2
- Bathrooms
- 1
The heatmap indicates the level of crime in the area. The color of the heatmap indicates the crime severity and recency.
Metrics Year-on-Year
- Average area value
- 595,000.00 £Decreased by 35.22 %
- Average area rental value
- 3,620.00 £/moIncreased by 38.49 %
- Est rental Yield
- 7.30 %Increased by 113.45 %
- Crime Rate
- 21.00 %Unchanged by 0.00 %
from 918,499.00 £
from 2,614.00 £/mo
from 3.42 %
from 21.00 %
Agent Activity
Anchor Trust created the listing.
Nearby Schools
| Name | Type | Ofsted | Distance |
|---|---|---|---|
| Denham Green E-Act Primary Academy | Academy Sponsor Led | Good | 0.53 KM |
| Denham Village School | Community School | Good | 1.90 KM |
| Harefield Infant School | Community School | Good | 2.74 KM |
| Harefield Children'S Centre | Children's Centre | 2.77 KM | |
| Harefield Junior School | Community School | Requires improvement | 2.81 KM |
Images
Nearby Streets
| Name | Average Price | Average Sqft | Distance |
|---|---|---|---|
| Chairman's Walk | £ 525,000 | 0 | 0.00 KM |
| Queen Mother's Drive | £ 0 | 0 | 0.00 KM |
| Stewart Court | £ 0 | 0 | 0.00 KM |
| St Mary's Close | £ 0 | 0 | 0.00 KM |
| Priory Avenue | £ 0 | 0 | 0.00 KM |
Nearby Transport
| Name | NLC | TLC | Distance |
|---|---|---|---|
| Denham | 3052 | DNM | 0.81 KM |
| Denham Golf Club | 3060 | DGC | 1.96 KM |
| Gerrards Cross | 3051 | GER | 6.04 KM |
| Rickmansworth | 687 | RIC | 6.83 KM |
| West Ruislip | 3059 | WRU | 7.17 KM |
Nearby Listings
| Address | Price | Type | Score | Distance |
|---|---|---|---|---|
| Patrons Way East, Denham Garden Village | £ 450,000 | BUY | Unknown | 0.03 KM |
| Patrons Way East, Denham Garden Village, Buckinghamshire, UB9 | £ 415,000 | BUY | 6 / 10 | 0.04 KM |
| Patrons Way East, Denham Garden Village, Uxbridge | £ 465,000 | BUY | 6 / 10 | 0.04 KM |
| Olivier Court, Patrons Way East, Denham Garden Village | £ 419,000 | BUY | 7 / 10 | 0.06 KM |
| Patrons Way East, Denham Garden Village, UB9 | £ 399,950 | BUY | Unknown | 0.07 KM |
Nearby Properties
| Address | Price | Distance |
|---|---|---|
| 31 Sheepcote Gardens | £ 275,000 | 0.14 KM |
| 3 Sheepcote Gardens | £ 286,000 | 0.14 KM |
| 1 Sheepcote Gardens | £ 257,000 | 0.14 KM |
| 10 Sheepcote Gardens | £ 588,000 | 0.14 KM |
| 21 Sheepcote Gardens | £ 315,000 | 0.14 KM |