James Sleeman Close, Great Oldbury, Stonehouse
By Naylor Powell
£ 460,000
Reviews
3 out of 5 stars
Naylor Powell says ..
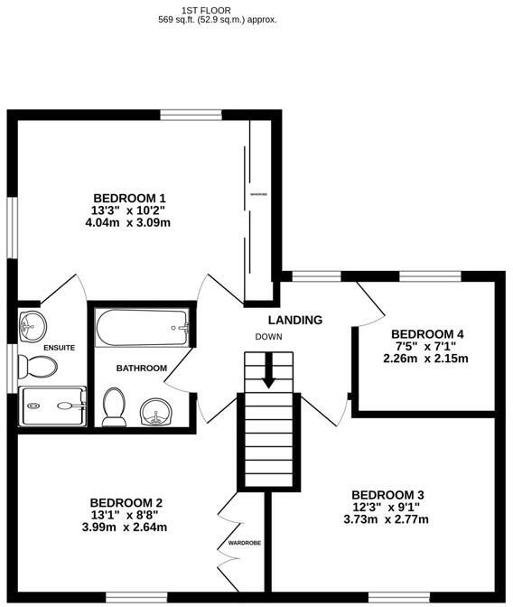
Well-presented, detached family home benefitting from a converted studio space in the garage and four sizeable bedrooms. The property is tastefully decorated and offers generous accommodation throughout. On the ground floor is a modern living room with media wall, dining room/study and fitted kit...
Property Oracle says ..
This is a well-presented, modern detached property located in a family-friendly area of Stonehouse. The house benefits from a modern interior, a well-maintained garden, and proximity to local schools and amenities. The listing price is in line with the average property price for the area. The property offers four bedrooms and two bathrooms, making it suitable for families. The images suggest that the property is in excellent condition and ready for immediate occupancy. The nearby train station provides convenient access to other towns and cities.
Therefore, we give this property 7 / 10. *Disclaimer: This is our option and does constitute a recommendation or financial advice. Do your own research. *
- Price
- 7
- Condition
- 9
- Location
- 7
- Land
- 7
- Bedrooms
- 4
- Bathrooms
- 2
The heatmap indicates the level of crime in the area. The color of the heatmap indicates the crime severity and recency.
Metrics Year-on-Year
- Average area value
- 468,189.00 £Increased by 38.49 %
- Average area rental value
- 2,227.00 £/moIncreased by 30.77 %
- Est rental Yield
- 5.71 %Decreased by 5.46 %
- Crime Rate
- 57.00 %Unchanged by 0.00 %
Agent Activity
Naylor Powell created the listing.
Nearby Schools
| Name | Type | Ofsted | Distance |
|---|---|---|---|
| Great Oldbury Primary Academy | Free Schools | 1.05 KM | |
| William Morris College | Special Post 16 Institution | Good | 1.09 KM |
| Eastington Primary School | Community School | Outstanding | 1.19 KM |
| Stonehouse The Park Children'S Centre | Children's Centre | 2.68 KM | |
| Park Junior School | Community School | Requires improvement | 2.70 KM |
Images
Nearby Streets
| Name | Average Price | Average Sqft | Distance |
|---|---|---|---|
| Nupend Lane | £ 462,190 | 0 | 0.00 KM |
| William Drew Close | £ 295,000 | 0 | 0.00 KM |
| Artemus Silvey Close | £ 330,000 | 0 | 0.00 KM |
| Ernest Creed Close | £ 0 | 0 | 0.00 KM |
| Mangotstone Way | £ 0 | 0 | 0.00 KM |
Nearby Transport
| Name | NLC | TLC | Distance |
|---|---|---|---|
| Stonehouse | 4770 | SHU | 3.49 KM |
| Cam And Dursley | 3238 | CDU | 7.16 KM |
| Stroud (Gloucs) | 4771 | STD | 9.98 KM |
Nearby Listings
| Address | Price | Type | Score | Distance |
|---|---|---|---|---|
| James Sleeman Close, Great Oldbury, Stonehouse | £ 460,000 | BUY | 7 / 10 | 0.00 KM |
| James Sleeman Close, Great Oldbury, Stonehouse | £ 332,000 | BUY | 8 / 10 | 0.03 KM |
| James Sleeman Close, Stonehouse | £ 490,000 | BUY | 7 / 10 | 0.03 KM |
| James Sleeman Close, Great Oldbury, Stonehouse, Gloucestershire, GL10 | £ 485,000 | BUY | 7 / 10 | 0.03 KM |
| James Sleeman Close, Great Oldbury, Stonehouse | £ 325,000 | BUY | 7 / 10 | 0.03 KM |
Nearby Properties
| Address | Price | Distance |
|---|---|---|
| 2 The Green | £ 325,000 | 0.61 KM |
| 3 Westend Cottages | £ 240,000 | 0.64 KM |
| 2 Westend Cottages | £ 202,000 | 0.64 KM |
| 1 Westend Cottages | £ 265,000 | 0.64 KM |
| 3 Chipmans Platt | £ 178,000 | 0.93 KM |