Hortons says ..
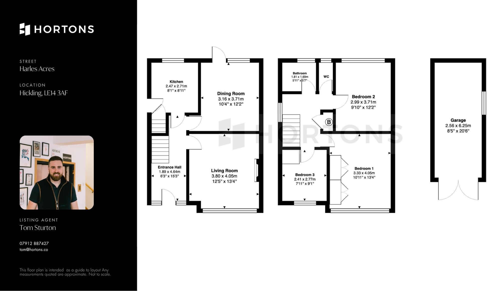
Beautifully Modernised Three-Bedroom Detached Home in a Peaceful Village Setting
Property Oracle says ..
Therefore, we give this property 7 / 10. *Disclaimer: This is our option and does constitute a recommendation or financial advice. Do your own research. *
- Price
- 8
- Condition
- 8
- Location
- 7
- Land
- 8
- Bedrooms
- 3
- Bathrooms
- 1
- Sqft (est)
- 999.86
The heatmap indicates the level of crime in the area. The color of the heatmap indicates the crime severity and recency.
Metrics Year-on-Year
- Average area value
- 307,772.00 £Increased by 19.74 %
- Est sale value
- 522,926.78 £Increased by 90.88 %
- Average area rental value
- 871.00 £/moDecreased by 8.32 %
- Est letting value
- 999.86 £/moUnchanged by 0.00 %
- Est rental Yield
- 3.40 %Decreased by 23.42 %
- Crime Rate
- 158.00 %Unchanged by 0.00 %
from 257,040.00 £
from 273,961.64 £
from 950.00 £/mo
from 999.86 £/mo
from 4.44 %
from 158.00 %
Agent Activity
Hortons created the listing.
Nearby Schools
| Name | Type | Ofsted | Distance |
|---|---|---|---|
| Kinoulton Primary School | Community School | Good | 3.85 KM |
| Colston Bassett School Limited | Other Independent School | Good | 4.49 KM |
| Long Clawson Church Of England Primary School | Voluntary Controlled School | Good | 5.37 KM |
| Old Dalby Church Of England Primary School | Academy Converter | Good | 5.62 KM |
| Cropwell Bishop Primary School | Academy Converter | 7.08 KM |
Images
Nearby Streets
| Name | Average Price | Average Sqft | Distance |
|---|---|---|---|
| The Green | £ 0 | 0 | 0.00 KM |
Nearby Listings
| Address | Price | Type | Score | Distance |
|---|---|---|---|---|
| Harles Acres, Hickling, LE14 | £ 360,000 | BUY | 7 / 10 | 0.00 KM |
| Introducing Manor Cottage, Hickling, LE14 3AE | £ 525,000 | BUY | 7 / 10 | 0.15 KM |
| Clawson Lane, Hickling, Melton Mowbray, Leicestershire, LE14 3AB | £ 400,000 | BUY | 7 / 10 | 0.28 KM |
| Main Street, Hickling, LE14 | £ 700,000 | BUY | 8 / 10 | 0.31 KM |
| Main Street, Hickling, MELTON MOWBRAY | £ 425,000 | BUY | 6 / 10 | 0.37 KM |
Nearby Properties
| Address | Price | Distance |
|---|---|---|
| 1 Harles Acres | £ 229,950 | 0.09 KM |
| 12 Harles Acres | £ 274,000 | 0.09 KM |
| 24 Harles Acres | £ 241,000 | 0.09 KM |
| 19 Harles Acres | £ 198,000 | 0.09 KM |
| 21 Harles Acres | £ 295,000 | 0.09 KM |