FO
Franchi Drive, Stenhousemuir, FK5 4DX
By Forth Valley Homes
£ 258,995
Reviews
3 out of 5 stars
Forth Valley Homes says ..
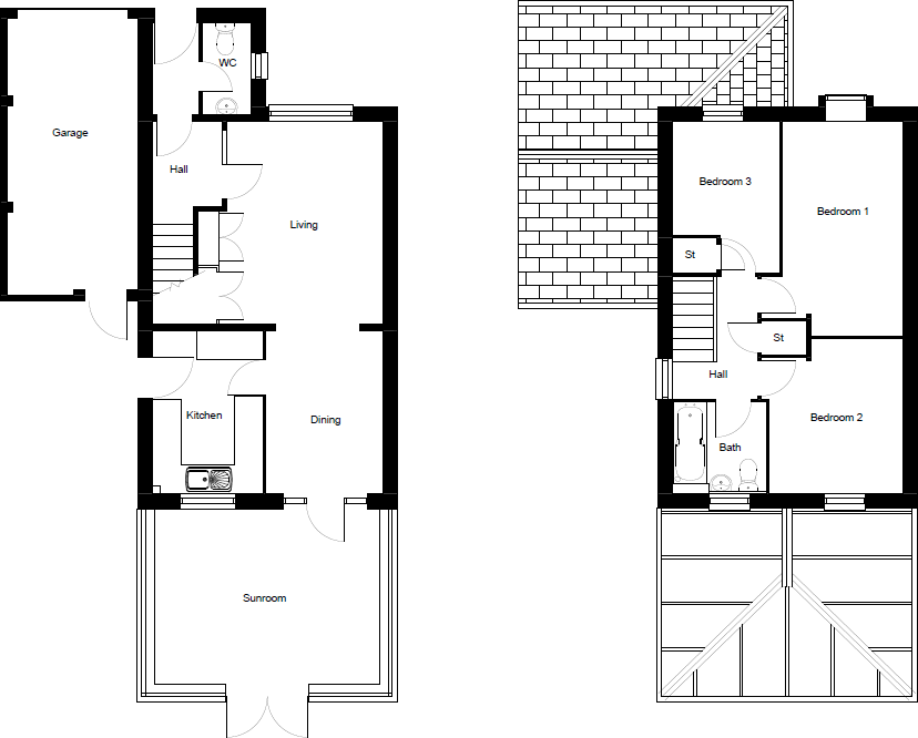
Forth Valley Homes are delighted to introduce to the market 37 Franchi Drive, Stenhousemuir This well-presented 3-bedroom semi-detached home is situated at the head of a quiet cul-de-sac in...
Property Oracle says ..
Therefore, we give this property 7 / 10. *Disclaimer: This is our option and does constitute a recommendation or financial advice. Do your own research. *
- Price
- 8
- Condition
- 8
- Location
- 7
- Land
- 7
- Bedrooms
- 3
- Bathrooms
- 2
The heatmap indicates the level of crime in the area. The color of the heatmap indicates the crime severity and recency.
Metrics Year-on-Year
- Average area value
- 490,000.00 £Decreased by 5.86 %
- Average area rental value
- 1,975.00 £/moIncreased by 83.72 %
- Est rental Yield
- 4.84 %Increased by 95.16 %
- Crime Rate
- 0.00 %
from 520,498.00 £
from 1,075.00 £/mo
from 2.48 %
from 0.00 %
Agent Activity
Forth Valley Homes created the listing.
Nearby Schools
| Name | Type | Ofsted | Distance |
|---|---|---|---|
| Oakwood School | Offshore Schools | 6.40 KM |
Images
Nearby Streets
| Name | Average Price | Average Sqft | Distance |
|---|---|---|---|
| Finlarig Court | £ 0 | 0 | 0.00 KM |
| Skelmorlie Place | £ 0 | 0 | 0.00 KM |
| Dunbar Avenue | £ 0 | 0 | 0.00 KM |
| Hunter Place | £ 0 | 0 | 0.00 KM |
| Redpath Drive | £ 195,000 | 0 | 0.00 KM |
Nearby Transport
| Name | NLC | TLC | Distance |
|---|---|---|---|
| Larbert | 9876 | LBT | 3.40 KM |
| Camelon | 9878 | CMO | 3.73 KM |
| Falkirk Grahamston | 9930 | FKG | 4.25 KM |
| Falkirk High | 9931 | FKK | 5.10 KM |
| Alloa | 9883 | ALO | 9.15 KM |
Nearby Listings
| Address | Price | Type | Score | Distance |
|---|---|---|---|---|
| Franchi Drive, Stenhousemuir, FK5 4DX | £ 258,995 | BUY | 7 / 10 | 0.00 KM |
| Franchi Drive, Stenhousemuir | £ 119,995 | BUY | 6 / 10 | 0.04 KM |
| 76 Franchi Drive, Stenhousemuir, Larbert, Stirlingshire, FK5 4DY | £ 59,995 | BUY | 6 / 10 | 0.04 KM |
| Franchi Drive, Stenhousemuir, FK5 4DX | £ 258,995 | BUY | 7 / 10 | 0.20 KM |
| Finlarig Court,Stenhousemuir,Larbert,FK5 4UL | £ 225,000 | BUY | 7 / 10 | 0.25 KM |