Brackley Street, Stockton Heath, Warrington
By Gascoigne Halman
£ 375,000
Reviews
3 out of 5 stars
Gascoigne Halman says ..
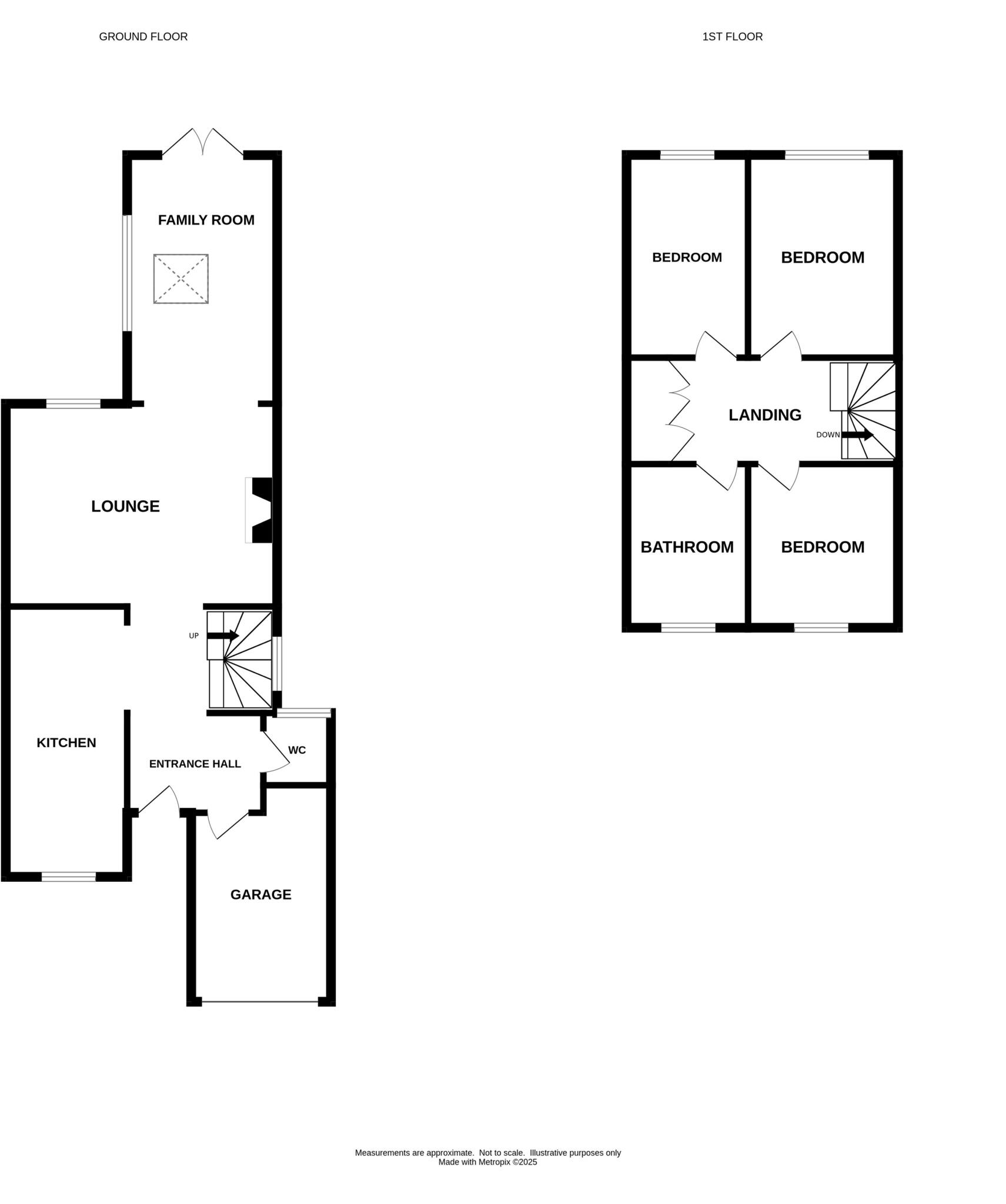
A three bedroom semi detached property situated in a prime position a stone's throw from Stockton Heath village. With open plan and extended accommodation, the property also benefits from driveway parking and a garage. Sold with no onward chain.
Property Oracle says ..
This three-bedroom terraced house on Brackley Street, Stockton Heath, Warrington, is presented in good condition, offering a blend of modern updates and a desirable location. The property’s strong points include its proximity to excellent schools like Stockton Heath Primary School and convenient access to Warrington’s town centre via nearby train stations. The internal photographs showcase a recently updated kitchen and bathroom, adding to its appeal. The open-plan living area is spacious and benefits from natural light. The rear garden, although relatively small and paved, provides a private outdoor space. The price point reflects the desirability of Stockton Heath, but prospective buyers may wish to compare this property’s price per square foot to other similar properties in the immediate vicinity with similar features before making an offer. The absence of exact square footage for comparable properties in the area makes a precise analysis of price per square foot challenging and necessitates a thorough market comparison exercise.
Therefore, we give this property 6 / 10. *Disclaimer: This is our option and does constitute a recommendation or financial advice. Do your own research. *
- Price
- 7
- Condition
- 7
- Location
- 8
- Land
- 4
- Bedrooms
- 3
- Bathrooms
- 1
- Sqft (est)
- 1,000.00
The heatmap indicates the level of crime in the area. The color of the heatmap indicates the crime severity and recency.
Metrics Year-on-Year
- Average area value
- 393,000.00 £Decreased by 15.72 %
- Est sale value
- 451,000.00 £Increased by 37.92 %
- Average area rental value
- 1,388.00 £/moIncreased by 10.60 %
- Est letting value
- 1,000.00 £/mo
- Est rental Yield
- 4.24 %Increased by 31.27 %
- Crime Rate
- 4.00 %Unchanged by 0.00 %
Agent Activity
Gascoigne Halman created the listing.
Nearby Schools
| Name | Type | Ofsted | Distance |
|---|---|---|---|
| Stockton Heath Primary School | Community School | Good | 0.13 KM |
| Priestley College | Academy 16-19 Converter | Good | 0.99 KM |
| St Thomas' Cofe Primary School | Voluntary Aided School | Good | 1.13 KM |
| Bridgewater High School | Academy Converter | 1.48 KM | |
| Latchford St James Cofe Primary School | Voluntary Aided School | Good | 1.54 KM |
Images
Nearby Streets
| Name | Average Price | Average Sqft | Distance |
|---|---|---|---|
| Roman Road | £ 276,250 | 0 | 0.00 KM |
| Algernon Street | £ 595,000 | 0 | 0.00 KM |
| Francis Road | £ 700,000 | 0 | 0.00 KM |
| Greenall's Avenue | £ 285,000 | 0 | 0.00 KM |
| Carlton Street | £ 302,500 | 0 | 0.00 KM |
Nearby Transport
| Name | NLC | TLC | Distance |
|---|---|---|---|
| Warrington Central | 2390 | WAC | 2.48 KM |
| Warrington Bank Quay | 2384 | WBQ | 2.50 KM |
| Padgate | 2387 | PDG | 5.04 KM |
| Warrington West | 6583 | WAW | 6.34 KM |
| Sankey For Penketh | 2388 | SNK | 7.55 KM |
Nearby Listings
| Address | Price | Type | Score | Distance |
|---|---|---|---|---|
| Brackley Street, Stockton Heath, Warrington | £ 375,000 | BUY | 6 / 10 | 0.00 KM |
| Brackley Street, Stockton Heath, Warrington | £ 290,000 | BUY | Unknown | 0.07 KM |
| Brackley Street, Stockton Heath, Warrington | £ 290,000 | BUY | 7 / 10 | 0.07 KM |
| Brackley Street, Stockton Heath, Warrington | £ 285,000 | BUY | 6 / 10 | 0.08 KM |
| Roman Road, Stockton Heath, Warrington, WA4 6DX | £ 279,950 | BUY | 7 / 10 | 0.10 KM |
Nearby Properties
| Address | Price | Distance |
|---|---|---|
| 23 Brackley Street | £ 292,000 | 0.07 KM |
| 1 Brackley Street | £ 274,000 | 0.07 KM |
| 28 Brackley Street | £ 215,000 | 0.07 KM |
| 20 Brackley Street | £ 292,500 | 0.07 KM |
| 26 Brackley Street | £ 222,500 | 0.07 KM |