Foxtons says ..
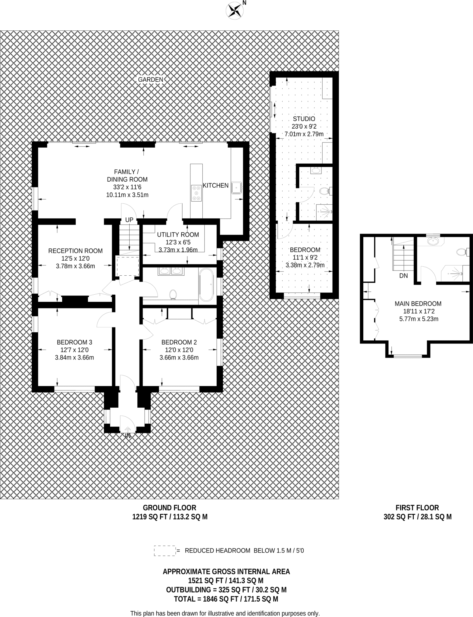
A stunning detached 4 bedroom chalet bungalow, refurbished throughout and featuring a superb Kitchen/ dining/ reception room with double bi- folding doors to a large private garden with a one bedroom studio.
Property Oracle says ..
Therefore, we give this property 7 / 10. *Disclaimer: This is our option and does constitute a recommendation or financial advice. Do your own research. *
- Price
- 6
- Condition
- 9
- Location
- 8
- Land
- 7
- Bedrooms
- 4
- Bathrooms
- 3
- Sqft (est)
- 1,546.88
The heatmap indicates the level of crime in the area. The color of the heatmap indicates the crime severity and recency.
Metrics Year-on-Year
- Average area value
- 1,790,000.00 £Increased by 94.05 %
- Est sale value
- 564,611.20 £Increased by 26.30 %
- Average area rental value
- 2,186.00 £/moDecreased by 33.31 %
- Est letting value
- 0.00 £/moDecreased by 100.00 %
- Est rental Yield
- 1.47 %Decreased by 65.49 %
- Crime Rate
- 12.00 %Unchanged by 0.00 %
from 922,448.00 £
from 447,048.32 £
from 3,278.00 £/mo
from 1,546.88 £/mo
from 4.26 %
from 12.00 %
Agent Activity
Foxtons created the listing.
Nearby Schools
| Name | Type | Ofsted | Distance |
|---|---|---|---|
| Freemantles School | Community Special School | Outstanding | 1.09 KM |
| Hoe Valley School | Free Schools | Outstanding | 1.40 KM |
| Barnsbury Primary School And Nursery | Academy Converter | Good | 2.04 KM |
| Westfield Primary School | Academy Converter | 2.12 KM | |
| Goldsworth Primary School | Academy Converter | 2.51 KM |
Images
Nearby Streets
| Name | Average Price | Average Sqft | Distance |
|---|---|---|---|
| Goose Lane | £ 650,000 | 0 | 0.00 KM |
| Chiltern Close | £ 0 | 0 | 0.00 KM |
| Hurst Close | £ 1,100,000 | 0 | 0.00 KM |
| Swift Close | £ 0 | 0 | 0.00 KM |
| Robin Lane | £ 0 | 0 | 0.00 KM |
Nearby Transport
| Name | NLC | TLC | Distance |
|---|---|---|---|
| Worplesdon | 5686 | WPL | 0.85 KM |
| Woking | 5685 | WOK | 4.00 KM |
| Brookwood | 5687 | BKO | 5.63 KM |
| London Road (Guildford) | 5632 | LRD | 6.57 KM |
| Guildford | 5631 | GLD | 6.61 KM |
Nearby Listings
| Address | Price | Type | Score | Distance |
|---|---|---|---|---|
| Goose Lane, Woking, GU22 | £ 1,300,000 | BUY | 7 / 10 | 0.00 KM |
| Goose Lane, Woking, Surrey, GU22 | £ 1,300,000 | BUY | 7 / 10 | 0.03 KM |
| Saunders Copse, Woking, Surrey, GU22 | £ 700,000 | BUY | 7 / 10 | 0.09 KM |
| Saunders Copse, Woking, Surrey, GU22 | £ 750,000 | BUY | Unknown | 0.16 KM |
| Saunders Copse, Woking, GU22 | £ 800,000 | BUY | 7 / 10 | 0.17 KM |
Nearby Properties
| Address | Price | Distance |
|---|---|---|
| 32 Saunders Copse | £ 410,000 | 0.19 KM |
| 37 Saunders Copse | £ 602,000 | 0.19 KM |
| 30 Saunders Copse | £ 555,000 | 0.19 KM |
| 1 Saunders Copse | £ 735,000 | 0.19 KM |
| 22 Saunders Copse | £ 499,950 | 0.19 KM |