Yopa says ..
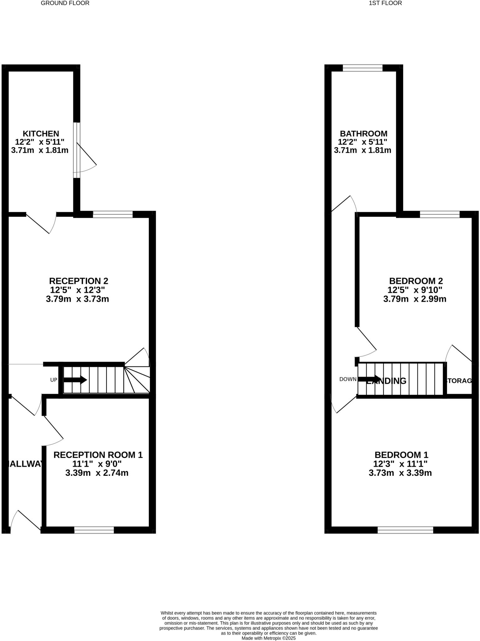
AN IDEAL FIRST TIME BUY OFFERED WITH NO CHAIN and tucked away in a quiet street within easy walking distance to all of Heanor's amenities including shops and bus routes and close to good road networks. Having two reception rooms, kitchen, two double bedrooms, upstairs bathroom and flat rear garden.
Property Oracle says ..
The property is a two-bedroom terraced house located in Heanor, Derbyshire. Based on the provided images, the property appears to be in reasonable condition, though some minor cosmetic improvements could enhance its appeal. The kitchen and bathroom seem relatively modern, while the bedrooms show signs of current occupancy. The property benefits from a rear garden, although it appears to require some maintenance. The list price of £130,000 is within the range of comparable properties in the area, although the lack of square footage data for nearby properties makes a precise comparison challenging. The proximity to schools and transportation links is a positive attribute.
Therefore, we give this property 6 / 10. *Disclaimer: This is our option and does constitute a recommendation or financial advice. Do your own research. *
- Price
- 7
- Condition
- 7
- Location
- 7
- Land
- 6
- Bedrooms
- 2
- Bathrooms
- 1
- Sqft (est)
- 633.00
The heatmap indicates the level of crime in the area. The color of the heatmap indicates the crime severity and recency.
Metrics Year-on-Year
- Average area value
- 178,750.00 £Decreased by 27.19 %
- Est sale value
- 149,388.00 £Increased by 5.36 %
- Average area rental value
- 583.00 £/moDecreased by 41.05 %
- Est letting value
- 0.00 £/mo
- Est rental Yield
- 3.91 %Decreased by 19.05 %
- Crime Rate
- 17.00 %Unchanged by 0.00 %
Agent Activity
Yopa created the listing.
Nearby Schools
| Name | Type | Ofsted | Distance |
|---|---|---|---|
| Howitt Primary Community School | Academy Converter | 0.45 KM | |
| Corfield Cofe Infant School | Voluntary Controlled School | Good | 0.78 KM |
| Jasmine House School | Other Independent Special School | Outstanding | 1.19 KM |
| Mundy Cofe Junior School | Voluntary Controlled School | Good | 1.36 KM |
| Coppice Primary School | Community School | Good | 1.42 KM |
Images
Nearby Streets
| Name | Average Price | Average Sqft | Distance |
|---|---|---|---|
| John Street | £ 192,498 | 0 | 0.00 KM |
| A608 | £ 0 | 0 | 0.00 KM |
| Derby Road | £ 0 | 0 | 0.00 KM |
| Red Lion Square | £ 0 | 0 | 0.00 KM |
| Spring Lane | £ 0 | 0 | 0.00 KM |
Nearby Transport
| Name | NLC | TLC | Distance |
|---|---|---|---|
| Langley Mill | 1761 | LGM | 3.22 KM |
| Ilkeston | 7783 | ILN | 8.43 KM |
| Alfreton | 1805 | ALF | 9.19 KM |
Nearby Listings
| Address | Price | Type | Score | Distance |
|---|---|---|---|---|
| Cherry Blossom House, Burns Street, Heanor | £ 244,950 | BUY | 7 / 10 | 0.00 KM |
| Burns Street, Heanor, DE75 | £ 130,000 | BUY | 6 / 10 | 0.00 KM |
| Cherry Blossom House , Burns Street | £ 249,950 | BUY | 6 / 10 | 0.01 KM |
| Carlyle Street, Heanor | £ 244,995 | BUY | 7 / 10 | 0.08 KM |
| Carlyle Street, Heanor, DE75 | £ 225,000 | BUY | 5 / 10 | 0.08 KM |
Nearby Properties
| Address | Price | Distance |
|---|---|---|
| 1 Burns Street | £ 19,000 | 0.01 KM |
| 14 Burns Street | £ 115,000 | 0.01 KM |
| 30 Burns Street | £ 84,000 | 0.01 KM |
| 26 Burns Street | £ 111,000 | 0.01 KM |
| 24 Burns Street | £ 83,950 | 0.01 KM |