David Andrew says ..
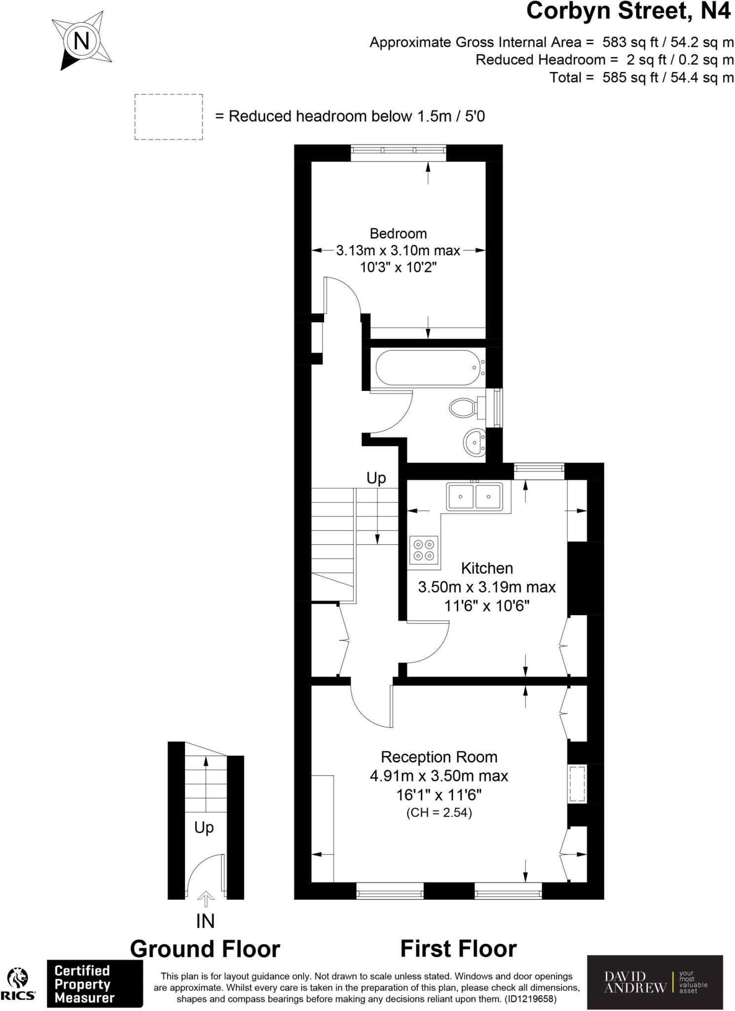
Welcome to this beautifully arranged one-bedroom period conversion, enviably positioned on the sought-after Corbyn Street in N4.
Property Oracle says ..
Therefore, we give this property 5 / 10. *Disclaimer: This is our option and does constitute a recommendation or financial advice. Do your own research. *
- Price
- 7
- Condition
- 6
- Location
- 8
- Land
- 1
- Bedrooms
- 1
- Bathrooms
- 1
- Sqft (est)
- 409.60
The heatmap indicates the level of crime in the area. The color of the heatmap indicates the crime severity and recency.
Metrics Year-on-Year
- Average area value
- 770,833.00 £Increased by 10.52 %
- Est sale value
- 464,076.80 £Increased by 19.14 %
- Average area rental value
- 2,248.00 £/moDecreased by 5.39 %
- Est letting value
- 1,228.80 £/moUnchanged by 0.00 %
- Est rental Yield
- 3.50 %Decreased by 14.43 %
- Crime Rate
- 2.00 %Unchanged by 0.00 %
from 697,483.00 £
from 389,529.60 £
from 2,376.00 £/mo
from 1,228.80 £/mo
from 4.09 %
from 2.00 %
Agent Activity
David Andrew created the listing.
Nearby Schools
| Name | Type | Ofsted | Distance |
|---|---|---|---|
| St Mark'S Cofe Primary School | Voluntary Aided School | Good | 0.35 KM |
| Arts And Media School Islington | Foundation School | Good | 0.43 KM |
| Duncombe Primary School | Community School | Good | 0.43 KM |
| Christ The King Catholic Primary School | Voluntary Aided School | Good | 0.53 KM |
| North Islington Nursery School And Children'S Centre | Children's Centre | 0.67 KM |
Images
Nearby Streets
| Name | Average Price | Average Sqft | Distance |
|---|---|---|---|
| Tollington Mews | £ 0 | 0 | 0.00 KM |
| Porter Square | £ 0 | 0 | 0.00 KM |
| Nightingale Court | £ 415,000 | 0 | 0.00 KM |
| Pine Grove | £ 450,000 | 0 | 0.00 KM |
| Shaftesbury Road | £ 730,000 | 0 | 0.00 KM |
Nearby Transport
| Name | NLC | TLC | Distance |
|---|---|---|---|
| Crouch Hill | 7406 | CRH | 0.53 KM |
| Upper Holloway | 1524 | UHL | 1.15 KM |
| Finsbury Park | 6119 | FPK | 1.52 KM |
| Harringay | 6012 | HGY | 1.97 KM |
| Drayton Park | 6000 | DYP | 2.25 KM |
Nearby Listings
| Address | Price | Type | Score | Distance |
|---|---|---|---|---|
| Corbyn Street, London, N4 | £ 425,000 | BUY | 5 / 10 | 0.00 KM |
| Thorpedale Road, London, N4 | £ 400,000 | BUY | 6 / 10 | 0.07 KM |
| Hanley Road, Upper Holloway, N4 | £ 950,000 | BUY | Unknown | 0.07 KM |
| Thorpedale Road, London, N4 | £ 1,000,000 | BUY | 6 / 10 | 0.08 KM |
| Hanley Road, London | £ 575,000 | BUY | Unknown | 0.09 KM |
Nearby Properties
| Address | Price | Distance |
|---|---|---|
| 85a Corbyn Street | £ 217,000 | 0.01 KM |
| 9 Corbyn Street | £ 480,000 | 0.01 KM |
| 15 Corbyn Street | £ 942,000 | 0.01 KM |
| 49 Corbyn Street | £ 900,000 | 0.01 KM |
| 59a Corbyn Street | £ 280,000 | 0.01 KM |