Cotman End, Pirton, Hitchin, Hertfordshire, SG5
By Putterills
£ 1,350,000
Reviews
3 out of 5 stars
Putterills says ..
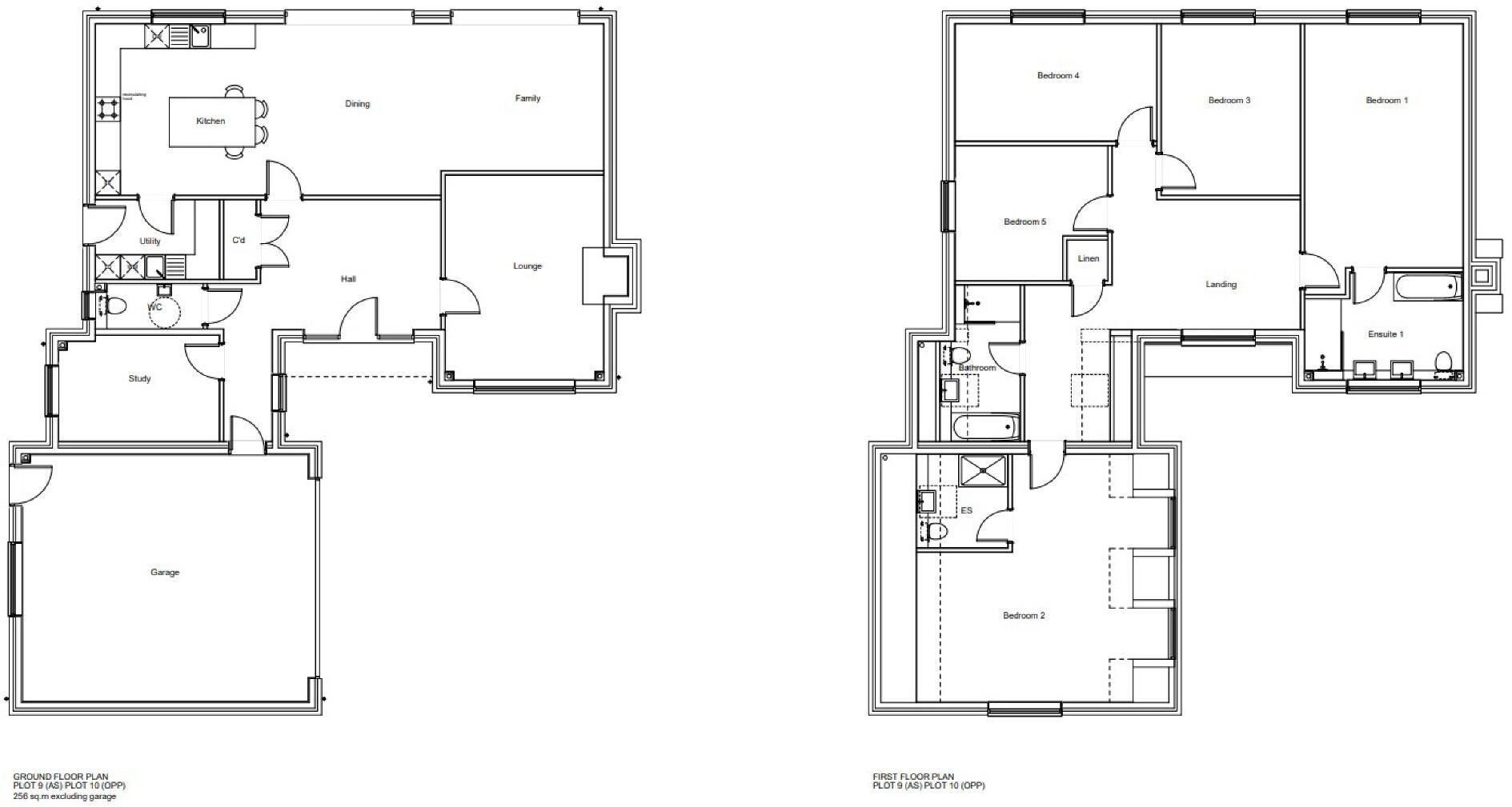
SOLD BY PUTTERILLS NEW HOMES! - Plot 9 is a stunning five bedroom detached home with integral double garage. The luxurious accommodation of over 2700 sq ft comprises a large entrance hall, spacious kitchen/dining/family room, perfect for entertaining, with bifold doors opening onto the rear gar...
Property Oracle says ..
This property is a new, five-bedroom detached house located in the village of Pirton, Hertfordshire. The images depict a modern and well-finished home with a spacious layout, featuring a large kitchen/dining/family area, multiple bathrooms and what appears to be a double garage. The village of Pirton benefits from a good primary school and is within a reasonable commuting distance to Hitchin railway station offering connections to London and other parts of the country. The property presents itself as a high-quality new build with a modern design and luxurious interior finishes. However, more detailed information regarding plot size and precise comparable sales data would be beneficial for a complete market value analysis. The absence of this data leaves a minor degree of uncertainty when determining whether the listing price represents exceptional value. The property is likely to appeal to families seeking a spacious and well-equipped home in a desirable village setting with good access to schooling and transport links.
Therefore, we give this property 6 / 10. *Disclaimer: This is our option and does constitute a recommendation or financial advice. Do your own research. *
- Price
- 7
- Condition
- 9
- Location
- 7
- Land
- 3
- Bedrooms
- 5
- Bathrooms
- 3
- Sqft (est)
- 2,755.56
The heatmap indicates the level of crime in the area. The color of the heatmap indicates the crime severity and recency.
Metrics Year-on-Year
- Average area value
- 595,000.00 £Decreased by 17.33 %
- Est sale value
- 1,457,691.24 £Increased by 8.40 %
- Average area rental value
- 2,575.00 £/moIncreased by 93.17 %
- Est letting value
- 5,511.12 £/mo
- Est rental Yield
- 5.19 %Increased by 133.78 %
- Crime Rate
- 22.00 %Unchanged by 0.00 %
Agent Activity
Putterills marked this listing as sold.
Putterills created the listing.
Nearby Schools
| Name | Type | Ofsted | Distance |
|---|---|---|---|
| Pirton School | Community School | Good | 0.58 KM |
| Stondon Lower School | Community School | Good | 3.56 KM |
| Oughton Primary And Nursery School | Community School | Good | 4.47 KM |
| Nh6 Oughton Family Centre | Children's Centre | 4.47 KM | |
| Offley Endowed Primary School And Nursery | Voluntary Aided School | Good | 4.55 KM |
Images
Nearby Streets
| Name | Average Price | Average Sqft | Distance |
|---|---|---|---|
| Crabtree Lane | £ 0 | 0 | 0.00 KM |
| Drovers Way | £ 875,000 | 0 | 0.00 KM |
| Prior's Hill | £ 0 | 0 | 0.00 KM |
Nearby Transport
| Name | NLC | TLC | Distance |
|---|---|---|---|
| Hitchin | 6086 | HIT | 7.49 KM |
| Arlesey | 6171 | ARL | 9.25 KM |
Nearby Listings
| Address | Price | Type | Score | Distance |
|---|---|---|---|---|
| Cotman End, Pirton, Hitchin, Hertfordshire, SG5 | £ 1,350,000 | BUY | 6 / 10 | 0.00 KM |
| Maltings Orchard, Pirton, Hitchin, Hertfordshire, SG5 | £ 1,125,000 | BUY | 7 / 10 | 0.01 KM |
| Walnut Tree Road, Pirton, Hitchin, Hertfordshire, SG5 | £ 2,000,000 | BUY | 7 / 10 | 0.01 KM |
| Walnut Tree Road, Pirton, Hitchin, Hertfordshire, SG5 | £ 2,000,000 | BUY | 8 / 10 | 0.01 KM |
| Walnut Tree Road, Pirton, SG5 | £ 925,000 | BUY | Unknown | 0.02 KM |
Nearby Properties
| Address | Price | Distance |
|---|---|---|
| 19 Walnut Tree Road | £ 905,500 | 0.01 KM |
| 9 Walnut Tree Road | £ 240,000 | 0.01 KM |
| 3 Walnut Tree Road | £ 300,000 | 0.02 KM |
| 4 Walnut Tree Road | £ 745,000 | 0.02 KM |
| 7 Hambridge Way | £ 860,000 | 0.10 KM |