Mattock Lane, Ealing, London, W5
By Leslie & Co
£ 675,000
Reviews
3 out of 5 stars
Leslie & Co says ..
The best of both worlds! Nestled in one of the most sought-after locations in Ealing, this home is just a stone’s throw from the stunning Walpole Park and Ealing Broadway.
Property Oracle says ..
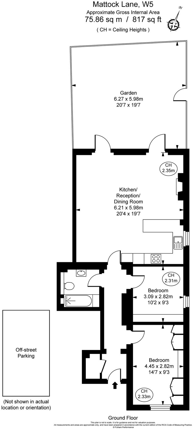
This ground floor flat is located on Mattock Lane in Ealing, West London. The property boasts two bedrooms and one bathroom, spanning 816.55 square feet. Images reveal a modern interior with a recently renovated kitchen and bathroom. There is also a private garden, a desirable feature in London. The location is convenient, with Ealing Broadway station within walking distance, providing excellent transport links. Several schools are nearby, including Clifton Lodge School just a short distance away. However, the plot size is quite small, which is typical for properties in this area. The list price of £675,000 is slightly below the average price of £736,069 for the area, and the price per square foot is also lower than the average. Considering the modern condition, convenient location, and private garden, the price appears reasonable.
Therefore, we give this property 7 / 10. *Disclaimer: This is our option and does constitute a recommendation or financial advice. Do your own research. *
- Price
- 8
- Condition
- 9
- Location
- 8
- Land
- 6
- Bedrooms
- 2
- Bathrooms
- 1
- Sqft (est)
- 816.55
The heatmap indicates the level of crime in the area. The color of the heatmap indicates the crime severity and recency.
Metrics Year-on-Year
- Average area value
- 811,000.00 £Increased by 5.83 %
- Est sale value
- 413,174.30 £Decreased by 24.59 %
- Average area rental value
- 2,084.00 £/moDecreased by 2.53 %
- Est letting value
- 816.55 £/moUnchanged by 0.00 %
- Est rental Yield
- 3.08 %Decreased by 8.06 %
- Crime Rate
- 11.00 %Unchanged by 0.00 %
Agent Activity
Leslie & Co created the listing.
Nearby Schools
| Name | Type | Ofsted | Distance |
|---|---|---|---|
| Clifton Lodge School | Other Independent School | 0.03 KM | |
| Ealing Independent College | Other Independent School | 0.06 KM | |
| Christ The Saviour Church Of England Primary School | Voluntary Aided School | Outstanding | 0.43 KM |
| Harvington Prep School | Other Independent School | 0.59 KM | |
| Durston House School | Other Independent School | 0.62 KM |
Images
Nearby Streets
| Name | Average Price | Average Sqft | Distance |
|---|---|---|---|
| Victoria Lane | £ 0 | 0 | 0.00 KM |
| Vernon Court Private Parking | £ 183,500 | 0 | 0.00 KM |
| High Street | £ 0 | 0 | 0.00 KM |
| Longfield Walk | £ 575,000 | 0 | 0.00 KM |
| Springbridge Road | £ 0 | 0 | 0.00 KM |
Nearby Transport
| Name | NLC | TLC | Distance |
|---|---|---|---|
| Ealing Broadway | 3190 | EAL | 0.82 KM |
| West Ealing | 3188 | WEA | 1.32 KM |
| Drayton Green | 3099 | DRG | 2.48 KM |
| Brentford | 5552 | BFD | 2.68 KM |
| Castle Bar Park | 3098 | CBP | 2.86 KM |
Nearby Listings
| Address | Price | Type | Score | Distance |
|---|---|---|---|---|
| Mattock Lane, Ealing, London, W5 | £ 675,000 | BUY | 7 / 10 | 0.00 KM |
| Mattock Lane, Ealing, W5 | £ 2,600,000 | BUY | 6 / 10 | 0.01 KM |
| Mattock Lane, London, W5 | £ 842,000 | BUY | 6 / 10 | 0.08 KM |
| Filmworks Walk, London | £ 300,000 | BUY | Unknown | 0.10 KM |
| Bogart House, Filmworks Walk, Ealing | £ 553,000 | BUY | 6 / 10 | 0.11 KM |
Nearby Properties
| Address | Price | Distance |
|---|---|---|
| 17 Mattock Lane | £ 250,000 | 0.08 KM |
| 4 Mattock Lane | £ 275,000 | 0.08 KM |
| 6 Mattock Lane | £ 906,000 | 0.08 KM |
| 79a New Broadway | £ 10,000 | 0.08 KM |
| 7b Bond Street | £ 115,000 | 0.29 KM |