Langstone Drive, Exmouth
By Links Estate Agents
£ 380,000
Reviews
4 out of 5 stars
Links Estate Agents says ..
A superb extended 4 bedroom family home which has been the subject of extensive improvement throughout and benefits from having a feature outside sitting area with a panoramic outlook and an insulated garden workshop/gym/office.
Property Oracle says ..
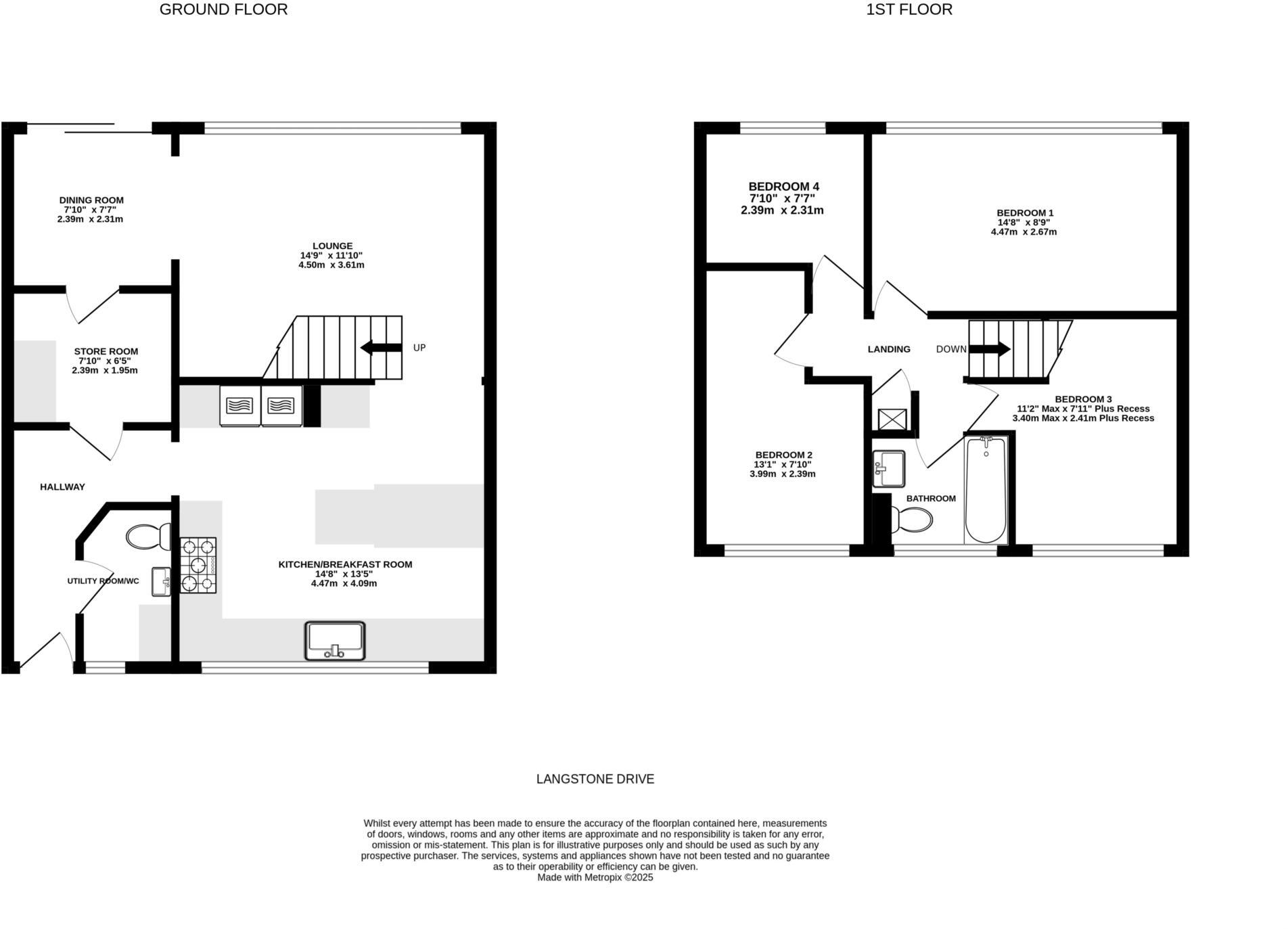
Langstone Drive, Exmouth is located in a desirable area with good access to local amenities and transport links. The property itself is a four-bedroom terraced house that appears to be in excellent condition, having undergone a recent modernisation. The kitchen and bathroom have been recently updated to a high standard, and the property benefits from a good-sized garden with a decked area, shed and summer house. While the plot size is not specified, the garden appears relatively spacious compared to other properties in the area.
Considering the average price per square foot in the area is £369, and this property is listed at £380,000 with 938.61 sqft, the price seems reasonable, especially given the property’s modern condition and desirable location. Nearby comparable properties on Langstone Drive have sold for between £164,000 and £325,000, although the square footage for these properties is not consistently provided. The presence of good local schools within a short distance further enhances the property’s desirability and justifies the asking price.
Therefore, we give this property 8 / 10. *Disclaimer: This is our option and does constitute a recommendation or financial advice. Do your own research. *
- Price
- 8
- Condition
- 9
- Location
- 8
- Land
- 7
- Bedrooms
- 4
- Bathrooms
- 1
- Sqft (est)
- 938.61
The heatmap indicates the level of crime in the area. The color of the heatmap indicates the crime severity and recency.
Metrics Year-on-Year
- Average area value
- 412,759.00 £Increased by 3.22 %
- Est sale value
- 374,505.39 £Increased by 2.31 %
- Average area rental value
- 1,432.00 £/moDecreased by 13.89 %
- Est letting value
- 938.61 £/moUnchanged by 0.00 %
- Est rental Yield
- 4.16 %Decreased by 16.63 %
- Crime Rate
- 13.00 %Unchanged by 0.00 %
Agent Activity
Links Estate Agents created the listing.
Nearby Schools
| Name | Type | Ofsted | Distance |
|---|---|---|---|
| Withycombe Raleigh Church Of England Primary School | Voluntary Controlled School | Good | 0.41 KM |
| Marpool Primary School | Foundation School | Good | 0.54 KM |
| Exmouth & District Children'S Centre | Children's Centre | 0.55 KM | |
| Brixington Primary Academy | Academy Sponsor Led | Requires improvement | 0.65 KM |
| Exmouth Community College | Academy Converter | Requires improvement | 1.23 KM |
Images
Nearby Streets
| Name | Average Price | Average Sqft | Distance |
|---|---|---|---|
| Broad Park Road | £ 350,000 | 0 | 0.00 KM |
| Brook Meadow | £ 0 | 0 | 0.00 KM |
| St John's Road | £ 270,000 | 0 | 0.00 KM |
| Linden Close | £ 289,950 | 0 | 0.00 KM |
| School Lane | £ 0 | 0 | 0.00 KM |
Nearby Transport
| Name | NLC | TLC | Distance |
|---|---|---|---|
| Exmouth | 5756 | EXM | 2.38 KM |
| Lympstone Village | 5761 | LYM | 4.15 KM |
| Starcross | 3413 | SCS | 5.66 KM |
| Lympstone Commando | 5762 | LYC | 5.86 KM |
| Dawlish Warren | 3409 | DWW | 6.43 KM |
Nearby Listings
| Address | Price | Type | Score | Distance |
|---|---|---|---|---|
| Langstone Drive, Exmouth | £ 380,000 | BUY | 8 / 10 | 0.00 KM |
| Langstone Drive, Exmouth, EX8 4HT | £ 300,000 | BUY | 7 / 10 | 0.03 KM |
| Langstone Drive, Exmouth, Devon, EX8 | £ 275,000 | BUY | 6 / 10 | 0.05 KM |
| Langstone Drive, Exmouth, Devon | £ 280,000 | BUY | 5 / 10 | 0.07 KM |
| Langstone Drive, Exmouth, EX8 4JA | £ 225,000 | BUY | 6 / 10 | 0.13 KM |
Nearby Properties
| Address | Price | Distance |
|---|---|---|
| 4 Langstone Drive | £ 225,000 | 0.07 KM |
| 18 Langstone Drive | £ 230,000 | 0.07 KM |
| 2 Langstone Drive | £ 249,950 | 0.07 KM |
| 17 Langstone Drive | £ 162,000 | 0.09 KM |
| 39 Langstone Drive | £ 192,500 | 0.09 KM |