Irlams says ..
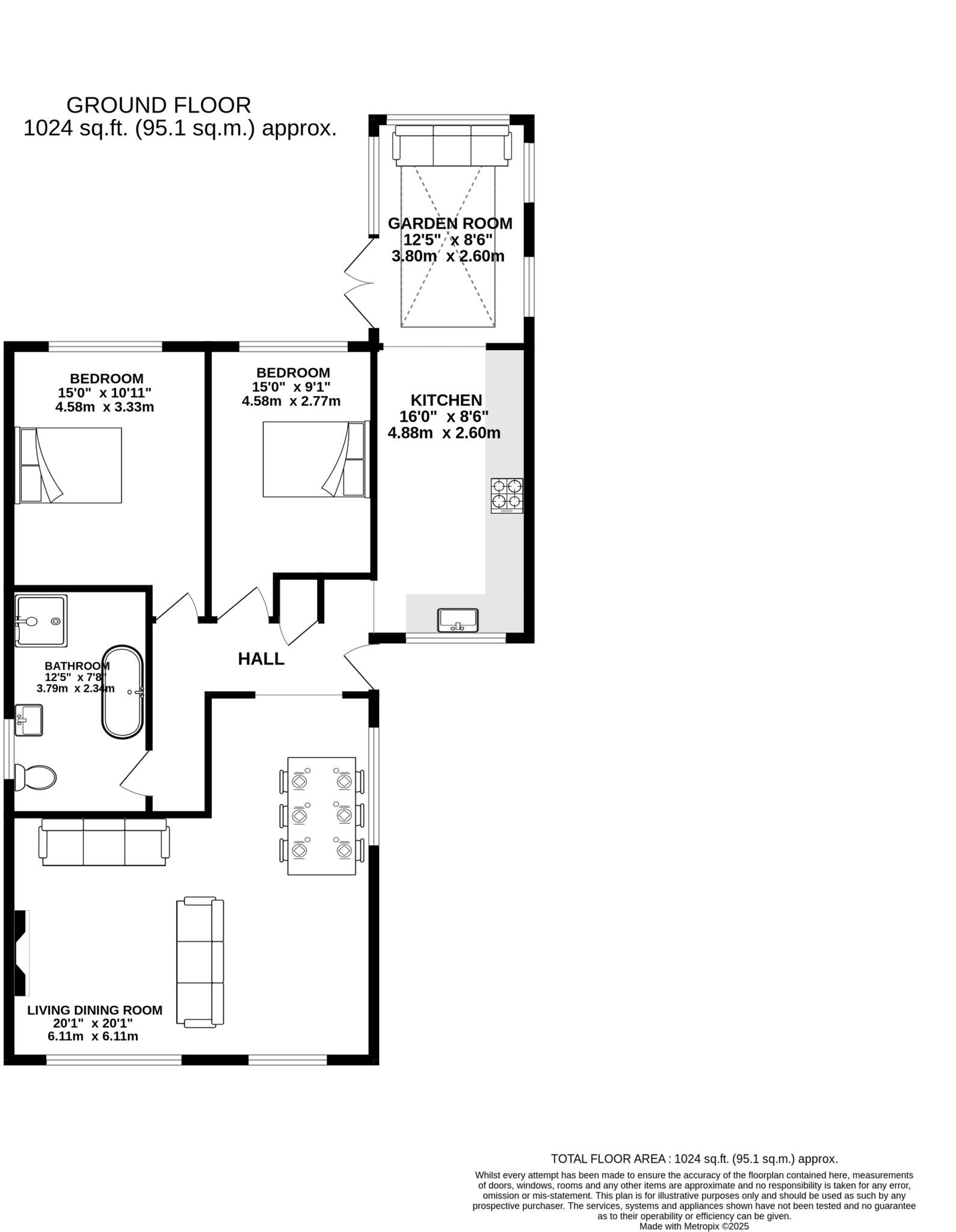
This beautifully presented two bedroom detached bungalow has been much remodelled, refurbished and extended by the current owners to now provide light, spacious and flexible living accommodation on one floor. Particular mention must be made of the stunning Kitchen space with stone work surfaces a...
Property Oracle says ..
This is a well-presented, modern detached bungalow in the desirable village of Chelford. The property benefits from a good-sized garden, a modern kitchen and bathroom, and is located close to local amenities including the train station and primary school. The asking price appears reasonable given the location and condition of the property.
Therefore, we give this property 7 / 10. *Disclaimer: This is our option and does constitute a recommendation or financial advice. Do your own research. *
- Price
- 8
- Condition
- 9
- Location
- 7
- Land
- 7
- Bedrooms
- 2
- Bathrooms
- 1
- Sqft (est)
- 1,041.41
The heatmap indicates the level of crime in the area. The color of the heatmap indicates the crime severity and recency.
Metrics Year-on-Year
- Average area value
- 747,000.00 £Decreased by 5.34 %
- Est sale value
- 517,580.77 £Increased by 42.82 %
- Average area rental value
- 3,139.00 £/moIncreased by 88.53 %
- Est letting value
- 2,082.82 £/mo
- Est rental Yield
- 5.04 %Increased by 99.21 %
- Crime Rate
- 24.00 %Unchanged by 0.00 %
Agent Activity
Irlams created the listing.
Nearby Schools
| Name | Type | Ofsted | Distance |
|---|---|---|---|
| Chelford Cofe Primary School | Voluntary Controlled School | Good | 0.87 KM |
| The David Lewis Centre | Special Post 16 Institution | Outstanding | 1.75 KM |
| David Lewis School | Non-maintained Special School | Good | 1.75 KM |
| Nether Alderley Primary School | Academy Converter | Good | 4.75 KM |
| Lindow Community Primary School | Community School | Good | 4.78 KM |
Images
Nearby Streets
| Name | Average Price | Average Sqft | Distance |
|---|---|---|---|
| Galloway Road | £ 0 | 0 | 0.00 KM |
Nearby Transport
| Name | NLC | TLC | Distance |
|---|---|---|---|
| Chelford (Cheshire) | 2764 | CEL | 0.53 KM |
| Alderley Edge | 2760 | ALD | 5.58 KM |
| Goostrey | 1220 | GTR | 7.88 KM |
| Wilmslow | 2774 | WML | 8.16 KM |
| Mobberley | 2849 | MOB | 8.77 KM |
Nearby Listings
| Address | Price | Type | Score | Distance |
|---|---|---|---|---|
| Chapel Croft, Chelford | £ 495,000 | BUY | 7 / 10 | 0.00 KM |
| Chapel Croft, Chelford, SK11 | £ 625,000 | BUY | 6 / 10 | 0.00 KM |
| Chapel Croft, SK11 | £ 550,000 | BUY | 6 / 10 | 0.04 KM |
| Chapel Croft, Chelford | £ 575,000 | BUY | 8 / 10 | 0.04 KM |
| Chapel Croft, Chelford, SK11 | £ 635,000 | BUY | 8 / 10 | 0.06 KM |
Nearby Properties
| Address | Price | Distance |
|---|---|---|
| 30 Chapel Croft | £ 127,000 | 0.02 KM |
| 32 Chapel Croft | £ 310,000 | 0.02 KM |
| 9 Chapel Croft | £ 82,000 | 0.02 KM |
| 2 Chapel Croft | £ 285,000 | 0.02 KM |
| 1 Chapel Croft | £ 340,000 | 0.02 KM |