Stratford Drive Overstone NN6 0RP
DA

Stratford Drive Overstone NN6 0RP

By David Wilson Homes

£ 446,995

Reviews

3 out of 5 stars

David Wilson Homes says ..

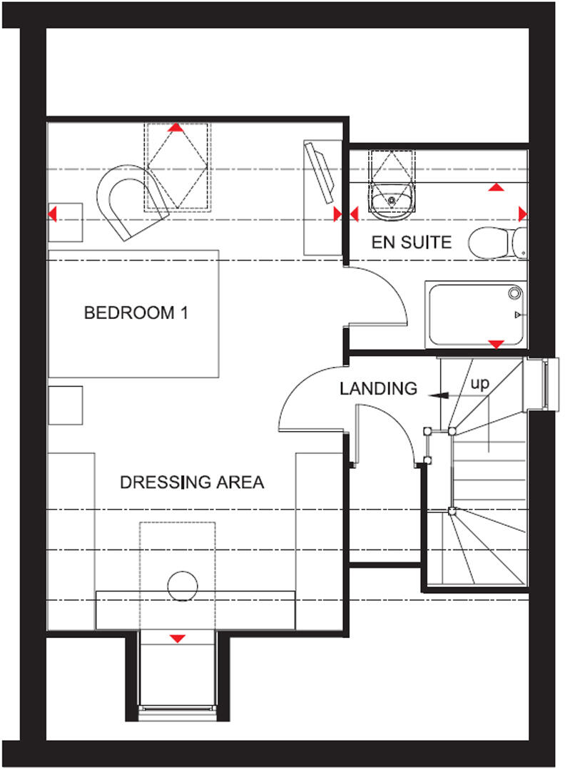
FULLY INTEGRATED KITCHEN UPGRADE - FLOORING INCLUDED - £5,000 DEPOSIT CONTRIBUTION* - 4 double bedrooms - Top floor bedroom - Welcome to The Bayswater, a thoughtfully designed three-floor family home perfect for modern living. Enjoy the open-plan kitchen and dining area that leads to your garden ...

Property Oracle says ..

The property is located in Overstone, a village in West Northamptonshire. Based on the provided data, Stratford Drive has an average house price of £394,417. The property is a 4-bedroom house with a list price of £446,995. This is slightly higher than the average for the street, but comparable to other 4-bedroom homes in the area. The property appears to be in excellent condition based on the provided images. It is a new build with modern fixtures and finishes. The plot size is not specified, but the images show a small garden area. There are several schools within a reasonable distance of the property, including Overstone Primary School which has a good Ofsted rating. The lack of nearby transportation information makes it difficult to fully assess the location score.

Therefore, we give this property 7 / 10. *Disclaimer: This is our option and does constitute a recommendation or financial advice. Do your own research. *

Price
7
Condition
9
Location
7
Land
6
Bedrooms
4
Bathrooms
0
Sqft (est)
780.00

The heatmap indicates the level of crime in the area. The color of the heatmap indicates the crime severity and recency.

Metrics Year-on-Year

Average area value
383,589.00 £
Decreased by 11.36 %
from 432,750.00 £
Est sale value
397,800.00 £
Increased by 51.79 %
from 262,080.00 £
Average area rental value
1,387.00 £/mo
Increased by 2.59 %
from 1,352.00 £/mo
Est letting value
780.00 £/mo
Unchanged by 0.00 %
from 780.00 £/mo
Est rental Yield
4.34 %
Increased by 15.73 %
from 3.75 %
Crime Rate
79.00 %
Unchanged by 0.00 %
from 79.00 %

Agent Activity

  • David Wilson Homes created the listing.

Nearby Schools

NameTypeOfstedDistance
Overstone Primary SchoolCommunity SchoolGood1.07 KM
Overstone Park SchoolOther Independent Special School2.17 KM
Greenfields Specialist School For CommunicationAcademy Special ConverterGood2.71 KM
Moulton Primary SchoolFoundation SchoolGood2.78 KM
Thorplands Children'S CentreChildren's Centre2.81 KM

Images

Lichfield The Bayswater Show Home at Kings Park Development The Bayswater Show Home at Kings Park Development Bayswater The Bayswater Show Home at Kings Park Development The Bayswater Show Home at Kings Park Development The Bayswater Show Home at Kings Park Development The Bayswater Show Home at Kings Park Development The Bayswater Show Home at Kings Park Development The Bayswater Show Home at Kings Park Development

Nearby Streets

NameAverage PriceAverage SqftDistance
Stratford Drive £ 394,41700.00 KM
Monteyne Close £ 675,00000.00 KM
Abbeyfield Close £ 000.00 KM
Kipling Way £ 336,78300.00 KM
Drury Way £ 242,50000.00 KM

Nearby Listings

AddressPriceTypeScoreDistance
Stratford Drive Overstone NN6 0RP £ 319,995BUY5 / 100.00 KM
Stratford Drive Overstone NN6 0RP £ 709,995BUY6 / 100.00 KM
Stratford Drive Overstone NN6 0RP £ 544,995BUY6 / 100.00 KM
Stratford Drive Overstone NN6 0RP £ 544,995BUY6 / 100.00 KM
Stratford Drive Overstone NN6 0RP £ 352,995BUYUnknown0.00 KM

Nearby Properties

AddressPriceDistance
79 Park View £ 515,0000.86 KM
93 Park View £ 435,0000.86 KM
91a Park View £ 412,5000.86 KM
85a Park View £ 610,0000.86 KM
97 Park View £ 590,0000.86 KM