Gascoigne Halman says ..
Situated on one of Knutsford's most popular roads and within the conservation area this attractive two/three double bedroom Victorian terraced property falls within a short flat walk of the vibrant town centre, local amenities, and nearby schools.
Property Oracle says ..
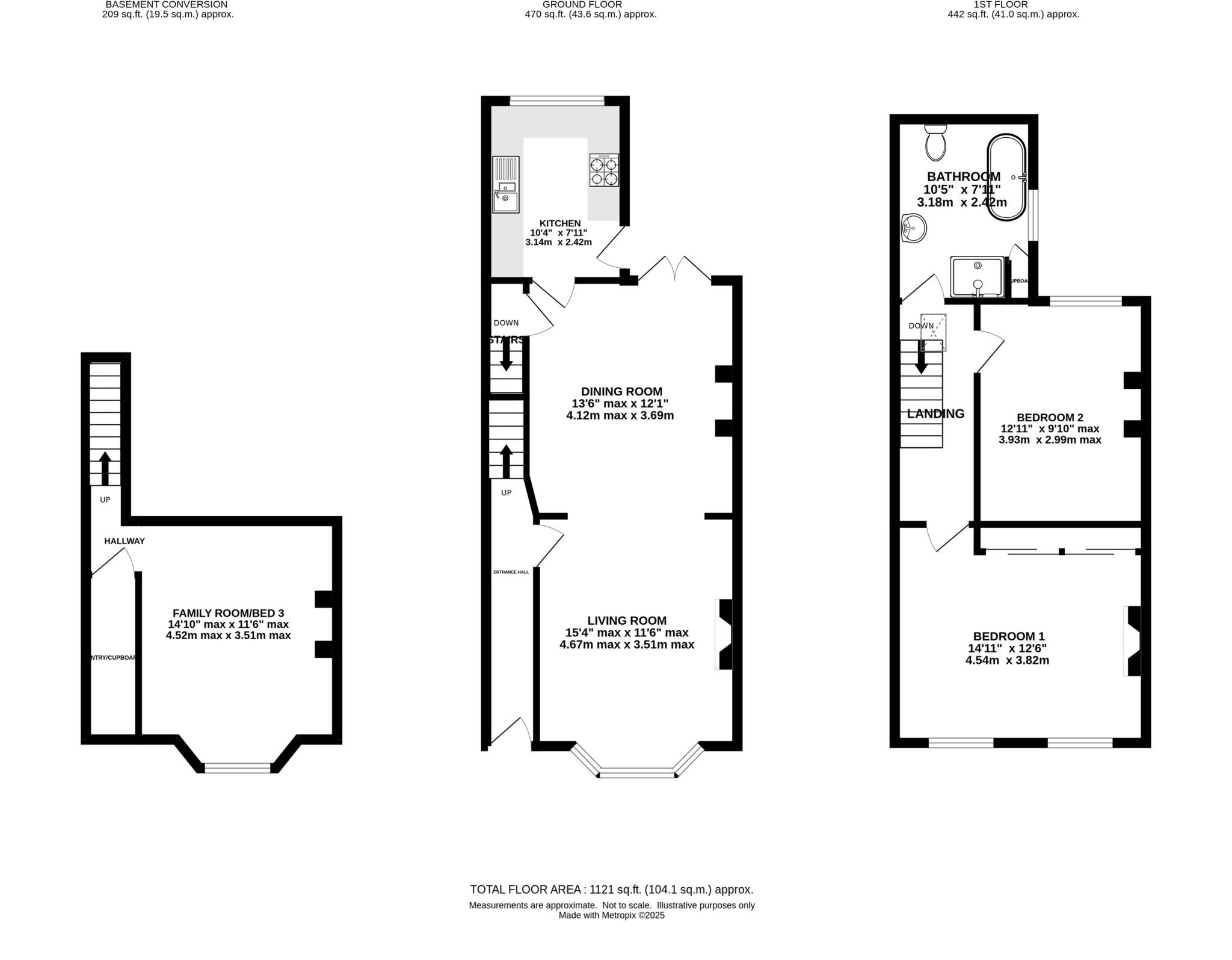
This two-bedroom, one-bathroom terraced house located on Bexton Road in Knutsford, Cheshire, presents itself as a well-maintained property in a desirable location. The interior is tastefully decorated and features a modern kitchen. The images showcase a comfortable living space, with hardwood floors and a traditional fireplace adding character. The bedrooms are presented neatly, each with its own style and charm. The property benefits from a small, paved rear garden, suitable for outdoor seating. The location is particularly appealing, being within walking distance of excellent schools and Knutsford train station. While the property is presented well, some minor updates or repairs might be considered to enhance its value further. The list price appears to be in line with similar properties in the area, although a precise price per square foot analysis is limited by the lack of data for comparable properties. Overall, this property offers a comfortable and convenient lifestyle in a highly sought-after location.
Therefore, we give this property 6 / 10. *Disclaimer: This is our option and does constitute a recommendation or financial advice. Do your own research. *
- Price
- 7
- Condition
- 7
- Location
- 8
- Land
- 4
- Bedrooms
- 2
- Bathrooms
- 1
- Sqft (est)
- 1,120.52
The heatmap indicates the level of crime in the area. The color of the heatmap indicates the crime severity and recency.
Metrics Year-on-Year
- Average area value
- 678,106.00 £Increased by 15.18 %
- Est sale value
- 656,624.72 £Increased by 35.96 %
- Average area rental value
- 1,651.00 £/moDecreased by 17.16 %
- Est letting value
- 1,120.52 £/moUnchanged by 0.00 %
- Est rental Yield
- 2.92 %Decreased by 28.08 %
- Crime Rate
- 8.00 %Unchanged by 0.00 %
Agent Activity
Gascoigne Halman created the listing.
Nearby Schools
| Name | Type | Ofsted | Distance |
|---|---|---|---|
| Yorston Lodge School | Other Independent School | 0.07 KM | |
| Egerton Primary School | Academy Converter | 0.28 KM | |
| Knutsford Academy | Academy Converter | Good | 0.35 KM |
| Cheshire Studio School | Studio Schools | Good | 0.35 KM |
| Bexton Primary School | Academy Converter | 0.86 KM |
Images
Nearby Streets
| Name | Average Price | Average Sqft | Distance |
|---|---|---|---|
| Gloucester Road | £ 0 | 0 | 0.00 KM |
| Malvern Road | £ 0 | 0 | 0.00 KM |
| Elizabeth Gaskell Court | £ 0 | 0 | 0.00 KM |
| Warren Close | £ 185,800 | 0 | 0.00 KM |
| Drury Lane | £ 580,000 | 0 | 0.00 KM |
Nearby Transport
| Name | NLC | TLC | Distance |
|---|---|---|---|
| Knutsford | 2848 | KNF | 0.71 KM |
| Plumley | 2308 | PLM | 5.47 KM |
| Mobberley | 2849 | MOB | 5.81 KM |
| Ashley | 2850 | ASY | 7.28 KM |
| Hale (Manchester) | 2845 | HAL | 9.25 KM |
Nearby Listings
| Address | Price | Type | Score | Distance |
|---|---|---|---|---|
| Bexton Road, Knutsford | £ 485,000 | BUY | 6 / 10 | 0.00 KM |
| Bexton Road, Knutsford, Cheshire, WA16 | £ 595,000 | BUY | Unknown | 0.01 KM |
| Bexton Road, Knutsford, WA16 | £ 575,000 | BUY | 7 / 10 | 0.02 KM |
| Bexton Road, Knutsford, WA16 | £ 600,000 | BUY | 7 / 10 | 0.03 KM |
| Bexton Road, Knutsford | £ 575,000 | BUY | 6 / 10 | 0.04 KM |
Nearby Properties
| Address | Price | Distance |
|---|---|---|
| 16 Bexton Road | £ 415,000 | 0.01 KM |
| 12 Bexton Road | £ 380,000 | 0.01 KM |
| 18 Bexton Road | £ 430,000 | 0.01 KM |
| 10 Bexton Road | £ 399,000 | 0.01 KM |
| 6 Bexton Road | £ 425,000 | 0.01 KM |