Woodchester Park, Beaconsfield, HP9
By The Frost Partnership
£ 1,695,000
Reviews
3 out of 5 stars
The Frost Partnership says ..
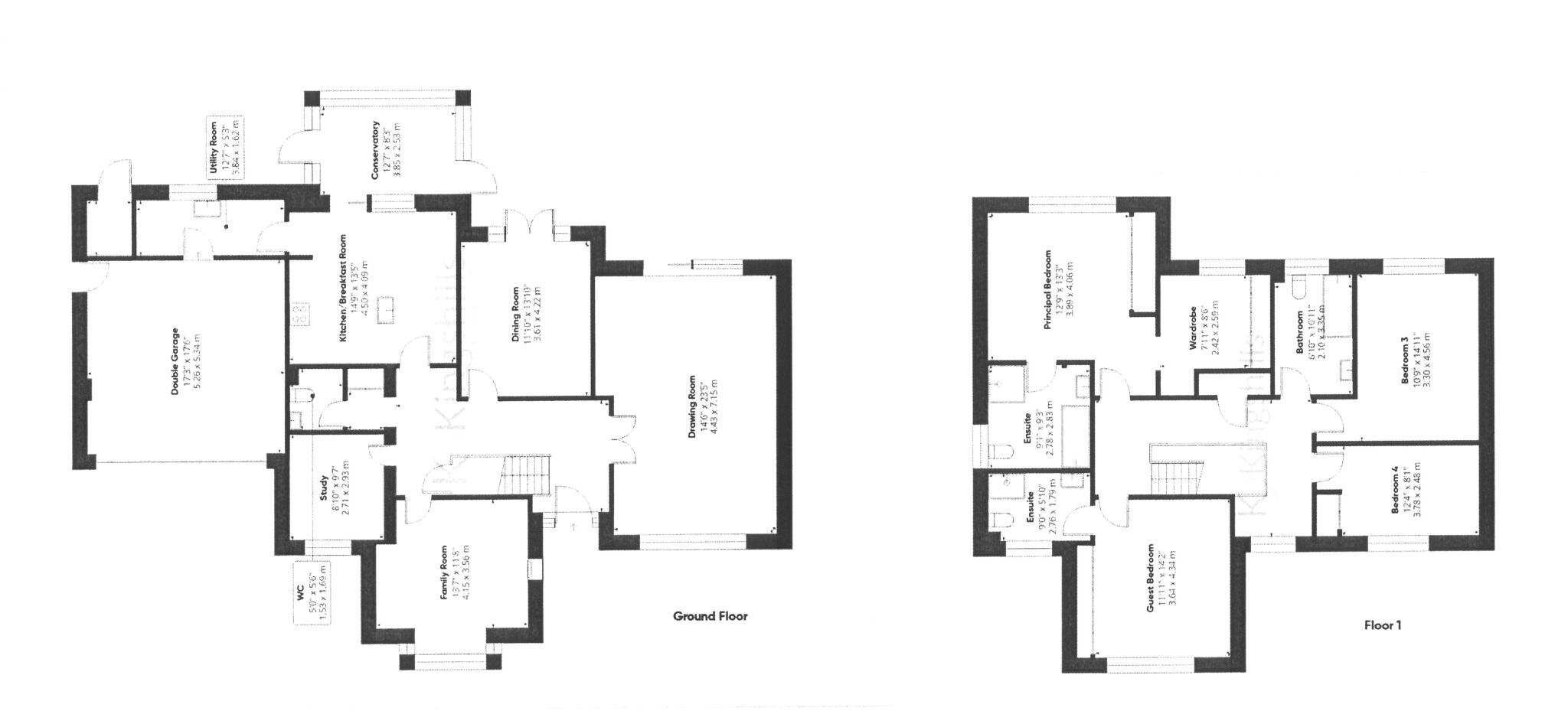
A WONDERFUL OPPORTUNITY TO BUY A DETACHED 5 BEDROOM HOUSE IN A SOUGHT AFTER LOCATION WHICH REQUIRES UPDATING AND COULD BE EXTENDED, STNC
Property Oracle says ..
This is a detached property located in Woodchester Park, Beaconsfield. It features 5 bedrooms and 2 bathrooms. While the property benefits from a desirable location, a large garden, and proximity to good schools and transportation, some aspects of the interior suggest it could benefit from modernisation. The price is above the local average, but seems reasonable considering the location and land.
Therefore, we give this property 7 / 10. *Disclaimer: This is our option and does constitute a recommendation or financial advice. Do your own research. *
- Price
- 7
- Condition
- 6
- Location
- 8
- Land
- 8
- Bedrooms
- 5
- Bathrooms
- 2
The heatmap indicates the level of crime in the area. The color of the heatmap indicates the crime severity and recency.
Metrics Year-on-Year
- Average area value
- 1,157,268.00 £Increased by 2.22 %
- Average area rental value
- 2,290.00 £/moDecreased by 42.88 %
- Est rental Yield
- 2.37 %Decreased by 44.24 %
- Crime Rate
- 8.00 %Unchanged by 0.00 %
Agent Activity
The Frost Partnership created the listing.
Nearby Schools
| Name | Type | Ofsted | Distance |
|---|---|---|---|
| Alfriston School | Academy Special Converter | Outstanding | 0.30 KM |
| High March School | Other Independent School | 1.29 KM | |
| Davenies School | Other Independent School | 2.10 KM | |
| St Mary And All Saints Cofe Primary School | Voluntary Aided School | Outstanding | 2.29 KM |
| Beaconsfield High School | Academy Converter | Outstanding | 2.43 KM |
Images
Nearby Streets
| Name | Average Price | Average Sqft | Distance |
|---|---|---|---|
| Barton Drive | £ 0 | 0 | 0.00 KM |
| St Michael's Green | £ 0 | 0 | 0.00 KM |
| The Birches | £ 1,850,000 | 0 | 0.00 KM |
Nearby Transport
| Name | NLC | TLC | Distance |
|---|---|---|---|
| Beaconsfield | 3047 | BCF | 1.71 KM |
| Seer Green | 3061 | SRG | 5.19 KM |
| Amersham | 506 | AMR | 7.48 KM |
| Bourne End | 3018 | BNE | 8.26 KM |
Nearby Listings
| Address | Price | Type | Score | Distance |
|---|---|---|---|---|
| Woodchester Park, Beaconsfield, HP9 | £ 1,695,000 | BUY | 7 / 10 | 0.00 KM |
| Woodchester Park, Knotty Green, Beaconsfield, Buckinghamshire, HP9 | £ 2,250,000 | BUY | 9 / 10 | 0.10 KM |
| Woodchester Park, Knotty Green, Beaconsfield, Buckinghamshire, HP9 | £ 1,895,000 | BUY | 7 / 10 | 0.10 KM |
| Finch Lane, Knotty Green, Beaconsfield, Buckinghamshire, HP9 | £ 3,250,000 | BUY | 8 / 10 | 0.12 KM |
| Finch Lane, Knotty Green, Beaconsfield, HP9 | £ 1,650,000 | BUY | Unknown | 0.12 KM |
Nearby Properties
| Address | Price | Distance |
|---|---|---|
| Maple Tree House | £ 685,000 | 0.09 KM |
| Russets | £ 2,025,000 | 0.09 KM |
| Tudor Court | £ 1,925,000 | 0.12 KM |
| Radford House | £ 1,350,000 | 0.12 KM |
| Kingsley House | £ 1,370,000 | 0.12 KM |