Acorn says ..
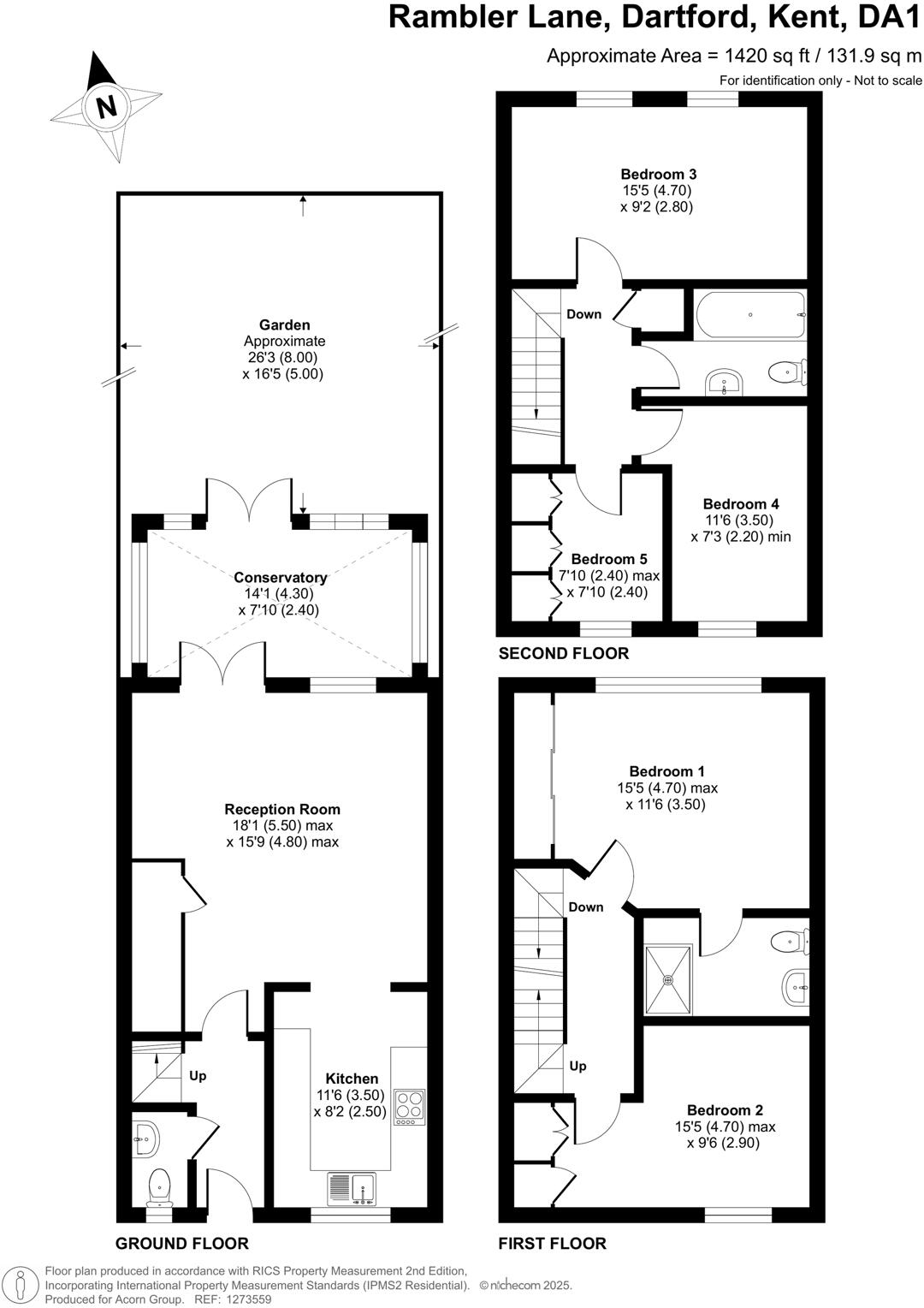
**GUIDE PRICE £550,000 TO £575,000** Nestled in a sought-after location, this charming end of terrace house in the heart of the Bridge development, offers a perfect blend of modern comfort and traditional elegance. Boasting five generously sized bedrooms, this property is i...
Property Oracle says ..
This property is a 5 bedroom, 2 bathroom end of terrace house located in Dartford, Kent. It benefits from being close to good schools and transport links, including Dartford train station which is approximately 2km away. The property itself is modern and well presented, with a good-sized rear garden. The kitchen appears to be recently updated and the property benefits from a conservatory. The asking price is higher than the average for the area, but this is likely due to the size and condition of the property, as well as the additional features such as the conservatory and garden. Overall, this property represents good value for money in a desirable location.
Therefore, we give this property 7 / 10. *Disclaimer: This is our option and does constitute a recommendation or financial advice. Do your own research. *
- Price
- 7
- Condition
- 9
- Location
- 8
- Land
- 7
- Bedrooms
- 5
- Bathrooms
- 2
- Sqft (est)
- 1,456.00
- Lot (est)
- 1,420.00
The heatmap indicates the level of crime in the area. The color of the heatmap indicates the crime severity and recency.
Metrics Year-on-Year
- Average area value
- 320,968.00 £Decreased by 12.07 %
- Est sale value
- 513,968.00 £Decreased by 10.63 %
- Average area rental value
- 1,437.00 £/moDecreased by 3.56 %
- Est letting value
- 1,456.00 £/moUnchanged by 0.00 %
- Est rental Yield
- 5.37 %Increased by 9.59 %
- Crime Rate
- 7.00 %Unchanged by 0.00 %
Agent Activity
Acorn created the listing.
Nearby Schools
| Name | Type | Ofsted | Distance |
|---|---|---|---|
| Dartford Bridge Community Primary School | Academy Sponsor Led | 0.21 KM | |
| The Leigh Utc | University Technical College | Good | 0.54 KM |
| Temple Hill Children'S Centre | Children's Centre | 1.27 KM | |
| Temple Hill Primary Academy | Academy Converter | Good | 1.27 KM |
| River Mill Primary School | Free Schools | 1.29 KM |
Images
Nearby Streets
| Name | Average Price | Average Sqft | Distance |
|---|---|---|---|
| Hardy Grove | £ 300,000 | 0 | 0.00 KM |
| Farthing Close | £ 325,000 | 0 | 0.00 KM |
| Bob Dunn Way | £ 0 | 0 | 0.00 KM |
| Coleridge Road | £ 200,000 | 0 | 0.00 KM |
| Riverside Wharf | £ 325,000 | 0 | 0.00 KM |
Nearby Transport
| Name | NLC | TLC | Distance |
|---|---|---|---|
| Dartford | 5101 | DFD | 2.00 KM |
| Purfleet | 7453 | PFL | 2.22 KM |
| Slade Green | 5154 | SGR | 4.03 KM |
| Stone Crossing | 5248 | SCG | 4.32 KM |
| Crayford | 5100 | CRY | 5.56 KM |
Nearby Listings
| Address | Price | Type | Score | Distance |
|---|---|---|---|---|
| Rambler Lane, Dartford, Kent | £ 550,000 | BUY | 7 / 10 | 0.00 KM |
| Rambler Lane, Dartford, Kent, DA1 | £ 510,000 | BUY | 7 / 10 | 0.01 KM |
| Rambler Lane, Dartford, DA1 | £ 575,000 | BUY | 7 / 10 | 0.05 KM |
| Stones Avenue, Dartford | £ 210,000 | BUY | 6 / 10 | 0.06 KM |
| Silver Train Gardens, Dartford, Kent, DA1 | £ 190,000 | BUY | 5 / 10 | 0.08 KM |
Nearby Properties
| Address | Price | Distance |
|---|---|---|
| 10 Rambler Lane | £ 280,000 | 0.01 KM |
| 8 Moonlight Mile House | £ 230,000 | 0.07 KM |
| 3 Moonlight Mile House | £ 170,000 | 0.07 KM |
| 5 Moonlight Mile House | £ 173,995 | 0.07 KM |
| 7 Moonlight Mile House | £ 235,000 | 0.07 KM |