Upload Abode says ..
Once a traditional pub, this striking end-terraced home has been beautifully transformed into a stylish modern residence. Behind the characterful facade lies a renovation of the highest standard, blending charm, light, and contemporary finishes to create something truly special.
Property Oracle says ..
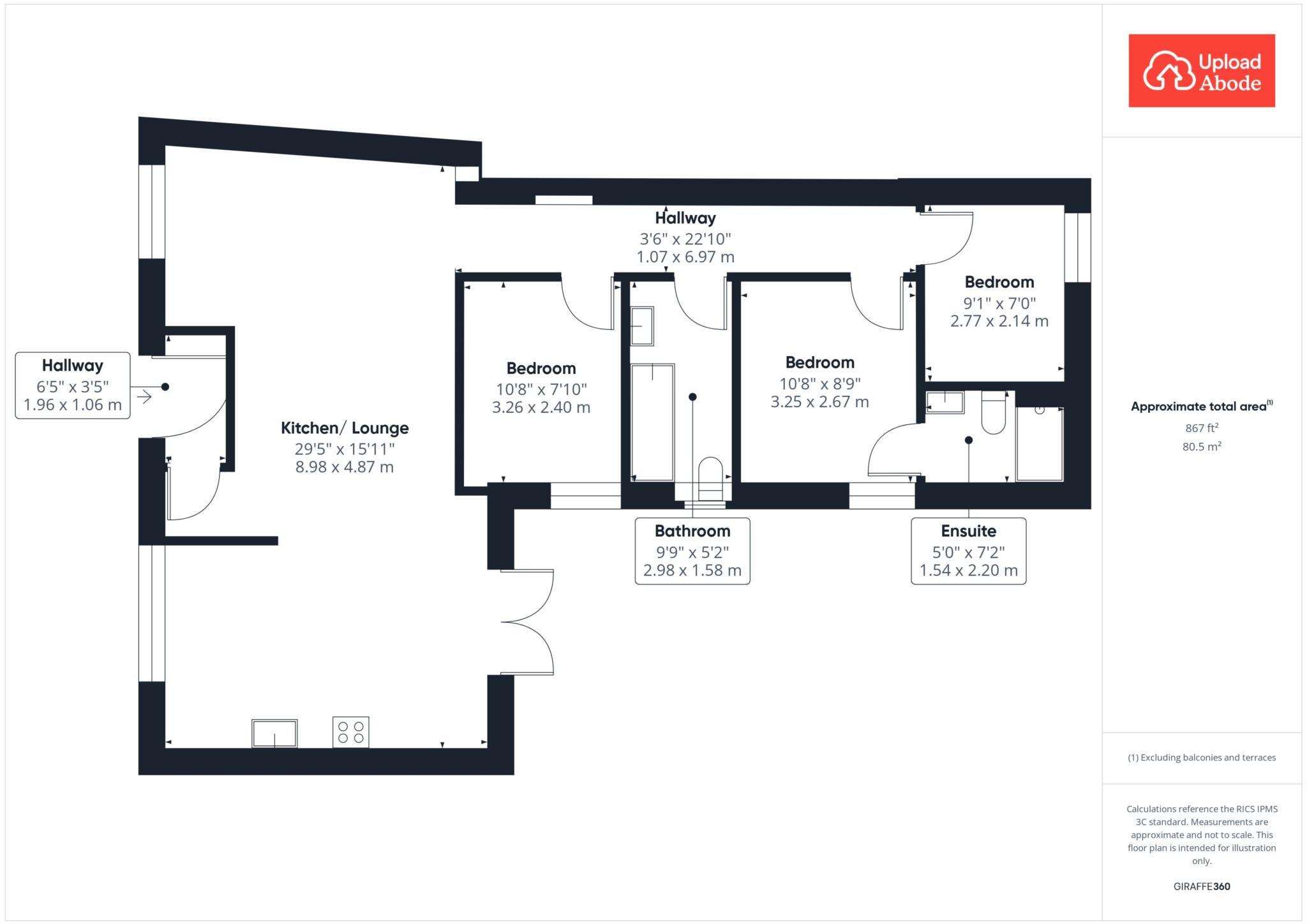
This end-of-terrace property on MacNeil Street, Larkhall, presents a modern living space with three bedrooms and two bathrooms. The interior boasts a contemporary design, and the property benefits from a garden. Located within reasonable distance of Larkhall train station, it offers good transport links. The listing price of £230,000 appears competitive given the property’s condition, size, and location within Larkhall. The property is in good condition and would be ideal for a small family.
Therefore, we give this property 7 / 10. *Disclaimer: This is our option and does constitute a recommendation or financial advice. Do your own research. *
- Price
- 7
- Condition
- 9
- Location
- 6
- Land
- 7
- Bedrooms
- 3
- Bathrooms
- 2
- Sqft (est)
- 901.05
The heatmap indicates the level of crime in the area. The color of the heatmap indicates the crime severity and recency.
Metrics Year-on-Year
- Average area value
- 288,590.00 £Decreased by 37.85 %
- Est sale value
- 289,237.05 £Decreased by 32.70 %
- Average area rental value
- 2,219.00 £/moDecreased by 2.72 %
- Est letting value
- 1,802.10 £/moUnchanged by 0.00 %
- Est rental Yield
- 9.23 %Increased by 56.71 %
- Crime Rate
- 0.00 %
Agent Activity
Upload Abode created the listing.
Images
Nearby Streets
| Name | Average Price | Average Sqft | Distance |
|---|---|---|---|
| McNeil Street | £ 90,667 | 0 | 0.00 KM |
| Union Street | £ 45,000 | 0 | 0.00 KM |
| Church View | £ 110,667 | 0 | 0.00 KM |
| Marshall Street | £ 930,000 | 0 | 0.00 KM |
| King Street | £ 0 | 0 | 0.00 KM |
Nearby Transport
| Name | NLC | TLC | Distance |
|---|---|---|---|
| Larkhall | 9728 | LRH | 0.27 KM |
| Merryton | 9705 | MEY | 1.35 KM |
| Chatelherault | 9707 | CTE | 4.63 KM |
| Shieldmuir | 9552 | SDM | 4.78 KM |
| Airbles | 9695 | AIR | 5.53 KM |
Nearby Listings
| Address | Price | Type | Score | Distance |
|---|---|---|---|---|
| MacNeil Street, Larkhall | £ 230,000 | BUY | 7 / 10 | 0.00 KM |
| 96, Union Street, Trinity Church and Hall, Larkhall, ML91EF | £ 179,000 | BUY | 5 / 10 | 0.06 KM |
| Church View, Larkhall | £ 129,995 | BUY | 5 / 10 | 0.19 KM |
| Broomhill Court, Larkhall | £ 215,000 | BUY | 7 / 10 | 0.21 KM |
| Larkhall, South Lanarkshire, ML9 | £ 340,000 | BUY | 7 / 10 | 0.24 KM |