Chapel Lane, Farnborough, Hampshire, GU14
By Bridges Estate Agents
£ 380,000
Reviews
3 out of 5 stars
Bridges Estate Agents says ..
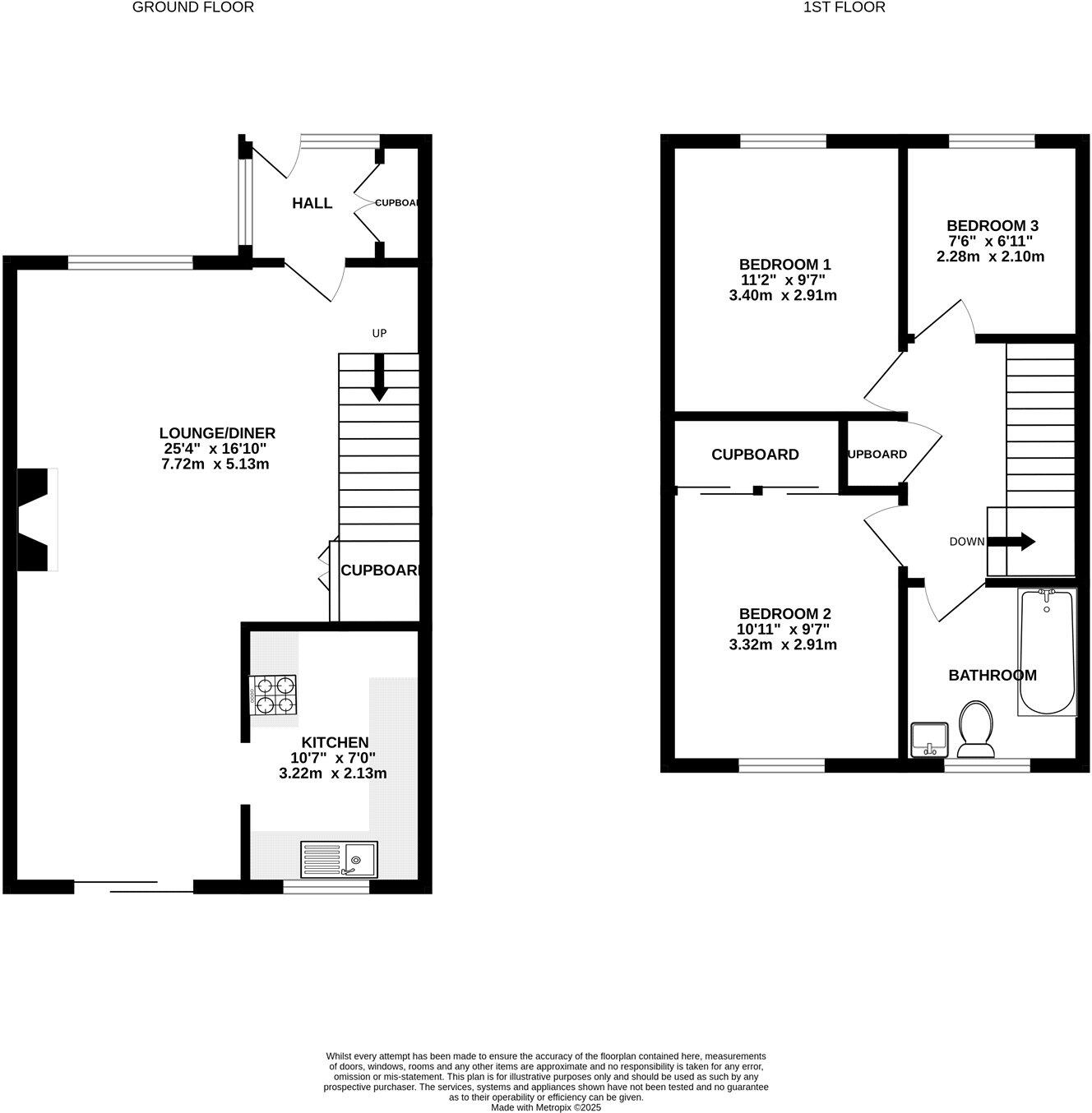
A spacious well designed three bedroom family home, ideally located in a sought after area close to local shops and amenities. To the ground floor the property boasts a good sized entrance porch, spacious lounge/diner with separate kitchen and access out to the easterly aspect rear garden.<...
Property Oracle says ..
This three-bedroom terraced house in Farnborough, Hampshire is located on Chapel Lane in the Fernhill area. The property benefits from being within a reasonable distance of several primary and secondary schools, including Grange Community Junior School which has an outstanding Ofsted rating. Transportation links are also convenient with several train stations within a few kilometers, including Farnborough (Main) and Blackwater. The property itself appears well-maintained from the photos provided, though a full survey would be needed to confirm. It includes a small garden and a detached garage. While the list price of £380,000 is lower than the average price for the area (£512,294), it’s important to note that the average property size is considerably larger (1380 sqft compared to 627 sqft). The price per sqft is also slightly below the area average (£371 vs approximately £607). Considering its size, condition, and location, the asking price may represent reasonable value, particularly given the nearby comparable properties which are similarly priced and sized. However, a professional valuation is always recommended before making a purchase decision.
Therefore, we give this property 6 / 10. *Disclaimer: This is our option and does constitute a recommendation or financial advice. Do your own research. *
- Price
- 7
- Condition
- 8
- Location
- 7
- Land
- 4
- Bedrooms
- 3
- Bathrooms
- 1
- Sqft (est)
- 627.84
The heatmap indicates the level of crime in the area. The color of the heatmap indicates the crime severity and recency.
Metrics Year-on-Year
- Average area value
- 413,623.00 £Decreased by 6.20 %
- Est sale value
- 310,152.96 £Increased by 32.09 %
- Average area rental value
- 1,217.00 £/moDecreased by 13.57 %
- Est letting value
- 627.84 £/moUnchanged by 0.00 %
- Est rental Yield
- 3.53 %Decreased by 7.83 %
- Crime Rate
- 18.00 %Unchanged by 0.00 %
Agent Activity
Bridges Estate Agents created the listing.
Nearby Schools
| Name | Type | Ofsted | Distance |
|---|---|---|---|
| The Ferns Primary Academy | Academy Converter | 0.59 KM | |
| Fernhill School | Community School | Requires improvement | 0.59 KM |
| Grange Community Junior School | Community School | Outstanding | 0.81 KM |
| Hurst Lodge School | Other Independent School | 0.92 KM | |
| Butterflies Children'S Centre | Children's Centre | 1.01 KM |
Images
Nearby Streets
| Name | Average Price | Average Sqft | Distance |
|---|---|---|---|
| Coldharbour Lane | £ 0 | 0 | 0.00 KM |
| Hawley View | £ 400,000 | 0 | 0.00 KM |
| Hawley Place Gardens | £ 430,000 | 0 | 0.00 KM |
| Moorside Close | £ 0 | 0 | 0.00 KM |
| M3 | £ 0 | 0 | 0.00 KM |
Nearby Transport
| Name | NLC | TLC | Distance |
|---|---|---|---|
| Blackwater | 5625 | BAW | 2.13 KM |
| Farnborough (Main) | 5521 | FNB | 2.70 KM |
| Frimley | 5683 | FML | 3.00 KM |
| Farnborough North | 5688 | FNN | 3.63 KM |
| Camberley | 5682 | CAM | 4.22 KM |
Nearby Listings
| Address | Price | Type | Score | Distance |
|---|---|---|---|---|
| Chapel Lane, Farnborough, Hampshire, GU14 | £ 380,000 | BUY | 6 / 10 | 0.00 KM |
| The Covert, Farnborough, GU14 | £ 225,000 | BUY | 6 / 10 | 0.09 KM |
| Fernhill Road, Farnborough, Hampshire, GU14 | £ 725,000 | BUY | 6 / 10 | 0.18 KM |
| Perring Avenue, Farnborough, Hampshire, GU14 | £ 230,000 | BUY | Unknown | 0.18 KM |
| Fernhill Road, Farnborough | £ 500,000 | BUY | 7 / 10 | 0.20 KM |
Nearby Properties
| Address | Price | Distance |
|---|---|---|
| 147 Chapel Lane | £ 200,000 | 0.02 KM |
| 145 Chapel Lane | £ 202,000 | 0.02 KM |
| 149 Chapel Lane | £ 215,000 | 0.02 KM |
| 96b Chapel Lane | £ 60,000 | 0.06 KM |
| 82 Chapel Lane | £ 220,000 | 0.11 KM |