Ashburnham Road, Hastings
By Rush Witt & Wilson
£ 600,000
Reviews
3 out of 5 stars
Rush Witt & Wilson says ..
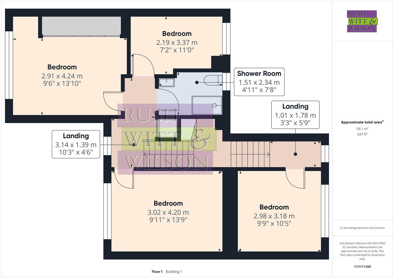
**CHAIN FREE** Nestled on the desirable Ashburnham Road in Hastings, this charming detached house offers a wonderful opportunity for family living. The property boasts a generous layout with two inviting reception rooms, perfect for both relaxation and entertaining. With four well-proportioned be...
Property Oracle says ..
This is a well-presented detached property in a sought-after location. The house has been modernised and benefits from a large garden with a summer house. The property is conveniently located for schools and transportation. The price is reasonable for the location and condition of the property.
Therefore, we give this property 7 / 10. *Disclaimer: This is our option and does constitute a recommendation or financial advice. Do your own research. *
- Price
- 7
- Condition
- 8
- Location
- 7
- Land
- 9
- Bedrooms
- 4
- Bathrooms
- 1
The heatmap indicates the level of crime in the area. The color of the heatmap indicates the crime severity and recency.
Metrics Year-on-Year
- Average area value
- 375,533.00 £Decreased by 14.39 %
- Average area rental value
- 1,233.00 £/moDecreased by 17.69 %
- Est rental Yield
- 3.94 %Decreased by 3.90 %
- Crime Rate
- 2.00 %Unchanged by 0.00 %
Agent Activity
Rush Witt & Wilson created the listing.
Nearby Schools
| Name | Type | Ofsted | Distance |
|---|---|---|---|
| Dudley Infant Academy | Academy Converter | Good | 0.20 KM |
| Sacred Heart Catholic Primary School, Hastings | Voluntary Aided School | Good | 0.28 KM |
| All Saints Cofe Junior Academy | Academy Sponsor Led | Good | 0.47 KM |
| Torfield School | Academy Special Converter | Outstanding | 0.77 KM |
| East Hastings Children'S Centre | Children's Centre | 0.84 KM |
Images
Nearby Streets
| Name | Average Price | Average Sqft | Distance |
|---|---|---|---|
| North Passage | £ 995,000 | 0 | 0.00 KM |
| Egremont Place | £ 230,000 | 0 | 0.00 KM |
| The Glebe | £ 0 | 0 | 0.00 KM |
| Mount Pleasant Road | £ 190,000 | 0 | 0.00 KM |
| Douchs Passage | £ 399,950 | 0 | 0.00 KM |
Nearby Transport
| Name | NLC | TLC | Distance |
|---|---|---|---|
| Ore | 5021 | ORE | 0.95 KM |
| Hastings | 5219 | HGS | 2.68 KM |
| Three Oaks | 5028 | TOK | 4.27 KM |
| St Leonards Warrior Square | 5239 | SLQ | 4.50 KM |
| Doleham | 5036 | DLH | 6.06 KM |
Nearby Listings
| Address | Price | Type | Score | Distance |
|---|---|---|---|---|
| Ashburnham Road, Hastings | £ 600,000 | BUY | 7 / 10 | 0.00 KM |
| Ashburnham Road, Hastings | £ 195,000 | BUY | 6 / 10 | 0.03 KM |
| Ashburnham Road, Hastings | £ 152,000 | BUY | 6 / 10 | 0.03 KM |
| Ashburnham Road, Hastings, TN35 | £ 600,000 | BUY | Unknown | 0.06 KM |
| Godwin Road, Hastings | £ 995,000 | BUY | 8 / 10 | 0.06 KM |
Nearby Properties
| Address | Price | Distance |
|---|---|---|
| 18 Ashburnham Road | £ 285,000 | 0.07 KM |
| 31 Ashburnham Road | £ 250,000 | 0.07 KM |
| 1 Ashburnham Road | £ 695,000 | 0.07 KM |
| 23 Ashburnham Road | £ 50,000 | 0.07 KM |
| 1a Ashburnham Road | £ 134,000 | 0.07 KM |