St. Judes Road, Englefield Green, Egham, Surrey, TW20
By Nevin and Wells Residential
£ 365,000
Reviews
3 out of 5 stars
Nevin and Wells Residential says ..
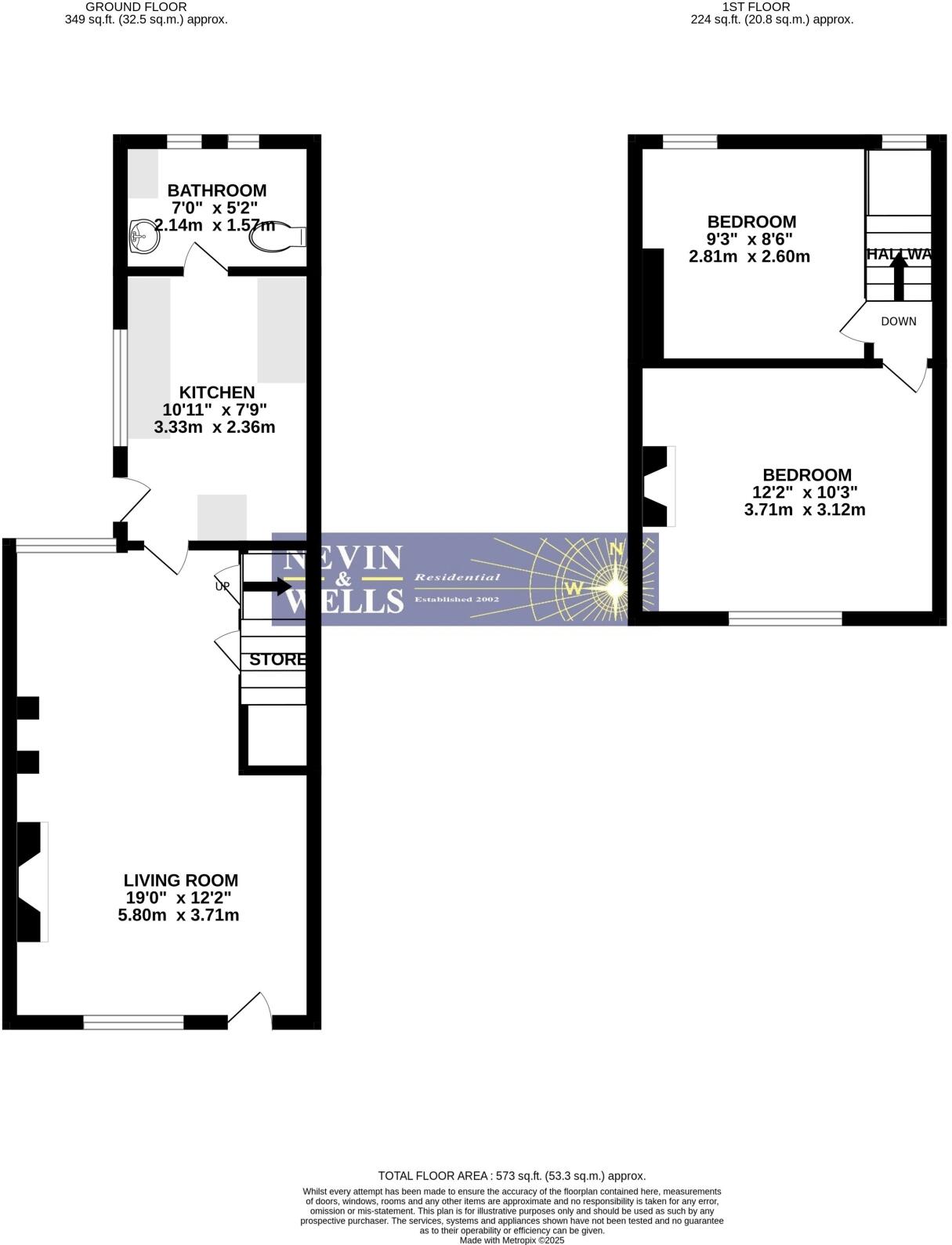
Built in 1822 is this charming character cottage situated in the heart of Englefield Green village, just yards from local shops, public transport facilities, Savill Gardens and RHUL. Accommodation comprises 19ft living/dining room, kitchen, bathroom, two bedrooms, a private rear garden a...
Property Oracle says ..
This property is a 2 bedroom cottage located in Englefield Green, Surrey. The property is situated in a desirable location with good access to local schools and transportation links. The average house price in the area is significantly higher than the list price of this property, suggesting it may be undervalued. However, the property is in need of some modernisation and the plot size is small, which may impact its overall value. The property benefits from a small garden.
Therefore, we give this property 6 / 10. *Disclaimer: This is our option and does constitute a recommendation or financial advice. Do your own research. *
- Price
- 7
- Condition
- 6
- Location
- 8
- Land
- 4
- Bedrooms
- 2
- Bathrooms
- 1
- Sqft (est)
- 573.72
The heatmap indicates the level of crime in the area. The color of the heatmap indicates the crime severity and recency.
Metrics Year-on-Year
- Average area value
- 1,728,750.00 £Increased by 34.66 %
- Est sale value
- 1,628,217.36 £Increased by 274.90 %
- Average area rental value
- 1,871.00 £/moDecreased by 11.41 %
- Est letting value
- 1,721.16 £/moIncreased by 200.00 %
- Est rental Yield
- 1.30 %Decreased by 34.01 %
- Crime Rate
- 17.00 %Unchanged by 0.00 %
Agent Activity
Nevin and Wells Residential created the listing.
Nearby Schools
| Name | Type | Ofsted | Distance |
|---|---|---|---|
| St Jude'S Church Of England Junior School | Voluntary Aided School | Good | 0.17 KM |
| St Cuthbert'S Catholic Primary School, Englefield Green | Voluntary Aided School | Outstanding | 0.24 KM |
| St Peter'S Centre | Pupil Referral Unit | Outstanding | 0.42 KM |
| Royal Holloway And Bedford New College | Higher Education Institutions | 0.55 KM | |
| Haven At Englefield Green Sure Start Children'S Centre | Children's Centre Linked Site | 0.65 KM |
Images
Nearby Streets
| Name | Average Price | Average Sqft | Distance |
|---|---|---|---|
| Clarence Street | £ 0 | 0 | 0.00 KM |
| Clarence Street | £ 0 | 0 | 0.00 KM |
| The Green | £ 0 | 0 | 0.00 KM |
| Kinburn Drive | £ 0 | 0 | 0.00 KM |
| Magna Carta Park | £ 0 | 0 | 0.00 KM |
Nearby Transport
| Name | NLC | TLC | Distance |
|---|---|---|---|
| Egham | 5669 | EGH | 2.86 KM |
| Virginia Water | 5676 | VIR | 2.89 KM |
| Wraysbury | 5673 | WRY | 4.88 KM |
| Sunnymeads | 5675 | SNY | 5.15 KM |
| Longcross | 5674 | LNG | 5.16 KM |
Nearby Listings
| Address | Price | Type | Score | Distance |
|---|---|---|---|---|
| St. Judes Road, Englefield Green, Egham, Surrey, TW20 | £ 365,000 | BUY | 6 / 10 | 0.00 KM |
| St. Judes Road, Englefield Green, Egham, Surrey, TW20 | £ 595,000 | BUY | 7 / 10 | 0.01 KM |
| St. Judes Road, Englefield Green, Egham, Surrey, TW20 | £ 550,000 | BUY | 5 / 10 | 0.02 KM |
| Victoria Mews, St. Judes Road, Englefield Green, Egham, TW20 | £ 310,000 | BUY | 6 / 10 | 0.09 KM |
| Bagshot Road, Englefield Green, Egham, Surrey | £ 1,575,000 | BUY | 7 / 10 | 0.10 KM |
Nearby Properties
| Address | Price | Distance |
|---|---|---|
| 49 St Judes Road | £ 421,000 | 0.00 KM |
| 61 St Judes Road | £ 247,500 | 0.00 KM |
| 52 St Judes Road | £ 218,000 | 0.00 KM |
| 51 St Judes Road | £ 350,000 | 0.00 KM |
| 57 St Judes Road | £ 470,000 | 0.00 KM |