Winkworth says ..
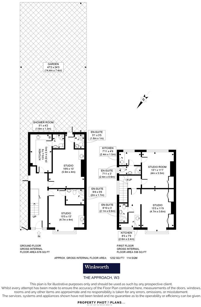
A semi-detached freehold house, currently configured as four self-contained studios.
Property Oracle says ..
This property is a four bedroom semi-detached house located on Taylor’s Green in East Acton, Ealing. The property benefits from being close to several well-regarded schools such as John Perryn Primary School and East Acton Primary School, both rated as “Good” by Ofsted. Transport links are also convenient, with Acton Main Line and Acton Central stations within a reasonable distance. The property itself appears to be in need of some modernisation, as seen in the provided images. The kitchen and bathrooms look dated and could benefit from an upgrade. The garden is visible in the images and appears to be of average size for a property of this type in the area. While the list price is higher than the average price for the area, the property’s size (1,227 sq ft) is larger than the average (931 sq ft), and the additional bedrooms and bathrooms may justify the higher cost. However, potential buyers should factor in the cost of renovations to bring the property up to a modern standard.
Therefore, we give this property 6 / 10. *Disclaimer: This is our option and does constitute a recommendation or financial advice. Do your own research. *
- Price
- 7
- Condition
- 6
- Location
- 8
- Land
- 5
- Bedrooms
- 4
- Bathrooms
- 4
- Sqft (est)
- 1,227.09
The heatmap indicates the level of crime in the area. The color of the heatmap indicates the crime severity and recency.
Metrics Year-on-Year
- Average area value
- 602,363.00 £Decreased by 3.66 %
- Est sale value
- 936,269.67 £Increased by 25.49 %
- Average area rental value
- 2,309.00 £/moIncreased by 9.48 %
- Est letting value
- 2,454.18 £/moUnchanged by 0.00 %
- Est rental Yield
- 4.60 %Increased by 13.58 %
- Crime Rate
- 2.00 %Unchanged by 0.00 %
Agent Activity
Winkworth created the listing.
Nearby Schools
| Name | Type | Ofsted | Distance |
|---|---|---|---|
| John Perryn Primary School | Community School | Good | 0.18 KM |
| King Fahad Academy | Other Independent School | 0.89 KM | |
| East Acton Primary School | Community School | Good | 0.90 KM |
| Old Oak Primary School | Community School | Good | 1.13 KM |
| North West London Independent Special School | Other Independent Special School | Outstanding | 1.24 KM |
Images
Nearby Streets
| Name | Average Price | Average Sqft | Distance |
|---|---|---|---|
| Taylor's Green | £ 0 | 0 | 0.00 KM |
| St. Andrews Road | £ 0 | 0 | 0.00 KM |
| A4000 | £ 0 | 0 | 0.00 KM |
| Glendun Court | £ 0 | 0 | 0.00 KM |
| Union Way | £ 0 | 0 | 0.00 KM |
Nearby Transport
| Name | NLC | TLC | Distance |
|---|---|---|---|
| Acton Main Line | 3000 | AML | 1.43 KM |
| Acton Central | 1404 | ACC | 1.53 KM |
| Willesden Junction | 1457 | WIJ | 1.81 KM |
| Harlesden | 1521 | HDN | 1.95 KM |
| South Acton | 1452 | SAT | 2.81 KM |
Nearby Listings
| Address | Price | Type | Score | Distance |
|---|---|---|---|---|
| Long Drive, London | £ 430,000 | BUY | 5 / 10 | 0.08 KM |
| Long Drive, East Acton, London, W3 7PL | £ 430,000 | BUY | 5 / 10 | 0.08 KM |
| Taylors Green, London | £ 1,200,000 | BUY | Unknown | 0.08 KM |
| Taylors Green, London | £ 1,200,000 | BUY | 6 / 10 | 0.10 KM |
| Long Drive, Acton | £ 575,000 | BUY | Unknown | 0.10 KM |
Nearby Properties
| Address | Price | Distance |
|---|---|---|
| 24 Taylors Green | £ 305,000 | 0.02 KM |
| 16 Taylors Green | £ 303,000 | 0.02 KM |
| 21 Taylors Green | £ 620,000 | 0.02 KM |
| 18 Taylors Green | £ 245,000 | 0.02 KM |
| 40 Long Drive | £ 80,000 | 0.08 KM |