Bishops Court, Bishopsteignton, TQ14
By Dart & Partners
£ 155,000
Reviews
2 out of 5 stars
Dart & Partners says ..
A retirement bungalow for the over 55’s on a sought after development in Bishopsteignton.
Property Oracle says ..
Bishopsteignton is a small village located in the Teignbridge district of Devon, England. The property is a terraced bungalow situated on Bishops Court. While the provided data lacks specific details on square footage and plot size, its location offers proximity to Bishopsteignton School (rated ‘Good’ by Ofsted) and several other schools within a reasonable distance. Train stations are also within a reasonable distance. This contributes positively to its overall desirability.
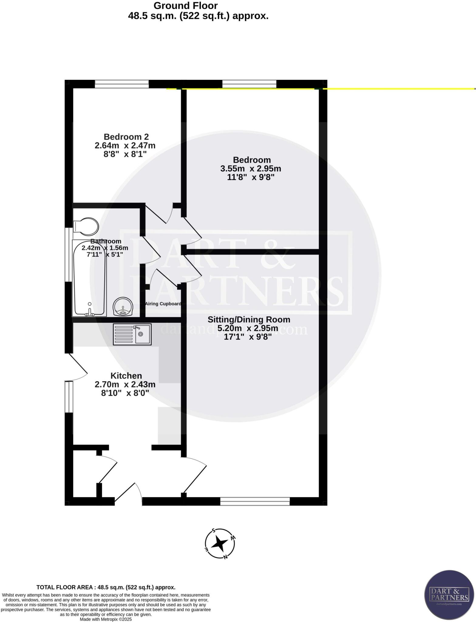
Based on the images, the property appears to be in reasonable condition, though some updating or modernisation may be needed. The kitchen and bathroom seem functional but dated. The flooring in some rooms is simple and may require updating. The exterior is presentable but not outstanding. There is a small paved patio area, which provides some outdoor space, though it’s not extensive.
Considering the average house price in the area is significantly higher (357,857) than the listing price of this property (155,000), and given the smaller size and condition of the property, the price appears relatively reasonable, particularly in comparison to similar properties in the area such as those on Bishops Court itself. However, the lack of precise square footage data prevents a more detailed price-per-square-foot analysis.
The property benefits from a relatively convenient location, close to local amenities and schools, and offers a small outdoor space. While some modernisation is likely needed, the price point appears competitive within the local market.
Therefore, we give this property 5 / 10. *Disclaimer: This is our option and does constitute a recommendation or financial advice. Do your own research. *
- Price
- 7
- Condition
- 6
- Location
- 7
- Land
- 3
- Bedrooms
- 2
- Bathrooms
- 1
The heatmap indicates the level of crime in the area. The color of the heatmap indicates the crime severity and recency.
Metrics Year-on-Year
- Average area value
- 305,488.00 £Decreased by 9.52 %
- Average area rental value
- 1,004.00 £/moDecreased by 1.08 %
- Est rental Yield
- 3.94 %Increased by 9.14 %
- Crime Rate
- 33.00 %Unchanged by 0.00 %
Agent Activity
Dart & Partners created the listing.
Nearby Schools
| Name | Type | Ofsted | Distance |
|---|---|---|---|
| Bishopsteignton School | Community School | Good | 0.56 KM |
| Teignmouth Community School, Mill Lane | Academy Converter | Good | 2.93 KM |
| Teignmouth Children'S Centre | Children's Centre | 3.35 KM | |
| Dawlish Children'S Centre | Children's Centre | 3.35 KM | |
| Our Lady And St Patrick'S Roman Catholic Primary School | Academy Sponsor Led | Good | 3.41 KM |
Images
Nearby Streets
| Name | Average Price | Average Sqft | Distance |
|---|---|---|---|
| The Orchard | £ 435,000 | 0 | 0.00 KM |
| The Haven | £ 0 | 0 | 0.00 KM |
| West Street | £ 0 | 0 | 0.00 KM |
Nearby Transport
| Name | NLC | TLC | Distance |
|---|---|---|---|
| Teignmouth | 3430 | TGM | 5.17 KM |
| Newton Abbot | 3426 | NTA | 6.92 KM |
| Torre | 3432 | TRR | 8.87 KM |
| Dawlish | 3408 | DWL | 9.01 KM |
Nearby Listings
| Address | Price | Type | Score | Distance |
|---|---|---|---|---|
| Bishops Court, Bishopsteignton, TQ14 | £ 155,000 | BUY | 5 / 10 | 0.00 KM |
| Bishops Court, Bishopsteignton, TQ14 | £ 125,000 | BUY | 7 / 10 | 0.05 KM |
| Bishops Court, Bishopsteignton, TQ14 9RS | £ 170,000 | BUY | Unknown | 0.05 KM |
| Shute Hill, Bishopsteignton, TQ14 | £ 360,000 | BUY | 7 / 10 | 0.11 KM |
| Fore Street, Bishopsteignton, Teignmouth, Devon, TQ14 | £ 190,000 | BUY | 6 / 10 | 0.14 KM |
Nearby Properties
| Address | Price | Distance |
|---|---|---|
| 7 Bishops Court | £ 115,000 | 0.05 KM |
| 15 Bishops Court | £ 124,950 | 0.05 KM |
| 20 Bishops Court | £ 130,000 | 0.05 KM |
| 10 Bishops Court | £ 170,000 | 0.05 KM |
| 17 Bishops Court | £ 100,000 | 0.05 KM |