Earlshall Road, London
By Matthew James & Company
£ 555,000
Reviews
3 out of 5 stars
Matthew James & Company says ..
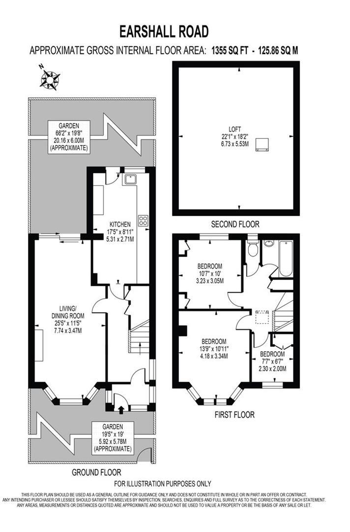
We are pleased to present this three bedroom semi detached house featuring a nice through lounge and sizeable rear garden. The property requires updating but would make a wonderful family home in this lovely location within the heart of Eltham Park just a short walk to shops, mainline station and...
Property Oracle says ..
This semi-detached property on Earlshall Road, Eltham North, presents a good opportunity for buyers looking to renovate and add value. The location is desirable, with proximity to schools and transport links. While the property requires significant work internally and the garden needs attention, the asking price reflects this, making it an attractive proposition for those willing to invest in improvements.
Therefore, we give this property 6 / 10. *Disclaimer: This is our option and does constitute a recommendation or financial advice. Do your own research. *
- Price
- 7
- Condition
- 4
- Location
- 7
- Land
- 6
- Bedrooms
- 3
- Bathrooms
- 1
- Sqft (est)
- 2,820.36
The heatmap indicates the level of crime in the area. The color of the heatmap indicates the crime severity and recency.
Metrics Year-on-Year
- Average area value
- 582,857.00 £Decreased by 8.06 %
- Est sale value
- 2,538,324.00 £Increased by 66.98 %
- Average area rental value
- 1,700.00 £/moDecreased by 10.85 %
- Est letting value
- 5,640.72 £/moIncreased by 100.00 %
- Est rental Yield
- 3.50 %Decreased by 3.05 %
- Crime Rate
- 0.00 %
Agent Activity
Matthew James & Company created the listing.
Nearby Schools
| Name | Type | Ofsted | Distance |
|---|---|---|---|
| Deansfield Primary School | Academy Converter | 0.34 KM | |
| St Mary'S Catholic Primary School | Academy Converter | 0.66 KM | |
| Gordon Primary School | Community School | Good | 0.92 KM |
| Social Arts For Education | Other Independent Special School | 0.94 KM | |
| Children'S Centre Services At Eltham Centre | Children's Centre Linked Site | 1.06 KM |
Images
Nearby Streets
| Name | Average Price | Average Sqft | Distance |
|---|---|---|---|
| Littlecroft | £ 0 | 0 | 0.00 KM |
| Blunts Road | £ 450,000 | 0 | 0.00 KM |
| Elm Terrace | £ 0 | 0 | 0.00 KM |
| Fairlands Court | £ 325,000 | 0 | 0.00 KM |
| Glenlea Path | £ 0 | 0 | 0.00 KM |
Nearby Transport
| Name | NLC | TLC | Distance |
|---|---|---|---|
| Eltham | 5103 | ELW | 1.21 KM |
| Falconwood | 5137 | FCN | 1.83 KM |
| New Eltham | 5119 | NEH | 2.52 KM |
| Mottingham | 5118 | MTG | 2.55 KM |
| Woolwich Arsenal | 5152 | WWA | 3.47 KM |
Nearby Listings
| Address | Price | Type | Score | Distance |
|---|---|---|---|---|
| Earlshall Road, London | £ 555,000 | BUY | 6 / 10 | 0.00 KM |
| Glenesk Road, Eltham, London, SE9 | £ 625,000 | BUY | 7 / 10 | 0.13 KM |
| Greenvale Road, SE9 | £ 875,000 | BUY | 7 / 10 | 0.16 KM |
| Elibank Road, SE9 | £ 625,000 | BUY | 7 / 10 | 0.18 KM |
| Dumbreck Road, Eltham, SE9 | £ 740,000 | BUY | 6 / 10 | 0.18 KM |
Nearby Properties
| Address | Price | Distance |
|---|---|---|
| 125 Glenesk Road | £ 249,995 | 0.07 KM |
| 105 Glenesk Road | £ 535,000 | 0.07 KM |
| 131 Glenesk Road | £ 460,000 | 0.07 KM |
| 84 Glenesk Road | £ 460,000 | 0.07 KM |
| 123 Glenesk Road | £ 217,500 | 0.07 KM |