Glasshouse Lane, Kenilworth, CV8 2DF
MI

Glasshouse Lane, Kenilworth, CV8 2DF

By Miller Homes Midlands

£ 480,000

Reviews

4 out of 5 stars

Miller Homes Midlands says ..

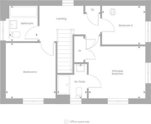
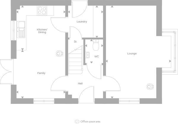
The Eaton - Plot 10 with *UPGRADED KITCHEN, APPLIANCES & FLOORING THROUGHOUT* Beautiful family home with 18FT lounge & bay window, kitchen/diner, LAUNDRY ROOM, principal bedroom EN-SUITE, GARAGE.

Property Oracle says ..

Kenilworth is a highly desirable town in Warwickshire, known for its excellent schools, beautiful surroundings, and convenient access to amenities and transport links. The property’s proximity to Kenilworth School and Sixth Form, Park Hill Junior School, and other well-regarded schools is a significant advantage, making it attractive to families. The nearby train station provides easy access to Leamington Spa and Warwick, further enhancing its appeal.

The property itself appears to be in excellent condition, with modern fixtures and fittings throughout. The images show a recently built home with a contemporary design and high-quality finishes. There is evidence of a well-maintained garden, adding to the overall desirability of the property.

Considering the average price per square foot in the area is £402, and this property is listed at £480,000 for 750 sqft (£640 per sqft), the list price appears slightly above the average. However, the property’s modern condition, desirable location, and inclusion of a garden could justify the higher price per square foot. The higher price may also reflect the fact that it is a new build property. Further analysis of comparable properties in the immediate vicinity would be necessary to definitively assess the price’s reasonableness.

Based on the provided images, the property includes a LAUNDRY and a PATIO. It is a MODERN property.

Therefore, we give this property 8 / 10. *Disclaimer: This is our option and does constitute a recommendation or financial advice. Do your own research. *

Price
7
Condition
10
Location
10
Land
8
Bedrooms
3
Bathrooms
0
Sqft (est)
750.00

The heatmap indicates the level of crime in the area. The color of the heatmap indicates the crime severity and recency.

Metrics Year-on-Year

Average area value
450,680.00 £
Increased by 2.66 %
from 438,987.00 £
Est sale value
353,250.00 £
Increased by 11.61 %
from 316,500.00 £
Average area rental value
1,290.00 £/mo
Increased by 8.77 %
from 1,186.00 £/mo
Est letting value
750.00 £/mo
Unchanged by 0.00 %
from 750.00 £/mo
Est rental Yield
3.43 %
Increased by 5.86 %
from 3.24 %
Crime Rate
22.00 %
Unchanged by 0.00 %
from 22.00 %

Agent Activity

  • Miller Homes Midlands created the listing.

Nearby Schools

NameTypeOfstedDistance
Kenilworth School And Sixth FormAcademy Converter0.48 KM
Park Hill Junior SchoolCommunity SchoolGood0.50 KM
Thorns Community Infant SchoolCommunity SchoolGood1.51 KM
Crackley Hall SchoolOther Independent School1.55 KM
St Nicholas Cofe Primary SchoolVoluntary Controlled SchoolGood2.16 KM

Images

Representative image Representative image Representative image Representative image Representative image Representative image Representative image Representative image Representative image Representative image Representative image Representative image Representative image Representative image Representative image Representative image Representative image Representative image

Nearby Streets

NameAverage PriceAverage SqftDistance
Cannadine Road £ 375,00000.00 KM
Hidcote Road £ 000.00 KM
Dalebrook Place £ 000.00 KM
Millbrook Lane £ 000.00 KM
Oakley Road £ 000.00 KM

Nearby Transport

NameNLCTLCDistance
Kenilworth7985KNW1.94 KM
Canley1129CNL5.81 KM
Tile Hill1035THL6.96 KM
Leamington Spa4597LMS7.36 KM
Warwick4600WRW7.38 KM

Nearby Listings

AddressPriceTypeScoreDistance
Glasshouse Lane, Kenilworth, CV8 2DF £ 480,000BUY8 / 100.00 KM
Glasshouse Lane, Kenilworth, CV8 2DF £ 475,000BUY8 / 100.00 KM
Wisley Grove, Kenilworth, CV8 £ 525,000BUY7 / 100.00 KM
Rawnsley Drive, Kenilworth £ 625,000BUY7 / 100.05 KM
Leyes Lane, Kenilworth £ 550,000BUYUnknown0.08 KM

Nearby Properties

AddressPriceDistance
6 Wisley Grove £ 367,2500.00 KM
2 Wisley Grove £ 331,5000.00 KM
5 Wisley Grove £ 340,0000.00 KM
52 Leyes Lane £ 270,0000.08 KM
40 Leyes Lane £ 165,0000.08 KM