harveyrobinson says ..
We are proud to bring to market this stunning two bedroom period cottage in central Huntingdon. Location in the heart of Huntingdon, this beautiful period home has been extensively renovated and crafted to preserve it's rustic character charm throughout including exposed beams throughout. The pro...
Property Oracle says ..
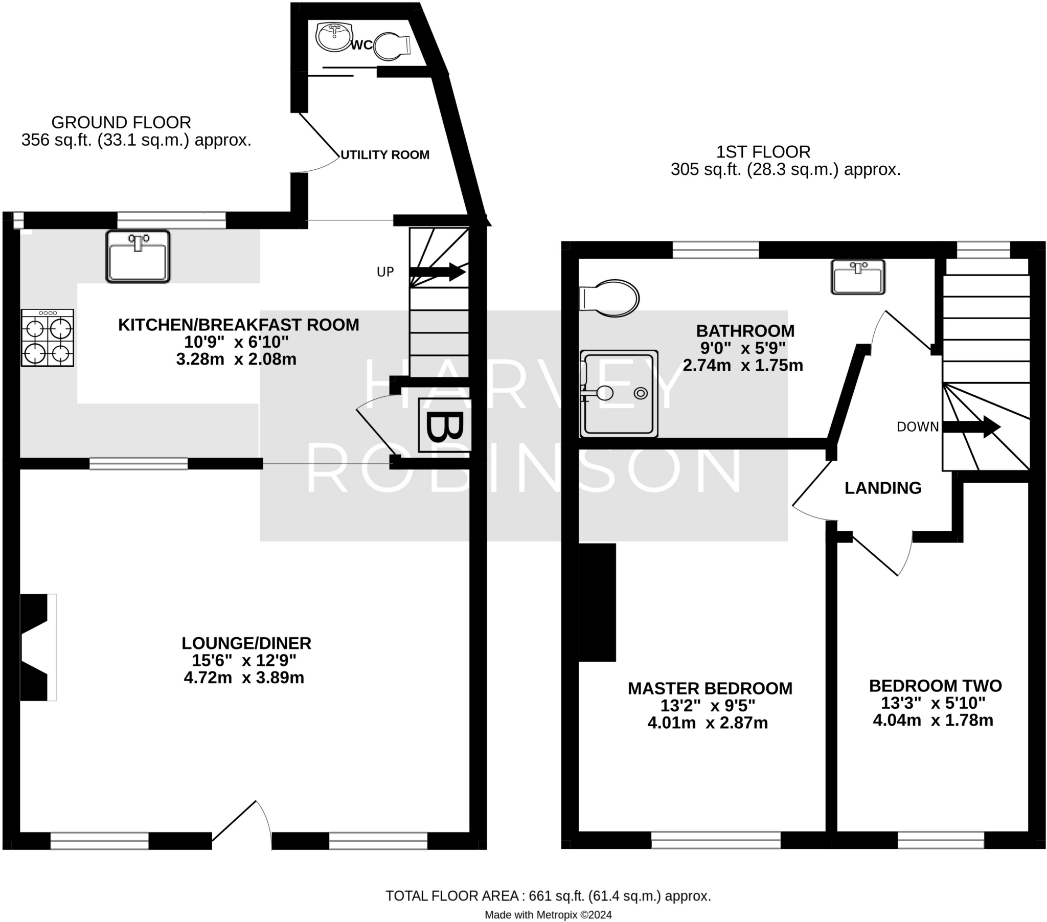
This two-bedroom, one-bathroom property located on Huntingdon’s High Street presents a mixed bag for prospective buyers. The property’s central location is a considerable advantage. Its proximity to Huntingdon’s train station (1.36km) makes commuting convenient, and the presence of several well-rated schools nearby (e.g., Huntingdon Nursery School, rated Outstanding by Ofsted) boosts its family appeal. The photos reveal a recently refurbished or renovated interior with a modern kitchen, a recently updated bathroom, and charming exposed beams providing character.
However, the absence of any outdoor space—a significant drawback for many potential buyers—is a major point of consideration. The property’s size, at 660.90 sqft, is modest for a two-bedroom house, and the lack of information on aspects like parking could be deterrents. In addition, while the list price of £250,000 appears to align with similar nearby properties in the area; the lack of garden space needs to be factored into the overall valuation.
Overall, this property would be best suited to single individuals, couples, or small families who prioritize location and the convenience of living in Huntingdon’s town centre, without being greatly concerned with having outside space. Potential buyers should carefully weigh up the positive aspects of location and recent renovation against the negatives of size and absence of a garden.
Therefore, we give this property 5 / 10. *Disclaimer: This is our option and does constitute a recommendation or financial advice. Do your own research. *
- Price
- 7
- Condition
- 8
- Location
- 7
- Land
- 1
- Bedrooms
- 2
- Bathrooms
- 1
- Sqft (est)
- 660.90
The heatmap indicates the level of crime in the area. The color of the heatmap indicates the crime severity and recency.
Metrics Year-on-Year
- Average area value
- 234,964.00 £Increased by 5.47 %
- Est sale value
- 220,740.60 £Increased by 22.34 %
- Average area rental value
- 1,004.00 £/moDecreased by 11.78 %
- Est letting value
- 660.90 £/moUnchanged by 0.00 %
- Est rental Yield
- 5.13 %Decreased by 16.31 %
- Crime Rate
- 21.00 %Unchanged by 0.00 %
Agent Activity
harveyrobinson marked this listing as sold.
harveyrobinson created the listing.
Nearby Schools
| Name | Type | Ofsted | Distance |
|---|---|---|---|
| Godmanchester Community Academy | Academy Converter | Good | 0.92 KM |
| Huntingdon Primary School | Community School | Good | 1.08 KM |
| Huntingdon Child And Family Centre | Children's Centre | 1.08 KM | |
| Huntingdon Nursery School | Local Authority Nursery School | Outstanding | 1.08 KM |
| Spring Common Academy | Academy Special Converter | Outstanding | 1.32 KM |
Images
Nearby Streets
| Name | Average Price | Average Sqft | Distance |
|---|---|---|---|
| Castle Hill Lane | £ 130,000 | 0 | 0.00 KM |
| Castle Hill | £ 385,000 | 0 | 0.00 KM |
| Priory Grove | £ 0 | 0 | 0.00 KM |
| The Avenue | £ 0 | 0 | 0.00 KM |
| Princes Street | £ 190,000 | 0 | 0.00 KM |
Nearby Transport
| Name | NLC | TLC | Distance |
|---|---|---|---|
| Huntingdon | 6108 | HUN | 1.36 KM |
Nearby Listings
| Address | Price | Type | Score | Distance |
|---|---|---|---|---|
| High Street, Huntingdon | £ 250,000 | BUY | 5 / 10 | 0.00 KM |
| 4 High Street, Huntingdon, Cambs, PE29 | £ 120,000 | BUY | 5 / 10 | 0.01 KM |
| High Street, Huntingdon | £ 240,000 | BUY | 6 / 10 | 0.01 KM |
| Castle Hill Court, Huntingdon | £ 325,000 | BUY | 8 / 10 | 0.04 KM |
| Flat 2, Millard House, High Street, Huntingdon, Cambridgeshire, PE29 3YW | £ 80,000 | BUY | 4 / 10 | 0.05 KM |
Nearby Properties
| Address | Price | Distance |
|---|---|---|
| 12 High Street | £ 100,000 | 0.02 KM |
| 6 High Street | £ 125,000 | 0.02 KM |
| 10 High Street | £ 430,000 | 0.02 KM |
| 14 High Street | £ 112,000 | 0.02 KM |
| 7a High Street | £ 120,000 | 0.03 KM |