Avon Street, Oldham
COUSINS ESTATE AGENTS logo

Avon Street, Oldham

By COUSINS ESTATE AGENTS

£ 140,000

Reviews

2 out of 5 stars

COUSINS ESTATE AGENTS says ..

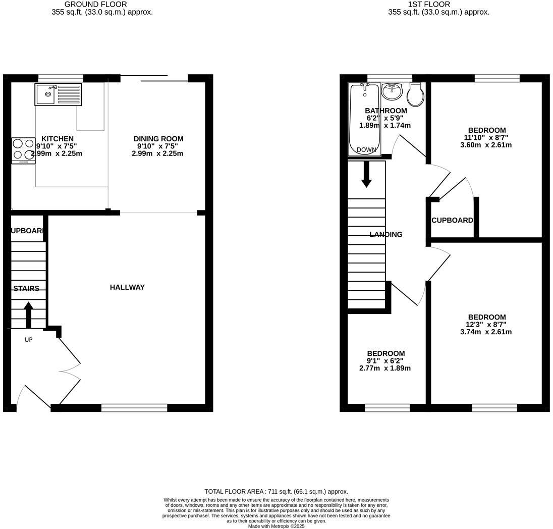
Cousins Estate agents are pleased to present this spacious family home situated on Avon Street in Oldham, this mid-terrace house presents an excellent opportunity for families and professionals alike. With some renovation work necessary, the three well-proportioned bedrooms, and a family bathroom...

Property Oracle says ..

This is a terraced property in Oldham, Greater Manchester, with three bedrooms and one bathroom. The property requires extensive renovation, as evidenced by the collapsed kitchen ceiling and the poor condition of the bathroom. While the property includes a garden, it is currently overgrown and needs landscaping. On a positive note, the property is located within 1km of three schools with ‘Good’ Ofsted ratings. The listing price of £140,000 is significantly lower than the average price in the area, likely reflecting the property’s condition. The average price per sqft in Oldham is £574, while this property is listed at £65 per sqft.

Therefore, we give this property 5 / 10. *Disclaimer: This is our option and does constitute a recommendation or financial advice. Do your own research. *

Price
7
Condition
2
Location
6
Land
6
Bedrooms
3
Bathrooms
1
Sqft (est)
2,131.25

The heatmap indicates the level of crime in the area. The color of the heatmap indicates the crime severity and recency.

Metrics Year-on-Year

Average area value
570,435.00 £
Increased by 16.78 %
from 488,470.00 £
Est sale value
1,223,337.50 £
Increased by 21.35 %
from 1,008,081.25 £
Average area rental value
1,562.00 £/mo
Increased by 10.39 %
from 1,415.00 £/mo
Est letting value
2,131.25 £/mo
Unchanged by 0.00 %
from 2,131.25 £/mo
Est rental Yield
3.29 %
Decreased by 5.46 %
from 3.48 %
Crime Rate
3.00 %
Unchanged by 0.00 %
from 3.00 %

Agent Activity

  • COUSINS ESTATE AGENTS created the listing.

Nearby Schools

NameTypeOfstedDistance
Broadfield Primary SchoolFoundation SchoolGood0.15 KM
Medlock Vale Children'S CentreChildren's Centre0.40 KM
The Hathershaw CollegeAcademy ConverterGood0.93 KM
Greenhill AcademyAcademy ConverterGood0.97 KM
The Springboard ProjectFree Schools Special0.99 KM

Images

WhatsApp Image 2025-09-29 at 13.08.33_7fc031de.jpg WhatsApp Image 2025-09-29 at 13.08.32_ce0fa02d.jpg WhatsApp Image 2025-09-29 at 13.08.31_64ccfa21.jpg WhatsApp Image 2025-09-29 at 13.08.33_a2480afc.jpg WhatsApp Image 2025-09-29 at 13.08.32_d81fe5c2.jpg WhatsApp Image 2025-09-29 at 13.08.32_d9dd48c2.jpg WhatsApp Image 2025-09-29 at 13.08.33_21e446c0.jpg WhatsApp Image 2025-09-29 at 13.08.32_5c7b5e81.jpg WhatsApp Image 2025-09-29 at 13.08.31_689fc111.jpg WhatsApp Image 2025-09-29 at 13.08.32_91c8ca76.jpg

Nearby Streets

NameAverage PriceAverage SqftDistance
Avon Street £ 76,00000.00 KM
Pickworth Road £ 000.00 KM
Bute Avenue £ 000.00 KM
Denbigh Street £ 000.00 KM
Manley Road £ 000.00 KM

Nearby Transport

NameNLCTLCDistance
Ashton-Under-Lyne2790AHN4.75 KM
Guide Bridge2955GUI6.25 KM
Moston2973MSO6.72 KM
Mills Hill (Manchester)2920MIH7.10 KM
Stalybridge2983SYB7.38 KM

Nearby Listings

AddressPriceTypeScoreDistance
Avon Street, Oldham £ 140,000BUY5 / 100.00 KM
Ralstone Avenue, Oldham £ 172,500BUY7 / 100.11 KM
Broadway Street, Hathershaw, Oldham, OL8 £ 140,000BUY5 / 100.11 KM
Broadway Street, Oldham £ 100,000BUY4 / 100.13 KM
Ralstone Avenue, Oldham £ 155,000BUY6 / 100.14 KM

Nearby Properties

AddressPriceDistance
17 Estate Street £ 85,0000.01 KM
5 Estate Street £ 58,0000.01 KM
11 Avon Street £ 46,0000.04 KM
15 Avon Street £ 39,0000.04 KM
9 Avon Street £ 22,2500.04 KM