Chetwynd Court, Stafford
By Tinsley-Garner Independent Estate Agents
£ 275,000
Reviews
3 out of 5 stars
Tinsley-Garner Independent Estate Agents says ..
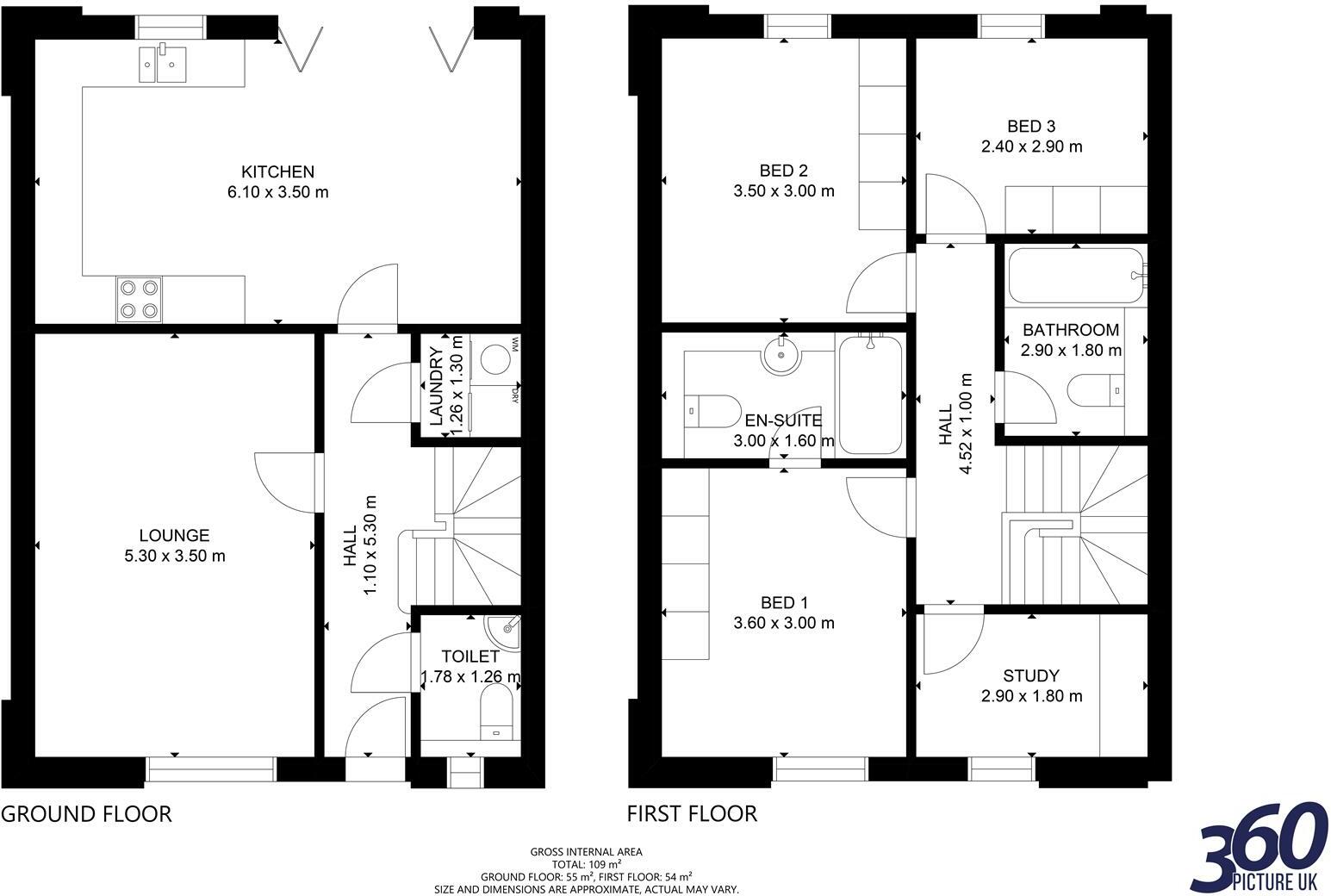
For sale FREEHOLD. Only 4 new build houses remaining. Brand new contemporary style semi-detached and town houses in a courtyard setting on the edge of Stafford town centre, 2 minutes walk to the railway station and a little over 1 mile from Stafford County Hospital. Spacious accommodation featuri...
Property Oracle says ..
This four-bedroom, two-bathroom property at Chetwynd Court in Stafford presents itself as a modern, well-maintained new build or recent renovation. Its location offers convenient access to Stafford town centre and the railway station, making it attractive to commuters and those seeking an urban lifestyle. Several schools within a 1km radius add to family appeal. The property features a contemporary kitchen and bathrooms as well as a small, enclosed rear garden. While the plot size is relatively small, the overall quality and proximity to amenities create a desirable property profile within the Stafford market. The lack of information on square footage and price per square foot for this and similar nearby properties limits a more precise value assessment, but on the basis of comparable nearby listings the price is competitive.
Therefore, we give this property 6 / 10. *Disclaimer: This is our option and does constitute a recommendation or financial advice. Do your own research. *
- Price
- 7
- Condition
- 9
- Location
- 7
- Land
- 4
- Bedrooms
- 4
- Bathrooms
- 2
- Sqft (est)
- 1,173.27
The heatmap indicates the level of crime in the area. The color of the heatmap indicates the crime severity and recency.
Metrics Year-on-Year
- Average area value
- 346,658.00 £Increased by 37.09 %
- Est sale value
- 943,309.08 £Increased by 192.36 %
- Average area rental value
- 860.00 £/moIncreased by 11.11 %
- Est letting value
- 1,173.27 £/mo
- Est rental Yield
- 2.98 %Decreased by 18.80 %
- Crime Rate
- 11.00 %Unchanged by 0.00 %
Agent Activity
Tinsley-Garner Independent Estate Agents marked this listing as sold.
Tinsley-Garner Independent Estate Agents created the listing.
Nearby Schools
| Name | Type | Ofsted | Distance |
|---|---|---|---|
| Bailey Street Alternative Provision Academy | Academy Alternative Provision Sponsor Led | 0.11 KM | |
| St Paul'S Cofe (C) Primary School | Voluntary Controlled School | Outstanding | 0.59 KM |
| St Austin'S Catholic Primary School | Academy Converter | Good | 0.64 KM |
| Blessed William Howard Catholic School | Academy Converter | Good | 0.71 KM |
| John Wheeldon Primary Academy | Academy Sponsor Led | Good | 1.40 KM |
Images
Nearby Streets
| Name | Average Price | Average Sqft | Distance |
|---|---|---|---|
| St Marys Passage | £ 0 | 0 | 0.00 KM |
| Market Square | £ 0 | 0 | 0.00 KM |
| Station Road | £ 0 | 0 | 0.00 KM |
| Earl Street | £ 285,000 | 0 | 0.00 KM |
| Newport Road | £ 0 | 0 | 0.00 KM |
Nearby Transport
| Name | NLC | TLC | Distance |
|---|---|---|---|
| Stafford | 1268 | STA | 0.62 KM |
| Penkridge | 1195 | PKG | 8.76 KM |
Nearby Listings
| Address | Price | Type | Score | Distance |
|---|---|---|---|---|
| Chetwynd Court Stafford | £ 227,500 | BUY | Unknown | 0.00 KM |
| Chetwynd Court, Stafford | £ 270,000 | BUY | 6 / 10 | 0.00 KM |
| Chetwynd Court Stafford | £ 227,500 | BUY | 6 / 10 | 0.00 KM |
| Chetwynd Court, Stafford | £ 275,000 | BUY | 6 / 10 | 0.00 KM |
| Chetwynd Court, Stafford | £ 275,000 | BUY | 7 / 10 | 0.02 KM |
Nearby Properties
| Address | Price | Distance |
|---|---|---|
| 28 Friars Road | £ 130,000 | 0.06 KM |
| 15 Friars Road | £ 59,950 | 0.06 KM |
| 21 Friars Road | £ 157,000 | 0.06 KM |
| 17 Friars Road | £ 118,500 | 0.09 KM |
| 26 Friars Road | £ 75,000 | 0.09 KM |