Bristow Road, Beddington, Surrey. CR0
By Kenyons Estate Agents
£ 550,000
Reviews
2 out of 5 stars
Kenyons Estate Agents says ..
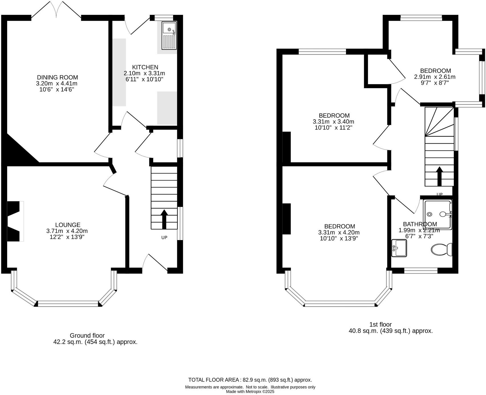
NO CHAIN - A good size 3 bedroom semi-detached family house which is situated in a popular cul-de-sac on the boarders of Beddington and Wallington. Offering 2 reception rooms, kitchen, 3 bedrooms and a shower room. Benefits include and good size garden, gas fired central heating and double glazing.
Property Oracle says ..
This semi-detached property in Beddington, Surrey is listed at £550,000. The property is situated on Bristow Road and benefits from being close to several schools, including High View Primary School (rated good by Ofsted) and Link Primary School (rated outstanding). Transport links are also within reasonable distance, with Waddon station approximately 1.45km away. The property itself is a three-bedroom, one-bathroom house with 892.33 sqft of living space. Based on the images, the property appears to be in need of some modernisation and updating. The kitchen shows signs of wear and tear, and some rooms require redecoration and potentially some repairs. The garden is present but appears somewhat unkempt and requires attention. Compared to the average price of £502,833 and average price per sqft of £468 in the area, the listed price of £550,000 seems slightly on the higher side, considering the condition of the property. However, the proximity to good schools and transport links could justify a slightly higher price.
Therefore, we give this property 5 / 10. *Disclaimer: This is our option and does constitute a recommendation or financial advice. Do your own research. *
- Price
- 6
- Condition
- 4
- Location
- 7
- Land
- 5
- Bedrooms
- 3
- Bathrooms
- 1
- Sqft (est)
- 892.33
The heatmap indicates the level of crime in the area. The color of the heatmap indicates the crime severity and recency.
Metrics Year-on-Year
- Average area value
- 393,750.00 £Decreased by 16.75 %
- Est sale value
- 567,521.88 £Increased by 10.03 %
- Average area rental value
- 2,150.00 £/moIncreased by 26.03 %
- Est letting value
- 2,676.99 £/moIncreased by 50.00 %
- Est rental Yield
- 6.55 %Increased by 51.27 %
- Crime Rate
- 1.00 %Unchanged by 0.00 %
Agent Activity
Kenyons Estate Agents created the listing.
Nearby Schools
| Name | Type | Ofsted | Distance |
|---|---|---|---|
| High View Primary School | Foundation School | Good | 0.32 KM |
| High View A Sure Start Children'S Centre | Children's Centre | 0.32 KM | |
| Link Primary School | Academy Special Converter | Outstanding | 0.34 KM |
| Link Secondary School | Academy Special Converter | 0.72 KM | |
| Wilson'S School | Academy Converter | 0.76 KM |
Images
Nearby Streets
| Name | Average Price | Average Sqft | Distance |
|---|---|---|---|
| Plough Lane | £ 0 | 0 | 0.00 KM |
| Central Avenue | £ 0 | 0 | 0.00 KM |
| East Avenue | £ 0 | 0 | 0.00 KM |
| Queen Elizabeth's Walk | £ 0 | 0 | 0.00 KM |
| Aldwick Road | £ 585,000 | 0 | 0.00 KM |
Nearby Transport
| Name | NLC | TLC | Distance |
|---|---|---|---|
| Waddon | 5392 | WDO | 1.45 KM |
| Wallington | 5394 | WLT | 2.34 KM |
| Hackbridge | 5364 | HCB | 2.96 KM |
| West Croydon | 5411 | WCY | 3.39 KM |
| Purley | 5379 | PUR | 3.57 KM |
Nearby Listings
| Address | Price | Type | Score | Distance |
|---|---|---|---|---|
| Bristow Road, Beddington, Surrey. CR0 | £ 550,000 | BUY | 5 / 10 | 0.00 KM |
| Bristow Road, CROYDON, Surrey, CR0 | £ 550,000 | BUY | 6 / 10 | 0.00 KM |
| Bristow Road, Beddington | £ 525,000 | BUY | 6 / 10 | 0.01 KM |
| Bristow Road, Beddington, Surrey | £ 373,500 | BUY | 7 / 10 | 0.02 KM |
| Bristow Road, Beddington, Surrey | £ 565,000 | BUY | 6 / 10 | 0.02 KM |
Nearby Properties
| Address | Price | Distance |
|---|---|---|
| 6 Bristow Road | £ 562,500 | 0.00 KM |
| 75 Bristow Road | £ 366,000 | 0.00 KM |
| 41 Bristow Road | £ 306,000 | 0.00 KM |
| 22 Bristow Road | £ 445,000 | 0.00 KM |
| 65 Bristow Road | £ 210,000 | 0.00 KM |