Henry Adams says ..
Stylish four-bedroom Bellway home featuring a spacious kitchen diner, cosy snug, landscaped south-facing garden, electric garage, and premium upgrades throughout.
Property Oracle says ..
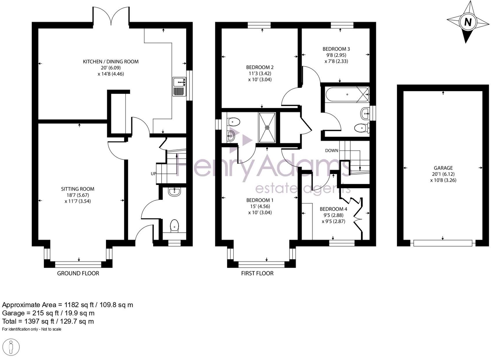
This detached property on Normandy Way in Havant presents a modern living space with four bedrooms and two bathrooms. The house is in excellent condition, featuring a well-maintained interior and a neatly landscaped garden. The location offers proximity to schools and transportation, making it suitable for families and commuters. However, the listing price of £550,000 appears somewhat high compared to the average price per square foot in the area, which could affect its market appeal. The property includes parking and a garage, adding to its convenience.
Therefore, we give this property 7 / 10. *Disclaimer: This is our option and does constitute a recommendation or financial advice. Do your own research. *
- Price
- 6
- Condition
- 9
- Location
- 7
- Land
- 7
- Bedrooms
- 4
- Bathrooms
- 2
- Sqft (est)
- 104.40
The heatmap indicates the level of crime in the area. The color of the heatmap indicates the crime severity and recency.
Metrics Year-on-Year
- Average area value
- 354,000.00 £Decreased by 21.23 %
- Est sale value
- 36,853.20 £Decreased by 9.49 %
- Average area rental value
- 1,321.00 £/moIncreased by 24.62 %
- Est letting value
- 104.40 £/mo
- Est rental Yield
- 4.48 %Increased by 58.30 %
- Crime Rate
- 10.00 %Unchanged by 0.00 %
Agent Activity
Henry Adams created the listing.
Nearby Schools
| Name | Type | Ofsted | Distance |
|---|---|---|---|
| Sharps Copse Primary And Nursery School | Community School | Good | 0.87 KM |
| Sharps Copse And Park Futures Children'S Centre | Children's Centre | 0.98 KM | |
| St Alban'S Church Of England Aided Primary School | Voluntary Aided School | Good | 1.31 KM |
| Havant Academy | Academy Sponsor Led | Good | 1.57 KM |
| Warblington School | Community School | Good | 1.58 KM |
Images
Nearby Streets
| Name | Average Price | Average Sqft | Distance |
|---|---|---|---|
| Wren Grove | £ 279,500 | 0 | 0.00 KM |
| Gold Street | £ 347,500 | 0 | 0.00 KM |
| Bartons Road | £ 0 | 0 | 0.00 KM |
| Anchor Lane | £ 0 | 0 | 0.00 KM |
| Oakfield Court | £ 278,750 | 0 | 0.00 KM |
Nearby Transport
| Name | NLC | TLC | Distance |
|---|---|---|---|
| Warblington | 5264 | WBL | 1.43 KM |
| Havant | 5532 | HAV | 2.49 KM |
| Emsworth | 5257 | EMS | 3.00 KM |
| Rowlands Castle | 5658 | RLN | 3.04 KM |
| Bedhampton | 5538 | BDH | 3.96 KM |
Nearby Listings
| Address | Price | Type | Score | Distance |
|---|---|---|---|---|
| Normandy Way, PO9 | £ 550,000 | BUY | 7 / 10 | 0.00 KM |
| Wren Grove, Havant | £ 320,000 | BUY | 7 / 10 | 0.10 KM |
| Normandy Way, Havant | £ 415,000 | BUY | 8 / 10 | 0.12 KM |
| Admiralty Crescent, Havant, Hampshire, PO9 | £ 435,000 | BUY | 6 / 10 | 0.16 KM |
| Bartons Road, Havant | £ 475,000 | BUY | 6 / 10 | 0.18 KM |
Nearby Properties
| Address | Price | Distance |
|---|---|---|
| Long Meadow | £ 770,000 | 0.17 KM |
| Eastleigh House | £ 1,450,000 | 0.17 KM |
| The Laurels | £ 470,000 | 0.17 KM |
| 36 Japonica Way | £ 235,000 | 0.20 KM |
| 38 Japonica Way | £ 186,000 | 0.20 KM |