Cosne Mews, Harpenden, Hertfordshire, AL5
By Ashtons
£ 400,000
Reviews
3 out of 5 stars
Ashtons says ..
Modern semi detached home in a gated development near Southdown shops. Features 2 bedrooms, bright living spaces, low maintenance garden, garage, and no onward chain.
Property Oracle says ..
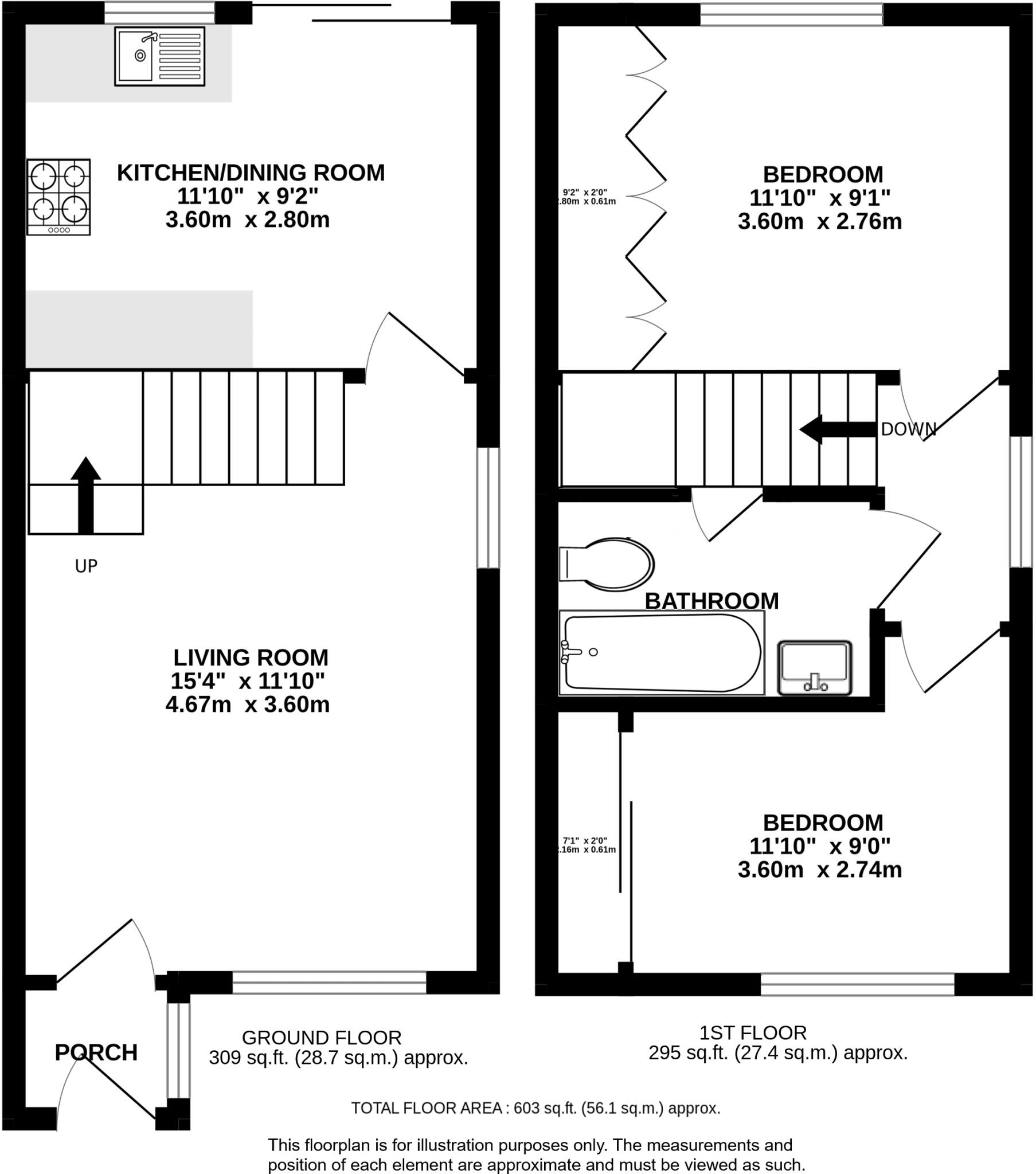
This is a two-bedroom semi-detached property located in Cosne Mews, Harpenden. The property is listed by Ashtons for £400,000. Harpenden is a desirable location, with good schools and transport links. The property includes a garden. While the kitchen has been modernised, other areas of the property, such as the bathroom and interior decor, would benefit from updating. The price seems reasonable for the area, but it’s important to consider the potential costs of renovation when assessing its overall value.
Therefore, we give this property 6 / 10. *Disclaimer: This is our option and does constitute a recommendation or financial advice. Do your own research. *
- Price
- 7
- Condition
- 6
- Location
- 7
- Land
- 7
- Bedrooms
- 2
- Bathrooms
- 1
The heatmap indicates the level of crime in the area. The color of the heatmap indicates the crime severity and recency.
Metrics Year-on-Year
- Average area value
- 1,332,494.00 £Increased by 19.68 %
- Average area rental value
- 1,800.00 £/moDecreased by 54.11 %
- Est rental Yield
- 1.62 %Decreased by 61.70 %
- Crime Rate
- 7.00 %Unchanged by 0.00 %
Agent Activity
Ashtons created the listing.
Nearby Schools
| Name | Type | Ofsted | Distance |
|---|---|---|---|
| Sa3 Southdown Family Centre | Children's Centre | 0.75 KM | |
| St Dominic Catholic Primary School | Voluntary Aided School | Outstanding | 0.87 KM |
| The Grove Junior School | Community School | Good | 0.90 KM |
| The Grove Infant And Nursery School | Community School | Outstanding | 1.00 KM |
| Crabtree Infants' School | Academy Converter | 1.17 KM |
Images
Nearby Streets
| Name | Average Price | Average Sqft | Distance |
|---|---|---|---|
| Cosne Mews | £ 275,000 | 0 | 0.00 KM |
| Saint Johns Road | £ 0 | 0 | 0.00 KM |
| St Albans Road | £ 2,000,000 | 0 | 0.00 KM |
| Gordon's Walk | £ 660,000 | 0 | 0.00 KM |
| Spenser Road | £ 1,400,000 | 0 | 0.00 KM |
Nearby Transport
| Name | NLC | TLC | Distance |
|---|---|---|---|
| Harpenden | 1543 | HPD | 1.15 KM |
| St Albans City | 1548 | SAC | 6.51 KM |
| St Albans Abbey | 1562 | SAA | 6.85 KM |
| Park Street | 1561 | PKT | 9.00 KM |
| Luton Airport Parkway | 3645 | LTN | 9.24 KM |
Nearby Listings
| Address | Price | Type | Score | Distance |
|---|---|---|---|---|
| Cosne Mews, Harpenden, Hertfordshire, AL5 | £ 400,000 | BUY | 6 / 10 | 0.00 KM |
| St Johns Road, Harpenden, AL5 | £ 339,950 | BUY | 6 / 10 | 0.07 KM |
| St. Johns Road, Harpenden | £ 1,100,000 | BUY | 7 / 10 | 0.09 KM |
| Emily Court, Harpenden | £ 925,000 | BUY | Unknown | 0.09 KM |
| Walkers Close, Harpenden, Hertfordshire, AL5 | £ 800,000 | BUY | Unknown | 0.11 KM |
Nearby Properties
| Address | Price | Distance |
|---|---|---|
| 12 Cosne Mews | £ 405,000 | 0.01 KM |
| 8 Cosne Mews | £ 215,000 | 0.01 KM |
| 9 Cosne Mews | £ 120,000 | 0.01 KM |
| 6 Cosne Mews | £ 219,950 | 0.01 KM |
| 10 Cosne Mews | £ 199,950 | 0.01 KM |