BidX1 says ..
N/A
Property Oracle says ..
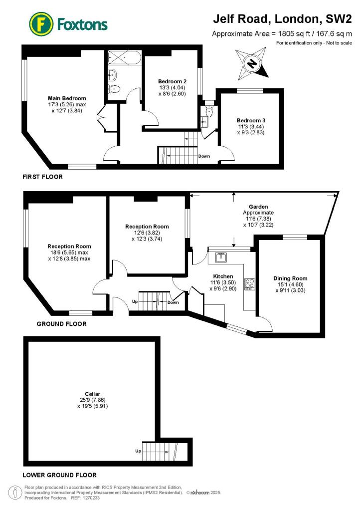
This is a 3-bedroom semi-detached property located in the Coldharbour locality of Brixton, London. The property is listed for £765,000. While the location is good, with proximity to transportation and schools, the property requires some renovation. The garden is small and needs maintenance. Considering the location and condition, the price is reasonable but potentially slightly high.
Therefore, we give this property 5 / 10. *Disclaimer: This is our option and does constitute a recommendation or financial advice. Do your own research. *
- Price
- 6
- Condition
- 5
- Location
- 7
- Land
- 4
- Bedrooms
- 3
- Bathrooms
- 1
The heatmap indicates the level of crime in the area. The color of the heatmap indicates the crime severity and recency.
Metrics Year-on-Year
- Average area value
- 538,883.00 £Increased by 7.52 %
- Average area rental value
- 1,946.00 £/moIncreased by 6.63 %
- Est rental Yield
- 4.33 %Decreased by 0.92 %
- Crime Rate
- 5.00 %Unchanged by 0.00 %
from 501,202.00 £
from 1,825.00 £/mo
from 4.37 %
from 5.00 %
Agent Activity
BidX1 created the listing.
Nearby Schools
| Name | Type | Ofsted | Distance |
|---|---|---|---|
| Effra Nursery School And Children'S Centre | Local Authority Nursery School | Good | 0.17 KM |
| Effra Early Years And Children'S Centre | Children's Centre | 0.18 KM | |
| Hill Mead Primary School | Community School | Good | 0.52 KM |
| Ark Evelyn Grace Academy | Academy Sponsor Led | Good | 0.75 KM |
| St Jude'S Church Of England Primary School | Voluntary Aided School | Outstanding | 0.75 KM |
Images
Nearby Streets
| Name | Average Price | Average Sqft | Distance |
|---|---|---|---|
| Masey Mews | £ 0 | 0 | 0.00 KM |
| 4th Avenue | £ 0 | 0 | 0.00 KM |
| 1st Avenue | £ 0 | 0 | 0.00 KM |
| Reliance Arcade | £ 0 | 0 | 0.00 KM |
| Railton Road | £ 0 | 0 | 0.00 KM |
Nearby Transport
| Name | NLC | TLC | Distance |
|---|---|---|---|
| Brixton | 5081 | BRX | 0.68 KM |
| Herne Hill | 5066 | HNH | 1.07 KM |
| Loughborough Junction | 5082 | LGJ | 1.26 KM |
| Tulse Hill | 5390 | TUH | 2.15 KM |
| North Dulwich | 5429 | NDL | 2.53 KM |
Nearby Listings
| Address | Price | Type | Score | Distance |
|---|---|---|---|---|
| Jelf Road, London, SW2 | £ 765,000 | BUY | 5 / 10 | 0.00 KM |
| Talma Road, SW2 | £ 1,050,000 | BUY | 6 / 10 | 0.04 KM |
| Probert Road, Brixton, SW2 | £ 1,000,000 | BUY | Unknown | 0.07 KM |
| Jelf Road, Brixton, London, SW2 | £ 1,050,000 | BUY | 7 / 10 | 0.07 KM |
| Barnwell Road, SW2 1PW | £ 595,000 | BUY | Unknown | 0.08 KM |
Nearby Properties
| Address | Price | Distance |
|---|---|---|
| 55 Talma Road | £ 328,000 | 0.01 KM |
| 51 Talma Road | £ 310,000 | 0.01 KM |
| 59 Talma Road | £ 840,000 | 0.01 KM |
| 4 Jelf Road | £ 950,000 | 0.05 KM |
| 14 Jelf Road | £ 272,500 | 0.05 KM |