Bush says ..
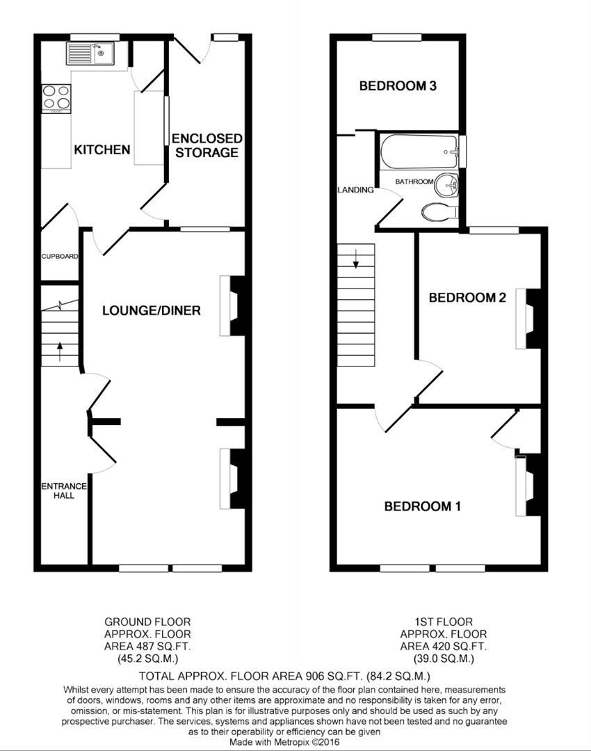
An end of terrace Victorian city property with period features and a delightful mature garden located within walking distance of the train station and city centre in the heart of Romsey Town. Entrance hall, sitting/dining room, kitchen, lean to, landing, three first floor bedrooms, first floor ba...
Property Oracle says ..
The property is located in Romsey, Cambridge, and is a 3-bedroom, 1-bathroom end of terrace house with a total area of 900 sqft and a 906 sqft plot. The list price is £575,000.
The property appears to be in good condition. The interior is presented well in the photos, with modern furnishings and a recently updated kitchen and bathroom. There is evidence of a traditional fireplace, suggesting some period features. The garden is relatively small, but usable.
The location is good, with several primary and secondary schools within a reasonable distance, including Ridgefield Primary School (rated ‘Good’ by Ofsted) and Coleridge Community College (also rated ‘Good’). Cambridge train station is approximately 1.35km away, providing convenient access to the city centre and beyond.
Considering the average price of similar properties in the area is £482,419, and the average price per sqft is £560, the list price of £575,000 for this 900 sqft property seems slightly above average but justifiable given its condition and location. Nearby comparable properties on Ross Street range from £495,000 to £625,000, supporting the pricing. The property’s good condition and proximity to schools and transport links likely contribute to its higher price point.
Therefore, we give this property 7 / 10. *Disclaimer: This is our option and does constitute a recommendation or financial advice. Do your own research. *
- Price
- 7
- Condition
- 8
- Location
- 9
- Land
- 6
- Bedrooms
- 3
- Bathrooms
- 1
- Sqft (est)
- 900.00
- Lot (est)
- 906.00
The heatmap indicates the level of crime in the area. The color of the heatmap indicates the crime severity and recency.
Metrics Year-on-Year
- Average area value
- 434,999.00 £Decreased by 13.09 %
- Est sale value
- 638,100.00 £Increased by 35.05 %
- Average area rental value
- 1,897.00 £/moIncreased by 9.40 %
- Est letting value
- 2,700.00 £/moIncreased by 200.00 %
- Est rental Yield
- 5.23 %Increased by 25.72 %
- Crime Rate
- 6.00 %Unchanged by 0.00 %
Agent Activity
Bush created the listing.
Nearby Schools
| Name | Type | Ofsted | Distance |
|---|---|---|---|
| St Philip'S Cofe Aided Primary School | Voluntary Aided School | Requires improvement | 0.65 KM |
| Ridgefield Primary School | Foundation School | Good | 0.82 KM |
| Coleridge Community College | Academy Converter | Good | 0.82 KM |
| Brunswick Nursery School | Local Authority Nursery School | Outstanding | 1.39 KM |
| Morley Memorial Primary School | Community School | Good | 1.49 KM |
Images
Nearby Streets
| Name | Average Price | Average Sqft | Distance |
|---|---|---|---|
| Hemingford Road | £ 0 | 0 | 0.00 KM |
| Ruth Bagnall Court | £ 0 | 0 | 0.00 KM |
| Millcroft Court | £ 165,000 | 0 | 0.00 KM |
| Malta Road | £ 0 | 0 | 0.00 KM |
| Bury Court | £ 0 | 0 | 0.00 KM |
Nearby Transport
| Name | NLC | TLC | Distance |
|---|---|---|---|
| Cambridge | 7022 | CBG | 1.35 KM |
| Cambridge North | 8001 | CMB | 3.01 KM |
| Shelford (Cambs) | 7043 | SED | 5.70 KM |
| Waterbeach | 7079 | WBC | 8.81 KM |
Nearby Listings
| Address | Price | Type | Score | Distance |
|---|---|---|---|---|
| Ross Street, Cambridge | £ 575,000 | BUY | 7 / 10 | 0.00 KM |
| Ross Street, Cambridge | £ 625,000 | BUY | Unknown | 0.01 KM |
| Bill Briggs Court, Ross Street, Cambridge | £ 295,000 | BUY | 5 / 10 | 0.05 KM |
| St. Philips Road, Cambridge | £ 325,000 | BUY | 6 / 10 | 0.07 KM |
| Ross Street, Cambridge | £ 685,000 | BUY | 6 / 10 | 0.07 KM |
Nearby Properties
| Address | Price | Distance |
|---|---|---|
| 98 Ross Street | £ 307,000 | 0.04 KM |
| 102 Ross Street | £ 320,600 | 0.04 KM |
| 80 Ross Street | £ 531,500 | 0.04 KM |
| 66 Ross Street | £ 545,000 | 0.04 KM |
| 104 Ross Street | £ 595,000 | 0.04 KM |