Waterview says ..
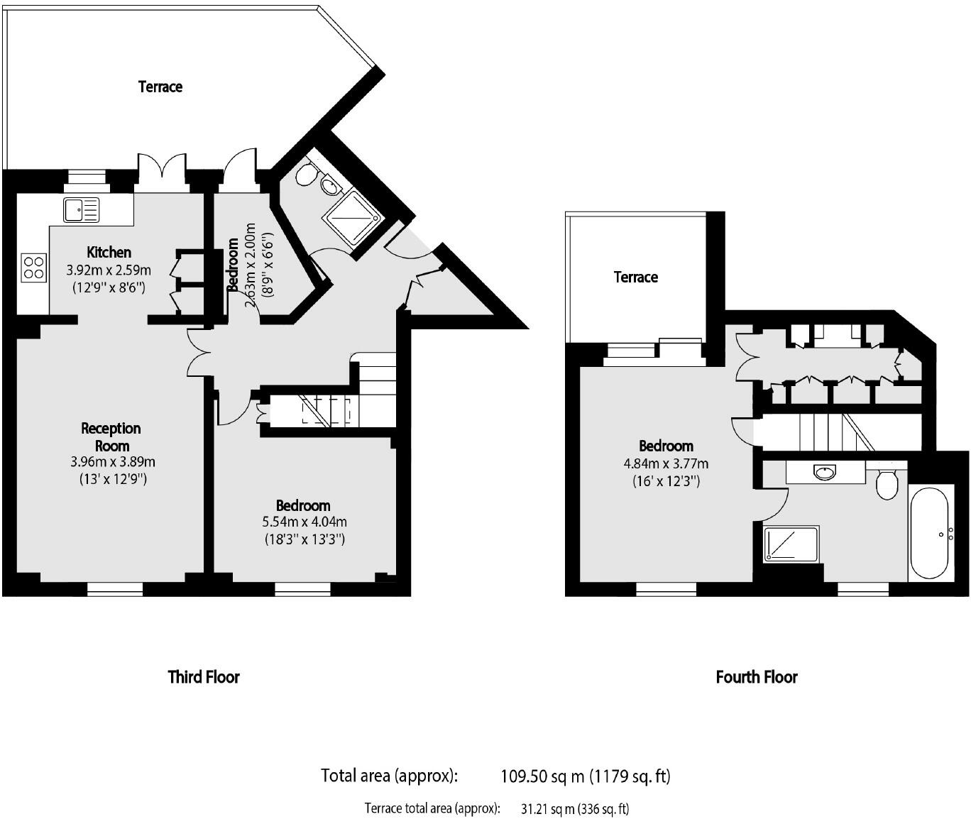
A beautifully presented three bedroom, split level penthouse with spacious roof terrace and balcony set within the prestigious Chelsea Harbour development.
Property Oracle says ..
This property is a 3 bedroom flat located in the desirable Chelsea Harbour area of London. The flat is modern and well-maintained, as evidenced by the photos, and benefits from a private patio. The location is excellent, with nearby transportation links and highly-rated schools. While the plot size is small, this is typical for flats in this area. The list price is slightly below the average price for the area, and considering the property’s condition and location, it appears to be a reasonable price.
Therefore, we give this property 7 / 10. *Disclaimer: This is our option and does constitute a recommendation or financial advice. Do your own research. *
- Price
- 8
- Condition
- 9
- Location
- 10
- Land
- 3
- Bedrooms
- 3
- Bathrooms
- 2
- Sqft (est)
- 1,178.65
The heatmap indicates the level of crime in the area. The color of the heatmap indicates the crime severity and recency.
Metrics Year-on-Year
- Average area value
- 1,383,762.00 £Increased by 8.10 %
- Est sale value
- 2,419,768.45 £Increased by 67.73 %
- Average area rental value
- 3,390.00 £/moIncreased by 11.04 %
- Est letting value
- 5,893.25 £/moIncreased by 150.00 %
- Est rental Yield
- 2.94 %Increased by 2.80 %
- Crime Rate
- 2.00 %Unchanged by 0.00 %
Agent Activity
Waterview created the listing.
Nearby Schools
| Name | Type | Ofsted | Distance |
|---|---|---|---|
| Chelsea Academy | Academy Sponsor Led | Outstanding | 0.28 KM |
| Cheyne Children'S Centre | Children's Centre | 0.56 KM | |
| Ashburnham Community School | Community School | Outstanding | 0.62 KM |
| Somerset Nursery School And Children'S Centre | Children's Centre | 0.66 KM | |
| Somerset Nursery School And Children'S Centre | Local Authority Nursery School | Outstanding | 0.71 KM |
Images
Nearby Streets
| Name | Average Price | Average Sqft | Distance |
|---|---|---|---|
| Waterfront Drive | £ 4,150,708 | 0 | 0.00 KM |
| Harbour Avenue | £ 0 | 0 | 0.00 KM |
| Albion Quay | £ 895,000 | 0 | 0.00 KM |
| Edith Yard | £ 580,000 | 0 | 0.00 KM |
| Hortensia Road | £ 425,000 | 0 | 0.00 KM |
Nearby Transport
| Name | NLC | TLC | Distance |
|---|---|---|---|
| Imperial Wharf | 9586 | IMW | 0.24 KM |
| Clapham Junction | 5595 | CLJ | 1.80 KM |
| Wandsworth Town | 5576 | WNT | 1.86 KM |
| West Brompton | 8875 | WBP | 2.00 KM |
| Battersea Park | 5420 | BAK | 3.72 KM |
Nearby Listings
| Address | Price | Type | Score | Distance |
|---|---|---|---|---|
| Carlyle Court, Chelsea Harbour | £ 999,950 | BUY | 7 / 10 | 0.00 KM |
| Carlyle Court, Chelsea Harbour, SW10 | £ 2,600,000 | BUY | 7 / 10 | 0.00 KM |
| Carlyle Court, Chelsea Harbour | £ 1,395,000 | BUY | 7 / 10 | 0.00 KM |
| Carlyle Court, Chelsea Harbour | £ 699,950 | BUY | Unknown | 0.00 KM |
| Carlyle Court, Chelsea Harbour, London | £ 1,395,000 | BUY | 7 / 10 | 0.00 KM |
Nearby Properties
| Address | Price | Distance |
|---|---|---|
| 59 Carlyle Court | £ 925,000 | 0.01 KM |
| 15 Carlyle Court | £ 500,000 | 0.01 KM |
| 3 Carlyle Court | £ 855,000 | 0.01 KM |
| 40 Carlyle Court | £ 800,000 | 0.01 KM |
| 56 Carlyle Court | £ 1,070,000 | 0.01 KM |