Robert Watts says ..
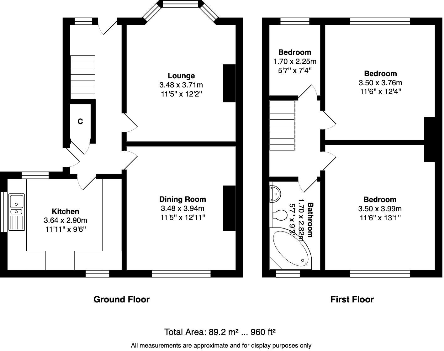
** FANTASTIC CORNER PLOT POSITION ** VAST AMOUNT OF SCOPE ** Viewing is an absolute MUST for this SEMI DETACHED with kitchen EXTENSION which allows it to provide THREE BEDROOMS, TWO RECEPTION ROOM accommodation. Situated in this sought after area and showing there is plenty of potential for furt...
Property Oracle says ..
This semi-detached property in Bradford is listed at £295,000. The property benefits from a modern fitted kitchen and bathroom, and has a good-sized garden. While the average house price in the area is significantly higher at £617,618, and the average price per sqft is £592, this property is priced considerably lower. Nearby comparable properties on Moore Avenue range from £110,000 to £250,000, suggesting the asking price may be on the higher end of the range for this street but still within the realm of possibility given the apparent recent renovations and the inclusion of a garage and garden. The location is close to several primary and secondary schools, with varying Ofsted ratings, and is within reasonable proximity to several train stations. More information regarding the square footage of the property would be beneficial to make a more accurate assessment of value.
Therefore, we give this property 6 / 10. *Disclaimer: This is our option and does constitute a recommendation or financial advice. Do your own research. *
- Price
- 5
- Condition
- 7
- Location
- 6
- Land
- 7
- Bedrooms
- 3
- Bathrooms
- 1
- Lot (est)
- 960.00
The heatmap indicates the level of crime in the area. The color of the heatmap indicates the crime severity and recency.
Metrics Year-on-Year
- Average area value
- 856,250.00 £Increased by 15.74 %
- Average area rental value
- 2,000.00 £/moDecreased by 15.25 %
- Est rental Yield
- 2.80 %Decreased by 26.89 %
- Crime Rate
- 2.00 %Unchanged by 0.00 %
Agent Activity
Robert Watts created the listing.
Nearby Schools
| Name | Type | Ofsted | Distance |
|---|---|---|---|
| Southmere Primary Academy | Academy Sponsor Led | 0.61 KM | |
| Co-Op Academy Southfield | Academy Special Converter | Good | 0.67 KM |
| Co-Op Academy Grange | Academy Sponsor Led | 0.98 KM | |
| Brackenhill Primary School | Community School | Good | 1.04 KM |
| Buttershaw Business & Enterprise College Academy | Academy Sponsor Led | Requires improvement | 1.05 KM |
Images
Nearby Streets
| Name | Average Price | Average Sqft | Distance |
|---|---|---|---|
| Kenley Avenue | £ 0 | 0 | 0.00 KM |
| Beacon Road | £ 180,421 | 0 | 0.00 KM |
| Beechwood Drive | £ 250,000 | 0 | 0.00 KM |
| Beacon Grove | £ 0 | 0 | 0.00 KM |
| Farhills | £ 145,000 | 0 | 0.00 KM |
Nearby Transport
| Name | NLC | TLC | Distance |
|---|---|---|---|
| Low Moor | 8416 | LMR | 4.27 KM |
| Bradford Interchange | 8345 | BDI | 4.53 KM |
| Bradford Forster Square | 8346 | BDQ | 4.58 KM |
| Frizinghall | 8556 | FZH | 5.75 KM |
| Shipley (Yorks) | 8347 | SHY | 6.99 KM |
Nearby Listings
| Address | Price | Type | Score | Distance |
|---|---|---|---|---|
| Moore Avenue, Bradford, BD6 | £ 295,000 | BUY | 6 / 10 | 0.00 KM |
| Moore Avenue, Bradford, BD6 | £ 495,000 | BUY | 7 / 10 | 0.02 KM |
| Kenmore Crescent, Wibsey, Bradford, BD6 | £ 270,000 | BUY | 7 / 10 | 0.07 KM |
| Kenmore Crescent, Wibsey, Bradford, West Yorkshire, BD6 | £ 235,000 | BUY | 7 / 10 | 0.07 KM |
| Kenmore Crescent Bradford, BD6 3JG | £ 250,000 | BUY | 7 / 10 | 0.07 KM |
Nearby Properties
| Address | Price | Distance |
|---|---|---|
| 121 Moore Avenue | £ 140,000 | 0.01 KM |
| 125 Moore Avenue | £ 58,000 | 0.01 KM |
| 115 Moore Avenue | £ 110,000 | 0.01 KM |
| 70 Moore Avenue | £ 270,000 | 0.01 KM |
| 72 Moore Avenue | £ 117,000 | 0.01 KM |