Gatesmead, Haywards Heath, RH16
By Mansell McTaggart
£ 950,000
Reviews
3 out of 5 stars
Mansell McTaggart says ..
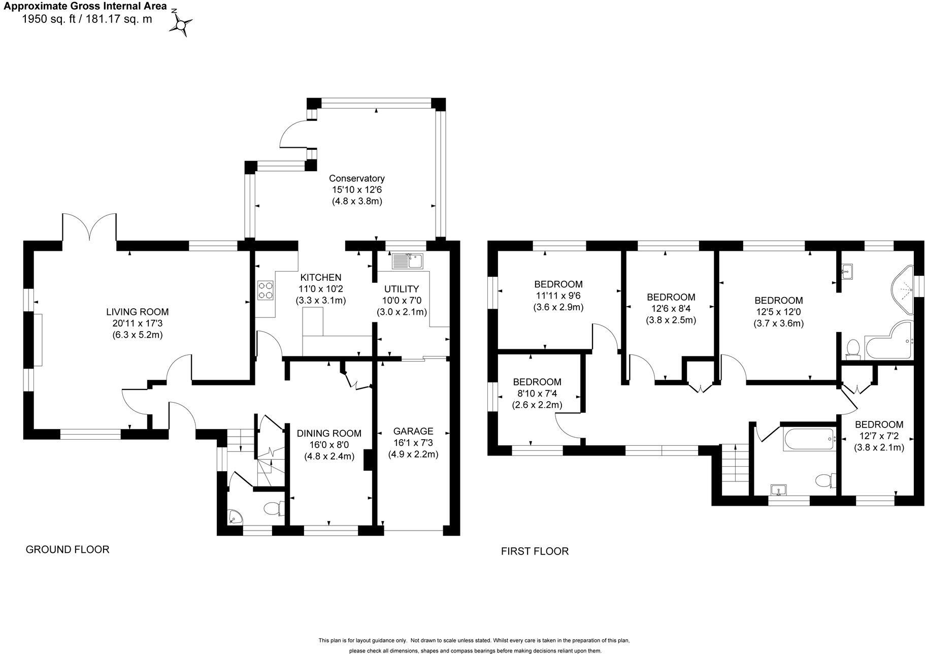
GUIDE PRICE … £950,000-£1,000,000 PLEASE WATCH THE VIDEO BEFORE BOOKING AN APPOINTMENT A 5 bedroom detached family home with approximately 1950 sq ft of accommodation, situated on a large corner plot. A desirable location on the Haywards Heath/Lindfield borders and within a short walk of countrys...
Property Oracle says ..
The property is located in Gatesmead, Haywards Heath, a town in West Sussex. Haywards Heath is a popular commuter town with good transport links to London and the south coast. The property itself is a five-bedroom house with two bathrooms, and a conservatory. The property is in need of some modernisation, however, it is located in a desirable area and is close to good schools and transport links. The list price of £950,000 seems reasonable given the size of the property and its location, however, further research into comparable properties in the area would be beneficial to confirm this.
Therefore, we give this property 7 / 10. *Disclaimer: This is our option and does constitute a recommendation or financial advice. Do your own research. *
- Price
- 7
- Condition
- 6
- Location
- 8
- Land
- 7
- Bedrooms
- 5
- Bathrooms
- 2
- Sqft (est)
- 1,950.00
The heatmap indicates the level of crime in the area. The color of the heatmap indicates the crime severity and recency.
Metrics Year-on-Year
- Average area value
- 890,625.00 £Increased by 35.96 %
- Est sale value
- 1,111,500.00 £Increased by 58.77 %
- Average area rental value
- 1,412.00 £/moDecreased by 13.11 %
- Est letting value
- 0.00 £/mo
- Est rental Yield
- 1.90 %Decreased by 36.24 %
- Crime Rate
- 0.00 %
Agent Activity
Mansell McTaggart created the listing.
Nearby Schools
| Name | Type | Ofsted | Distance |
|---|---|---|---|
| My Choice School - Oak House | Other Independent Special School | Requires improvement | 1.04 KM |
| Oathall Community College | Community School | Good | 1.20 KM |
| Blackthorns Community Primary Academy | Academy Converter | Outstanding | 1.43 KM |
| Harlands Primary School | Academy Converter | Good | 1.51 KM |
| Central Education Ltd | Other Independent Special School | Requires improvement | 1.56 KM |
Images
Nearby Streets
| Name | Average Price | Average Sqft | Distance |
|---|---|---|---|
| Alder Way | £ 1,250,000 | 0 | 0.00 KM |
| French Gardens | £ 0 | 0 | 0.00 KM |
| Copyhold Lane | £ 0 | 0 | 0.00 KM |
| Perrymount Road | £ 0 | 0 | 0.00 KM |
| Portland Close | £ 0 | 0 | 0.00 KM |
Nearby Transport
| Name | NLC | TLC | Distance |
|---|---|---|---|
| Haywards Heath | 5490 | HHE | 1.37 KM |
| Balcombe | 5492 | BAB | 6.20 KM |
| Wivelsfield | 5341 | WVF | 6.26 KM |
| Burgess Hill | 5483 | BUG | 7.64 KM |
Nearby Listings
| Address | Price | Type | Score | Distance |
|---|---|---|---|---|
| Gatesmead, Haywards Heath, RH16 | £ 950,000 | BUY | 7 / 10 | 0.00 KM |
| Gatesmead, Haywards Heath, RH16 | £ 750,000 | BUY | 6 / 10 | 0.13 KM |
| Gatesmead, Haywards Heath, RH16 | £ 850,000 | BUY | 7 / 10 | 0.13 KM |
| Gatesmead, Haywards Heath, RH16 | £ 1,000,000 | BUY | 7 / 10 | 0.15 KM |
| Roundwood Lane, Lindfield, RH16 | £ 1,900,000 | BUY | 7 / 10 | 0.34 KM |
Nearby Properties
| Address | Price | Distance |
|---|---|---|
| Willow Lodge | £ 840,000 | 0.07 KM |
| 23 Gatesmead | £ 445,000 | 0.07 KM |
| 25 Gatesmead | £ 541,000 | 0.07 KM |
| 14 Gatesmead | £ 730,000 | 0.07 KM |
| 27 Gatesmead | £ 500,000 | 0.07 KM |