Vine Street, York
AS

Vine Street, York

By Ashtons Estate Agents

£ 600,000

Reviews

3 out of 5 stars

Ashtons Estate Agents says ..

A beautifully modernised and extended three-bedroom period end-terrace, currently undergoing renovation and soon to be available on the market. Situated on Vine Street, a highly sought-after cul-de-sac nestled between Bishopthorpe Road and Rowntree Park, this home benefits from an award-winning p...

Property Oracle says ..

The property is located on Vine Street, York, in the Micklegate area. The area benefits from its proximity to York city centre, offering easy access to amenities, transport links, and places of historical significance. Several schools are within a reasonable distance, including Millthorpe School which has a ‘Good’ Ofsted rating. The presence of nearby train stations, such as York station, provides convenient access to other parts of the UK. However, the plot size is recorded as 0.00 sqft, indicating a lack of substantial outdoor space.

Based on the provided images, the property appears to have undergone a recent and high-quality renovation. The interior is modern, clean, and well-maintained, with updated fixtures and fittings. There is evidence of modern kitchen and bathroom installations. The property presents in excellent condition.

The list price of £600,000 is significantly higher than the average price of £415,447 for the area. However, the property’s size of 1,120.52 sqft is larger than the average of 973 sqft. The average price per sqft in the area is £426.00, while this property’s price per sqft is approximately £535. The higher price per sqft can be attributed to the property’s modern condition and desirable location. While the lack of plot size may be a drawback for some buyers, the overall quality and location justify the higher price point compared to the average in the area. Nearby comparable properties support this assessment, although their sqft data is missing, making a precise comparison difficult.

Therefore, we give this property 6 / 10. *Disclaimer: This is our option and does constitute a recommendation or financial advice. Do your own research. *

Price
7
Condition
10
Location
9
Land
1
Bedrooms
3
Bathrooms
3
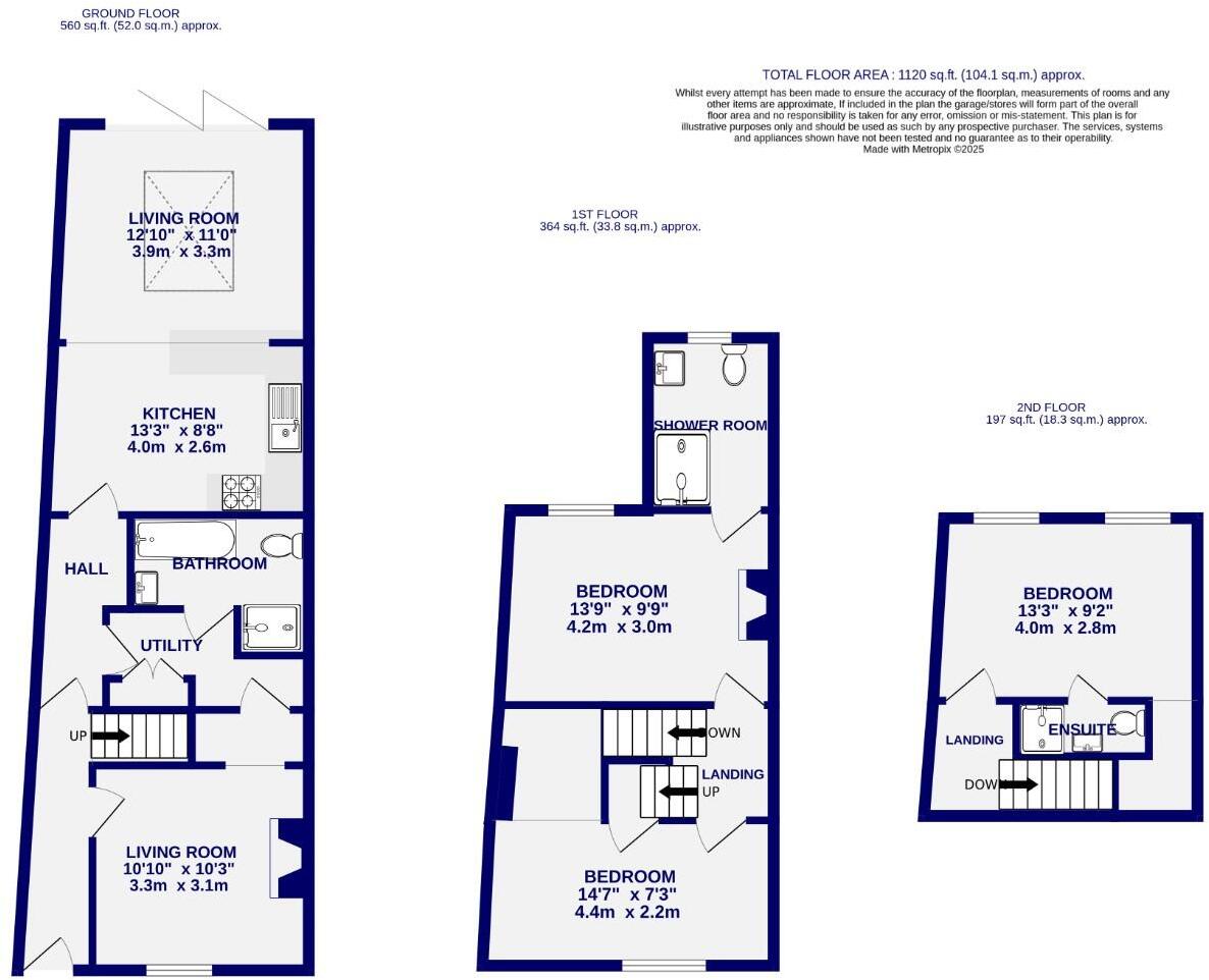
Sqft (est)
1,120.52

The heatmap indicates the level of crime in the area. The color of the heatmap indicates the crime severity and recency.

Metrics Year-on-Year

Average area value
542,496.00 £
Increased by 34.28 %
from 404,000.00 £
Est sale value
468,377.36 £
Increased by 33.55 %
from 350,722.76 £
Average area rental value
1,435.00 £/mo
Increased by 6.30 %
from 1,350.00 £/mo
Est letting value
1,120.52 £/mo
Unchanged by 0.00 %
from 1,120.52 £/mo
Est rental Yield
3.17 %
Decreased by 20.95 %
from 4.01 %
Crime Rate
10.00 %
Unchanged by 0.00 %
from 10.00 %

Agent Activity

  • Ashtons Estate Agents created the listing.

Nearby Schools

NameTypeOfstedDistance
Scarcroft Primary SchoolAcademy Converter0.62 KM
Millthorpe SchoolAcademy ConverterGood0.71 KM
Knavesmire Children'S CentreChildren's Centre0.96 KM
Knavesmire Primary SchoolAcademy Converter0.96 KM
Fishergate Primary SchoolCommunity SchoolGood1.00 KM

Images

vine street-6.jpg vine street-7.jpg vine street-12.jpg vine street-16.jpg vine street-15.jpg vine street-8.jpg vine street-14.jpg vine street.jpg vine street-20.jpg vine street-23.jpg vine street-26.jpg vine street-18.jpg vine street-28.jpg vine street-3.jpg vine street-21.jpg vine street-2.jpg vine street-22.jpg vine street-24.jpg vine street-4.jpg

Nearby Streets

NameAverage PriceAverage SqftDistance
Drake Street £ 180,00000.00 KM
Bishopgate Street £ 000.00 KM
Bishopthorpegate Street £ 230,00000.00 KM
Bishops Court £ 000.00 KM
Victoria Cloisters £ 251,66700.00 KM

Nearby Transport

NameNLCTLCDistance
York8263YRK1.20 KM
Poppleton8254POP7.59 KM

Nearby Listings

AddressPriceTypeScoreDistance
Vine Street, York £ 600,000BUY6 / 100.00 KM
Vine Street, Off Bishopthorpe Road, York YO23 1BB £ 435,000BUY6 / 100.02 KM
Riverside Lodge, Bishopthorpe Road, York £ 365,000BUY6 / 100.07 KM
Charlton Street, York £ 285,000BUY5 / 100.09 KM
Charlton Street, Off Bishopthorpe Road £ 600,000BUY6 / 100.10 KM

Nearby Properties

AddressPriceDistance
24 Bishopthorpe Road £ 250,0000.03 KM
26 Bishopthorpe Road £ 250,0000.03 KM
30 Bishopthorpe Road £ 92,5000.03 KM
65 Vine Street £ 152,0000.07 KM
5 Vine Street £ 255,0000.08 KM