Deptford High Street, Deptford, London, SE8
By Foxtons
£ 550,000
Reviews
3 out of 5 stars
Foxtons says ..
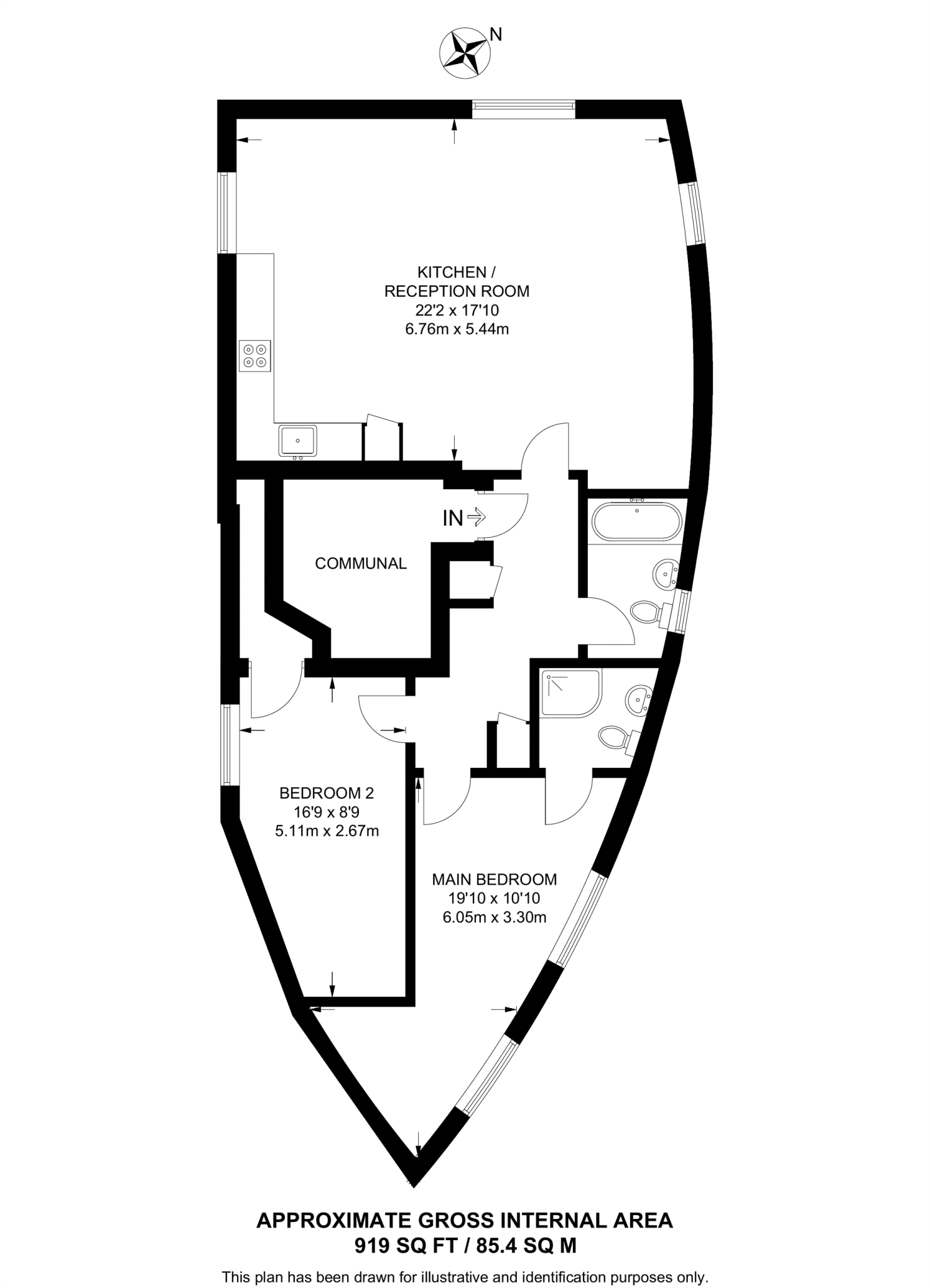
Set on the 3rd floor, this 2 bedroom flat boasts stylish interiors including a large reception room, a contemporary open-plan kitchen and sleek bathroom.
Property Oracle says ..
This property is a 2 bedroom 2 bathroom flat located on Hyde Street in Deptford, South East London. The flat is newly renovated and presented in excellent condition. It benefits from a modern, open-plan kitchen and living area, and two well-proportioned bedrooms. The location is convenient, with Deptford station just a short walk away, providing easy access to central London. There are also several primary schools nearby, including St. Joseph’s Catholic Primary School and Grinling Gibbons Primary School, both rated as “Good” by Ofsted. The property is listed at £550,000, which is slightly above the average price for the area (£535,414). However, given the property’s size (919 sqft), modern condition, and convenient location, the price appears reasonable. The average price per sqft in the area is £762, making this property slightly above average in terms of price per sqft. However, the modern updates and excellent condition justify the higher price.
Therefore, we give this property 6 / 10. *Disclaimer: This is our option and does constitute a recommendation or financial advice. Do your own research. *
- Price
- 7
- Condition
- 10
- Location
- 8
- Land
- 1
- Bedrooms
- 2
- Bathrooms
- 2
- Sqft (est)
- 919.00
- Lot (est)
- 919.00
The heatmap indicates the level of crime in the area. The color of the heatmap indicates the crime severity and recency.
Metrics Year-on-Year
- Average area value
- 460,000.00 £Decreased by 0.33 %
- Est sale value
- 574,375.00 £Decreased by 7.68 %
- Average area rental value
- 2,264.00 £/moIncreased by 1.25 %
- Est letting value
- 2,757.00 £/moUnchanged by 0.00 %
- Est rental Yield
- 5.91 %Increased by 1.72 %
- Crime Rate
- 8.00 %Unchanged by 0.00 %
Agent Activity
Foxtons created the listing.
Nearby Schools
| Name | Type | Ofsted | Distance |
|---|---|---|---|
| St Joseph'S Catholic Primary School | Voluntary Aided School | Good | 0.24 KM |
| Grinling Gibbons Primary School | Community School | Good | 0.31 KM |
| Rachel Mcmillan Nursery School And Children'S Centre | Local Authority Nursery School | Outstanding | 0.40 KM |
| Rachel Mcmillan Nursery School And Children'S Centre | Children's Centre | 0.40 KM | |
| Tidemill Academy | Academy Converter | 0.49 KM |
Images
Nearby Streets
| Name | Average Price | Average Sqft | Distance |
|---|---|---|---|
| Hyde Street | £ 0 | 0 | 0.00 KM |
| Ffinch Street | £ 0 | 0 | 0.00 KM |
| Watergate Street | £ 385,000 | 0 | 0.00 KM |
| Creek Road | £ 0 | 0 | 0.00 KM |
| Payne Street | £ 450,000 | 0 | 0.00 KM |
Nearby Transport
| Name | NLC | TLC | Distance |
|---|---|---|---|
| Deptford | 5145 | DEP | 0.20 KM |
| St Johns | 5059 | SAJ | 1.32 KM |
| Greenwich | 5146 | GNW | 1.51 KM |
| New Cross Gate | 5345 | NXG | 1.62 KM |
| Brockley | 5404 | BCY | 2.13 KM |
Nearby Listings
| Address | Price | Type | Score | Distance |
|---|---|---|---|---|
| Deptford High Street, Deptford, London, SE8 | £ 500,000 | BUY | 7 / 10 | 0.00 KM |
| Deptford High Street, Deptford, SE8 | £ 345,000 | BUY | 5 / 10 | 0.00 KM |
| Deptford High Street, Deptford, London, SE8 | £ 345,000 | BUY | 6 / 10 | 0.00 KM |
| Deptford High Street, Deptford, London, SE8 | £ 375,000 | BUY | 6 / 10 | 0.00 KM |
| Deptford High Street, Deptford, London, SE8 | £ 550,000 | BUY | 6 / 10 | 0.00 KM |
Nearby Properties
| Address | Price | Distance |
|---|---|---|
| 189 Deptford High Street | £ 230,000 | 0.03 KM |
| 186a Deptford High Street | £ 500,000 | 0.07 KM |
| 172 Deptford High Street | £ 369,500 | 0.07 KM |
| 204a Deptford High Street | £ 35,000 | 0.07 KM |
| 14 St Pauls Courtyard | £ 150,000 | 0.12 KM |