SE
Barnard Court, Woking, Surrey, GU21
By Seymours Estate Agents
£ 435,000
Reviews
3 out of 5 stars
Seymours Estate Agents says ..
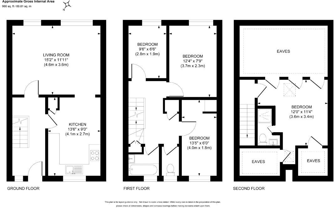
This well-presented four-bedroom mid-terrace home offers spacious and versatile living across three floors, making it an ideal choice for families or those looking for extra room to grow. The ground floor features a generously sized front-aspect kitchen/breakfast room fitted with a range of base ...
Property Oracle says ..
Therefore, we give this property 6 / 10. *Disclaimer: This is our option and does constitute a recommendation or financial advice. Do your own research. *
- Price
- 6
- Condition
- 7
- Location
- 7
- Land
- 7
- Bedrooms
- 4
- Bathrooms
- 2
The heatmap indicates the level of crime in the area. The color of the heatmap indicates the crime severity and recency.
Metrics Year-on-Year
- Average area value
- 384,737.00 £Decreased by 1.20 %
- Average area rental value
- 1,963.00 £/moIncreased by 39.81 %
- Est rental Yield
- 6.12 %Increased by 41.34 %
- Crime Rate
- 6.00 %Unchanged by 0.00 %
from 389,410.00 £
from 1,404.00 £/mo
from 4.33 %
from 6.00 %
Agent Activity
Seymours Estate Agents created the listing.
Nearby Schools
| Name | Type | Ofsted | Distance |
|---|---|---|---|
| The Winston Churchill School A Specialist Sports College | Foundation School | Good | 0.41 KM |
| St John'S Primary School And Sure Start Children'S Centre | Children's Centre | 0.49 KM | |
| St John'S Primary School | Academy Sponsor Led | Requires improvement | 0.49 KM |
| Beaufort Primary School | Academy Converter | Good | 0.82 KM |
| The Oaktree School | Academy Converter | 0.91 KM |
Images
Nearby Streets
| Name | Average Price | Average Sqft | Distance |
|---|---|---|---|
| Robin Hood Roundabout cycle path | £ 0 | 0 | 0.00 KM |
| Lockfield Drive cycle path | £ 0 | 0 | 0.00 KM |
| Beechwood Close | £ 0 | 0 | 0.00 KM |
| Oakway | £ 475,000 | 0 | 0.00 KM |
| Saint John's Lye | £ 0 | 0 | 0.00 KM |
Nearby Transport
| Name | NLC | TLC | Distance |
|---|---|---|---|
| Worplesdon | 5686 | WPL | 3.77 KM |
| Brookwood | 5687 | BKO | 3.92 KM |
| Woking | 5685 | WOK | 5.06 KM |
| Longcross | 5674 | LNG | 7.70 KM |
| Sunningdale | 5671 | SNG | 9.05 KM |
Nearby Listings
| Address | Price | Type | Score | Distance |
|---|---|---|---|---|
| Barnard Court, Woking, Surrey, GU21 | £ 435,000 | BUY | 6 / 10 | 0.00 KM |
| Codrington Court, St. John's, Woking, Surrey, GU21 | £ 365,000 | BUY | 7 / 10 | 0.07 KM |
| Ashwindham Court, Woking | £ 385,000 | BUY | 6 / 10 | 0.08 KM |
| Ashwindham Court, Woking, Surrey, GU21 | £ 400,000 | BUY | Unknown | 0.08 KM |
| William Russell Court, Woking, Surrey, GU21 | £ 400,000 | BUY | 7 / 10 | 0.09 KM |
Nearby Properties
| Address | Price | Distance |
|---|---|---|
| 5 Barnard Court | £ 340,000 | 0.02 KM |
| 6 Barnard Court | £ 175,000 | 0.02 KM |
| 19 Barnard Court | £ 350,000 | 0.02 KM |
| 11 Barnard Court | £ 210,000 | 0.02 KM |
| 17 Barnard Court | £ 168,000 | 0.02 KM |