Wardend Road, Torrance

Rettie & Co says ..

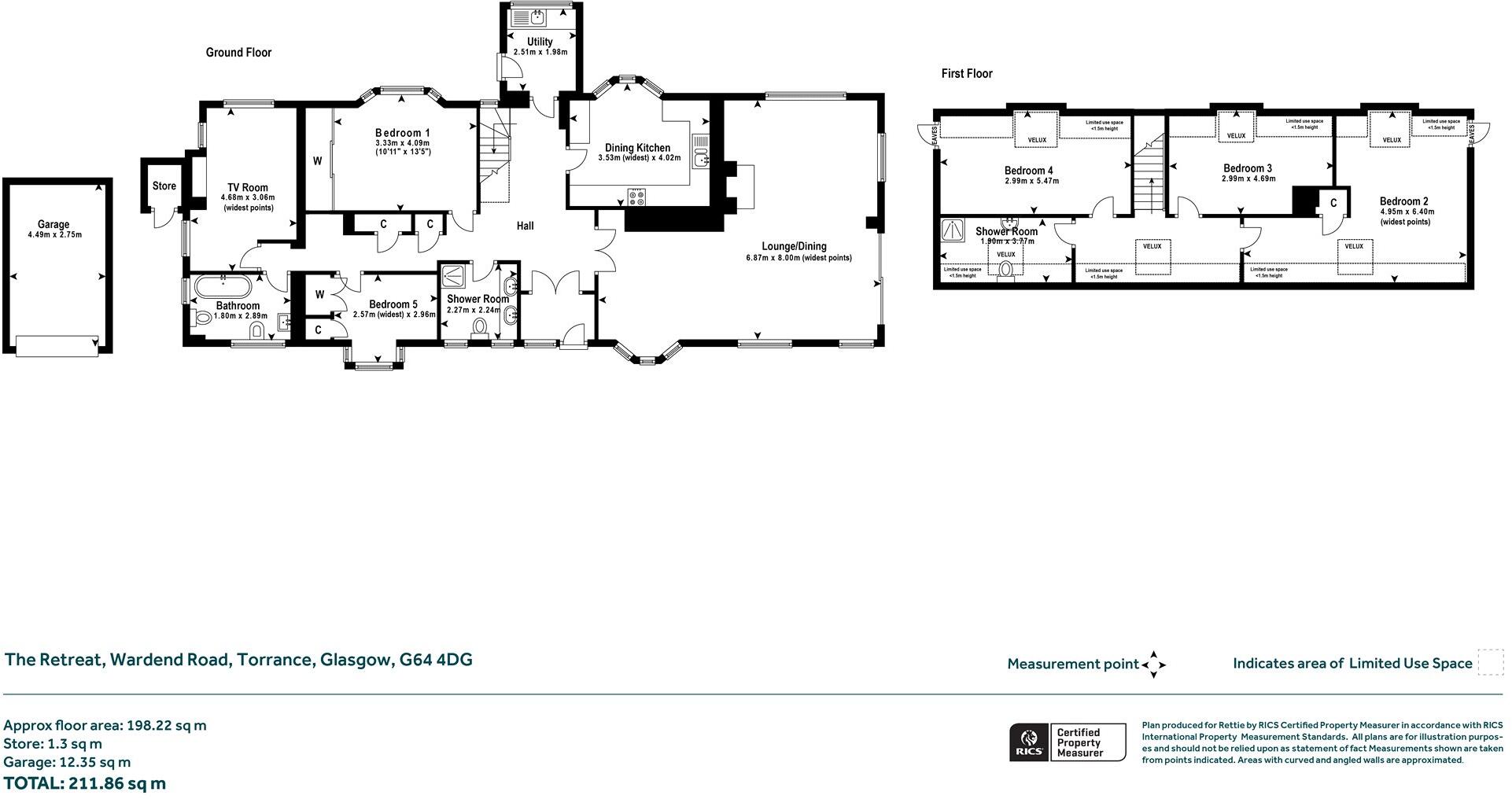
Dating from the 1920s, and subsequently extended, The Retreat is privileged to be one of only six homes to call the private, cul-de-sac, lane of Wardend Road home. Set upon a sizeable, and level, garden of some 0.45-acre it is south facing to the rear and enjoys a lovely, and immediate, bucolic o...

Property Oracle says ..

The property is located in Torrance, East Dunbartonshire, Scotland. Based on the images provided, the property appears to be in good condition, well maintained and presented. The interior is dated but clean and well kept. The property benefits from a large garden, which is a significant feature.

The list price is £560,000. The average price for properties in the area is £259,646, and the average price per square foot is £244. This property is significantly larger than the average at 2,125.33 sqft compared to the average of 1,061 sqft. Considering the size, condition, and the presence of a substantial garden, the list price appears to be at the higher end of the market but not unreasonable for a property of this size and quality in this location. The nearby properties that are listed for sale are significantly smaller and do not have the same level of land. This is reflected in their lower price points. The proximity to several train stations and the semi-rural location are also factors that could justify the higher price.

Therefore, we give this property 7 / 10. *Disclaimer: This is our option and does constitute a recommendation or financial advice. Do your own research. *

Price
7
Condition
8
Location
7
Land
9
Bedrooms
5
Bathrooms
3
Sqft (est)
2,125.33
Lot (est)
2,280.44

The heatmap indicates the level of crime in the area. The color of the heatmap indicates the crime severity and recency.

Metrics Year-on-Year

Average area value
266,999.00 £
Decreased by 10.32 %
from 297,728.00 £
Est sale value
631,223.01 £
Increased by 15.12 %
from 548,335.14 £
Average area rental value
1,031.00 £/mo
Decreased by 18.43 %
from 1,264.00 £/mo
Est letting value
2,125.33 £/mo
Unchanged by 0.00 %
from 2,125.33 £/mo
Est rental Yield
4.63 %
Decreased by 9.04 %
from 5.09 %
Crime Rate
0.00 %
from 0.00 %

Agent Activity

  • Rettie & Co created the listing.

Images

Picture 1 Picture 2 Picture 3 Picture 4 Picture 5 Picture 6 Picture 7 Picture 8 Picture 9 Picture 10 Picture 11 Picture 12 Picture 13 Picture 14 Picture 15 Picture 16 Picture 17 Picture 18 Picture 19 Picture 20 Picture 21 Picture 22 Picture 23 Picture 24 Picture 25 Picture 26 Picture 27 Picture No. 26 Picture 29 Picture 30 Picture 31 Picture 32 Picture 33 Picture 34 Picture 35 Picture 36 Picture 37 Picture 38 Picture 39 Picture 40 Picture 41 Picture 42 Picture 43 Picture 44 Picture 45 Picture 46 Picture 47

Nearby Streets

NameAverage PriceAverage SqftDistance
Wardend Road £ 000.00 KM
Blair Gardens £ 000.00 KM
Moray Drive £ 000.00 KM
Buchanan Place £ 000.00 KM
Acre Valley Road £ 000.00 KM

Nearby Transport

NameNLCTLCDistance
Bishopbriggs9940BBG4.40 KM
Springburn9997SPR6.92 KM
Ashfield9953ASF6.97 KM
Barnhill9973BNL7.27 KM
Lenzie9955LNZ7.32 KM

Nearby Listings

AddressPriceTypeScoreDistance
Wardend Road, Torrance £ 560,000BUY7 / 100.00 KM
Campbell Place, Torrance, G64 £ 340,000BUYUnknown0.08 KM
4 Blair Gardens, Torrance, Glasgow, G64 £ 310,000BUY7 / 100.16 KM
Moray Drive, Torrance £ 385,000BUY7 / 100.18 KM
2 Blair Gardens, Torrance, G64 £ 345,000BUY7 / 100.20 KM